Contact met de makelaar

Deze woning is gevonden buiten ons eigen netwerk. Met de knop hieronder kom je direct bij de aanbieder terecht.

Verkocht onder voorbehoud

Anna Paulownastraat 35

Bekijk kaart
2518 BB Den Haag (Zeeheldenkwartier)
€ 885.000 k.k.
  • 177 m²
  • 7 kamers
  • 1895

Samenvatting

  • Deze woning wordt sinds 3+ maanden aangeboden door NassauHuis Makelaardij;
  • De tussenwoning heeft een woonoppervlakte van 177 m² en beschikt over 7 kamers, waarvan 5 slaapkamers;
  • De woning is gebouwd In 1895 en ligt in de buurt Zeeheldenkwartier in Den Haag;
  • De woning beschikt onder andere over de volgende voorzieningen: Kabel TV, Glasvezelaansluiting, Rookkanaal, Douche, Bergruimte, Toilet, Wasruimte.

Beschrijving

Meer woninginformatie bekijken?

Log in of registreer gratis.

Overdracht

Vraagprijs
€ 885.000 k.k.
Aangeboden sinds
14-05-2025
Status
Verkocht onder voorbehoud
Beschikbaar
In overleg
Bijzonderheden
Beschermd stads- of dorpsgezicht
Onderhoudsstaat
Goed

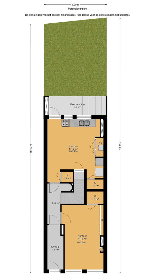
Oppervlakte en inhoud

Woonoppervlakte
177 m²
Perceeloppervlakte
93 m²
Inhoud
672 m³

Bouw

Type woning
Huis
Soort woning
Tussenwoning (rijtjeshuis), Herenhuis
Soort bouw
Bestaande bouw
Bouwjaar
1895
Ligging
  • In het centrum
  • In een woonwijk

Indeling

Aantal kamers
7
Aantal slaapkamers
5
Aantal badkamers
1
Aantal woonlagen
4
Voorzieningen
  • Kabel TV
  • Glasvezelaansluiting
  • Rookkanaal
  • Douche
  • Bergruimte
  • Toilet
  • Wasruimte

Buitenruimte

Balkon
Niet aanwezig
Tuin
Aanwezig (40 m², gelegen op het noordoosten)
Tuinbeschrijving
achtertuin
Dakterras
Niet aanwezig

Energie

Verwarming
CV-ketel
Warm water
CV-ketel
Cv-ketel
IntergasHRE (Gas, uit 2023, Eigendom)
Energielabel
C

Parkeergelegenheid

Aanwezig
Ja
Soort parkeergelegenheid
Openbaar

Garage

Aanwezig
Nee
Meld een probleem met deze woning
Contact met de makelaar Bel