- 101 m²
- 5 kamers
- 1960
Samenvatting
- Deze woning wordt sinds 19 januari 2026 aangeboden door Makelaarshuys Johanna en Gijs;
- De tussenwoning heeft een woonoppervlakte van 101 m² en beschikt over 5 kamers, waarvan 4 slaapkamers;
- De woning is gebouwd In 1960 en ligt in de buurt Dorst in Dorst.
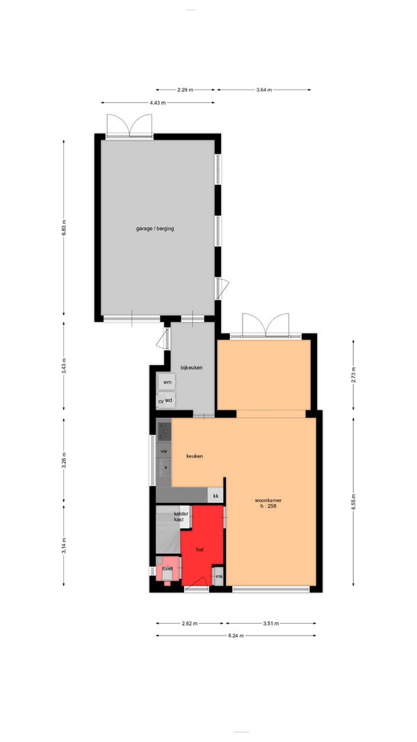
Beschrijving
In een rustige straat in Dorst staat deze verzorgde twee-onder-een-kapwoning met garage, aanbouw en een diepe tuin. Deze woning is stap voor stap gemoderniseerd en biedt veel licht, ruimte en privacy. De begane grond heeft een moderne uitstraling met een PVC-vloer en gestucte wanden. De woonkamer met triple glas is uitgerust met een houtkachel. De aanbouw zorgt voor extra leefruimte, en de moderne keuken heeft een composiet werkblad en kookeiland met inbouwapparatuur. Op de eerste verdieping zijn drie slaapkamers en een moderne badkamer. De zolderkamer met dakkapel en airco biedt luxe en extra ruimte. De verzorgde tuin heeft twee terrassen en een aluminium pergola. De garage is geïsoleerd en er is een kelder voor extra bergruimte.
Overdracht
- Vraagprijs
- € 545.000 k.k.
- Aangeboden sinds
- 19-01-2026
- Status
- Beschikbaar
- Beschikbaar
- Per direct
Oppervlakte en inhoud
- Woonoppervlakte
- 101 m²
- Perceeloppervlakte
- 306 m²
Bouw
- Type woning
- Huis
- Soort woning
- Tussenwoning (rijtjeshuis), Eengezinswoning
- Soort bouw
- Bestaande bouw
- Bouwjaar
- 1960
Indeling
- Aantal kamers
- 5
- Aantal slaapkamers
- 4
- Aantal badkamers
- 2
Buitenruimte
- Dakterras
- Niet aanwezig
Energie
- Energielabel
- B