Contact met de aanbieder

Deze woning is gevonden buiten ons eigen netwerk. Via de knop hieronder ga je direct naar de website van de aanbieder.

Nieuw

Olthorst 14

Bekijk kaart
6714 KS Ede (De Horsten)
€ 389.000 k.k.
  • 127 m²
  • 5 kamers
  • 1970

Samenvatting

  • Deze woning wordt sinds 21 februari 2026 aangeboden door Novilla;
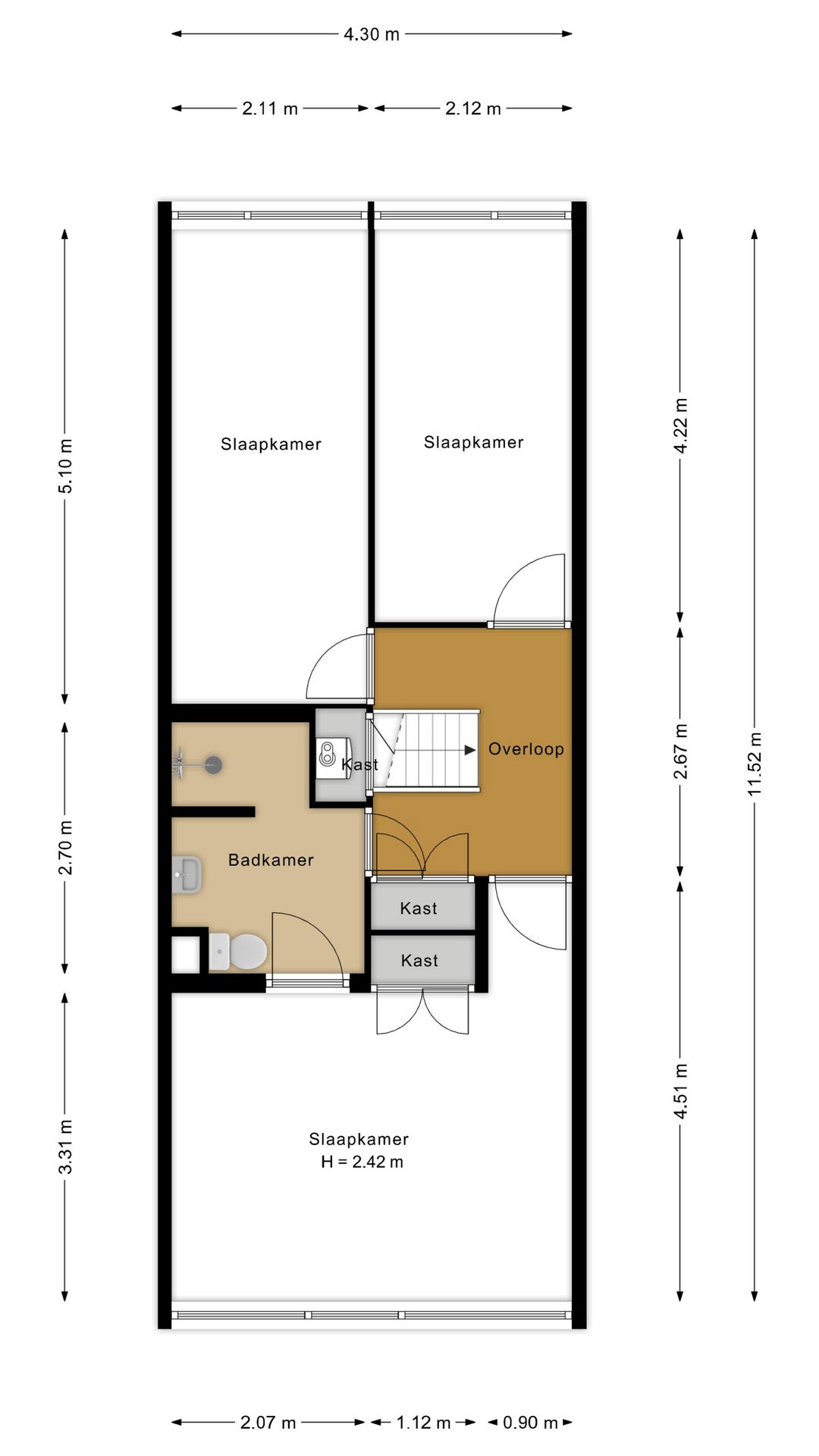
  • De tussenwoning heeft een woonoppervlakte van 127 m² en beschikt over 5 kamers, waarvan 4 slaapkamers;
  • De woning is gebouwd In 1970 en ligt in de buurt De Horsten in Ede.

Beschrijving

Deze drive-in tussenwoning biedt een harmonieuze mix van werk en privé. Naast een sfeervolle woonkamer en moderne keuken, vernieuwd in 2023 met een Quooker, zijn er drie slaapkamers en een zonnige tuin op het zuiden, perfect voor ontspanning. De multifunctionele ruimte op de begane grond leent zich uitstekend voor een salon of hobbyruimte. Verder is er een inpandige garage voor extra opbergruimte. Boven vind je een moderne badkamer met inloopdouche. De woning biedt 127 m² woonoppervlak en is volledig geïsoleerd, met 10 zonnepanelen. Gelegen in de rustige wijk Veldhuizen, dicht bij winkels en het Proosdijpark, is de bereikbaarheid met openbaar vervoer en auto optimaal. Dit huis met veel mogelijkheden kan jouw nieuwe thuis worden.

Overdracht

Vraagprijs
€ 389.000 k.k.
Prijs per m²
€ 3.063
Aangeboden sinds
21-02-2026
Status
Beschikbaar
Beschikbaar
Per direct

Oppervlakte en inhoud

Woonoppervlakte
127 m²
Perceeloppervlakte
98 m²

Bouw

Type woning
Huis
Soort woning
Tussenwoning (rijtjeshuis), Eengezinswoning
Soort bouw
Bestaande bouw
Bouwjaar
1970

Indeling

Aantal kamers
5
Aantal slaapkamers
4
Aantal badkamers
1

Buitenruimte

Dakterras
Niet aanwezig

Energie

Energielabel
B
Meld een probleem met deze woning