Contact met de aanbieder

Deze woning is gevonden buiten ons eigen netwerk. Via de knop hieronder ga je direct naar de website van de aanbieder.

Nieuw

Wagenaarlaan 36

Bekijk kaart
6711 GB Ede (Komponistenbuurt)
€ 475.000 k.k.
  • 128 m²
  • 6 kamers
  • 1966

Samenvatting

  • Deze woning wordt sinds 20 februari 2026 aangeboden door Tulp Makelaars centrale organisatie;
  • De tussenwoning heeft een woonoppervlakte van 128 m² en beschikt over 6 kamers, waarvan 5 slaapkamers;
  • De woning is gebouwd In 1966 en ligt in de buurt Komponistenbuurt in Ede.

Beschrijving

Instapklaar wonen in het groen met 5 slaapkamers in de geliefde Komponistenbuurt in Ede.

Bent u op zoek naar een instapklare woning met veel licht, veel ruimte, een prachtige tuin en een moderne afwerking? Dan is Wagenaarlaan 36 in de geliefde Komponistenbuurt precies wat u zoekt. Deze fijne gezinswoning combineert comfort, ruimte en een uitstekende ligging.

Ligging
De woning is gelegen in de populaire en kindvriendelijke Komponistenbuurt in Ede. De wijk staat bekend om haar rustige straten, veel groen en speelvoorzieningen voor kinderen. Basisscholen, supermarkten en het centrum van Ede bevinden zich op korte afstand. Ook natuurgebieden het Edese bos en de Ginkelse hei liggen op loopafstand, en de Veluwe op korte fietsafstand _ ideaal voor Wandelaars en natuurliefhebbers.
Daarnaast is de bereikbaarheid uitstekend: openbaar vervoer (busverbindingen en station Ede-Wageningen) is nabij en via de uitvalswegen zijn de A12 en A30 snel bereikbaar.

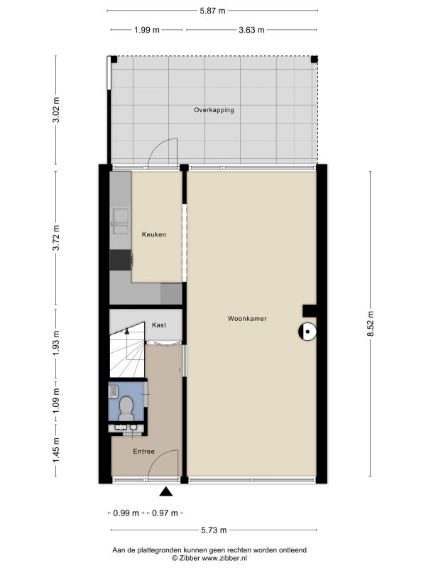
INDELING:

Begane grond
Via de verzorgde voortuin bereikt u de entree. De hal biedt toegang tot de toiletruimte, meterkast en de trapopgang naar de eerste verdieping.
Vanuit de hal betreedt u zowel de keuken als de woonkamer. De ruime woonkamer kenmerkt zich door de grote raampartijen met uitzicht op het groen, wat zorgt voor een prachtige lichtinval en een aangename sfeer. Er is voldoende ruimte voor een royale zithoek en een gezellige eethoek.
De ruime keuken is van alle gemakken voorzien. Dankzij de praktische indeling en het royale werkblad is dit een heerlijke plek om te koken. De keuken biedt volop bergruimte en sluit naadloos aan op de leefruimte.

Eerste verdieping
Op de eerste verdieping bevinden zich 4 slaapkamers, allen van goed formaat en voorzien van een prettige lichtinval. De kamers zijn flexibel in te delen als slaap-, werk- of hobbyruimte.
De moderne badkamer is stijlvol uitgevoerd en beschikt over een ruime inloopdouche, een comfortabel ligbad en een wastafelmeubel. Een fijne plek om de dag ontspannen te beginnen of juist af te sluiten.

Tweede verdieping
Via een vaste trap bereikt u de tweede verdieping die is vergroot middels een dakkapel met nokverhoging. Deze ruime zolderverdieping biedt volop mogelijkheden en is momenteel ingericht als een royale extra kamer. Dankzij de aanwezige dakramen is het een lichte en prettige ruimte die uitstekend geschikt is als extra slaapkamer, thuiskantoor of hobbyruimte.
Daarnaast vindt u op de voorzolder de opstelling voor de wasapparatuur en extra bergruimte op de ruime vliering en achter de knieschotten. Een volwaardige verdieping die de woning net dat beetje extra ruimte en flexibiliteit geeft.

Tuin
De woning beschikt over een grote, professioneel aangelegde achtertuin. De tuin is fraai ingericht met een combinatie van bestrating, groen en terrasmogelijkheden. Hier geniet u optimaal van privacy en rust. Dankzij de gunstige ligging is er volop zon, terwijl er ook voldoende ruimte is voor een schaduwplek. De aangelegen schuur biedt ruimte voor fietsen en extra opslag. Bovendien is de tuin bereikbaar via een achteringang, wat het gebruiksgemak en de toegankelijkheid verder vergroot. Een ideale tuin voor zowel ontspanning als gezellige momenten met familie en vrienden.

Kortom: een instapklare, lichte en ruime woning met een prachtige tuin, gelegen in een fijne, groene en kindvriendelijke wijk van Ede. Wagenaarlaan 36 is absoluut een bezichtiging waard!

Overdracht

Vraagprijs
€ 475.000 k.k.
Prijs per m²
€ 3.711
Aangeboden sinds
20-02-2026
Status
Beschikbaar
Beschikbaar
In overleg
Onderhoudsstaat
Goed

Oppervlakte en inhoud

Woonoppervlakte
128 m²
Inhoud
458 m³

Bouw

Type woning
Huis
Soort woning
Tussenwoning (rijtjeshuis), Eengezinswoning
Soort bouw
Bestaande bouw
Bouwjaar
1966
Ligging
In bosrijke omgeving

Indeling

Aantal kamers
6
Aantal slaapkamers
5
Aantal badkamers
1
Aantal woonlagen
4
Voorzieningen
Mechanische ventilatie

Buitenruimte

Balkon
Niet aanwezig
Tuin
Aanwezig (gelegen op het oosten)
Tuinbeschrijving
achtertuin
Achterom
Niet aanwezig
Dakterras
Niet aanwezig

Energie

Verwarming
CV-ketel
Warm water
CV-ketel
Cv-ketel
Remeha Tirzaa (Gas, uit 2016, Eigendom)
Energielabel
C

Bergruimte

Schuur/Berging
Aanwezig
Omschrijving
Vrijstaand steen

Parkeergelegenheid

Aanwezig
Ja
Soort parkeergelegenheid
Openbaar

Garage

Aanwezig
Nee
Meld een probleem met deze woning