- 148 m²
- 4 kamers
- 2026
Samenvatting
- Deze woning wordt sinds 7 weken aangeboden door VC Makelaars;
- De 2-onder-1-kapwoning heeft een woonoppervlakte van 148 m² en beschikt over 4 kamers, waarvan 3 slaapkamers;
- De woning is gebouwd In 2026 en ligt in de buurt Maanderbroek in Ede;
- De woning beschikt onder andere over de volgende voorzieningen: Glasvezelaansluiting, Bergruimte, Toilet, Wasruimte.
Beschrijving
Landelijk wonen met nieuwbouwcomfort. In het buitengebied van Ede (op korte afstand van Veenendaal) verrijst deze twee-onder-een-kapwoning op een riant perceel van circa 900 m².
Vrijheid, ruimte en uitzicht zijn hier voelbaar: vanuit de woonkamer kijk je uit over de weilanden en natuurgebied De Groene Grens ligt praktisch om de hoek.
De woning wordt gebouwd onder BouwGarant en is ontworpen met oog op de toekomst: voorlopig energielabel A+++. Warmtepomp, triple glas en de aanwezigheid van enkele zonnepanelen zorgen voor comfortabel wonen en lage energielasten.
En dan het buitenleven... Dit is zo’n plek waar je ’s avonds nog even een rondje door je eigen tuin loopt. BBQ met vrienden, een moestuin, speelruimte voor de kids, een vuurkorfplek of een klein weilandje met hobbydieren: hier kan het. En het mooiste? Je kunt de woning en het perceel naar eigen wens afbouwen en inrichten.
De uitgestrekte bossen van de Utrechtse Heuvelrug, maar ook de heide en bossen van Ede liggen op fietsafstand. Stap op de fiets voor een ontspannen tocht door het groen!
Of u nu houdt van levendigheid of juist de rust opzoekt, deze plek biedt het allebei. En dat in een duurzame, energiezuinige woning die helemaal klaar is voor de toekomst.
Bent u klaar om uw woondromen waar te maken? Neem vandaag nog contact met ons op en ontdek wat deze bijzondere nieuwbouwwoning u te bieden heeft!
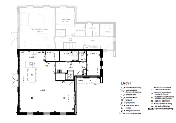
We stappen binnen via de entree/hal. Aan uw rechterhand vindt u direct de meterkast. Praktisch is ook de fietsenberging: met een eigen entree naast de voordeur en intern verbonden met de ontvangsthal. Ideaal voor fietsen, kinderwagen of gewoon: alles wat u graag uit het zicht houdt, maar wél binnen handbereik wilt hebben.
Verder treft u in de hal de toiletruimte, een nette garderobenis en de technische ruimte. Alles klopt: logisch ingedeeld, overzichtelijk en klaar om op uw manier af te werken.
En dan lopen we door naar de royale living. Hier komt het buitengebied echt binnen. De ruimte biedt alle plek voor een comfortabele zithoek en een fijne keukenopstelling: koken, lunchen, naborrelen; het kan hier moeiteloos naast elkaar bestaan. Naar hartenlust richt u dit hart van het huis precies zo in als u het voor u ziet.
Vanuit de keuken/woonkamer merkt u het direct: u woont hier heerlijk landelijk. Het uitzicht over de weilanden is rustgevend en elke dag anders. De openslaande tuindeuren maken de verbinding tussen binnen en buiten bijna vanzelfsprekend. Even naar buiten, een kop koffie op het terras, de avondzon meepakken... dat buitenleven ligt hier letterlijk aan uw voeten.
En binnen? Daar is het minstens zo comfortabel, met vloerverwarming die het huis een rustige, aangename warmte geeft.
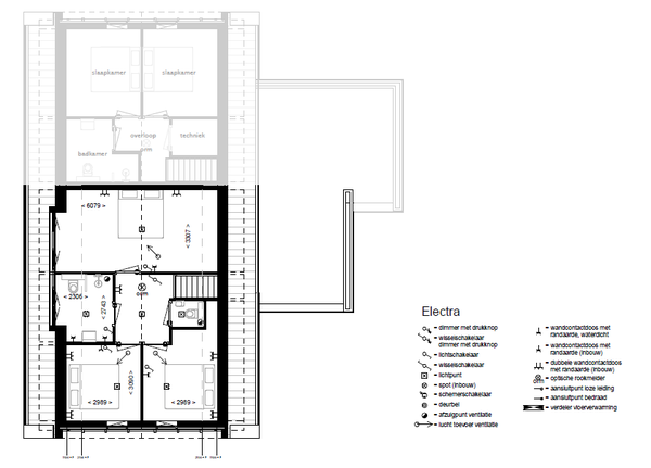
Via de trap bereiken we de overloop, het centrale punt van deze verdieping. Vanaf hier zijn alle ruimtes prettig en logisch toegankelijk: drie slaapvertrekken, de badkamer en een separate toiletruimte.
Die aparte toiletruimte is een fijne luxe en maakt deze verdieping extra comfortabel, zeker voor een gezin of wanneer u gasten ontvangt.
De drie slaapkamers zijn stuk voor stuk volwaardig en multifunctioneel in te delen: als hoofdslaapkamer, kinderkamer, werkkamer of logeerkamer. De master bedroom springt eruit en profiteert van de dakkapel, wat zorgt voor extra ruimte, licht en een prettig gevoel van vrijheid.
Ook de badkamer is voorzien van een dakkapel, wat niet alleen extra daglicht oplevert, maar ook meer indelingsmogelijkheden. Hier zijn een douche, wastafelmeubel en een toilet realiseerbaar – helemaal naar eigen smaak en stijl af te werken.
Een verdieping die rust en comfort uitstraalt, met slimme keuzes in indeling en volop mogelijkheden om er echt uw eigen plek van te maken. Uiteraard ook voorzien van vloerverwarming.
- Bouw start in overleg, eerste/tweede kwartaal 2026 mogelijk;
- Aannemersbedrijf Randewijk, wordt gebouwd met BouwGarant;
- Perceelsgrootte, ca. 900 m²;
- Warmtepomp NIBE F2050-6;
- Vloerverwarming (laagtemperatuur) + mogelijkheid tot koelen;
- Balansventilatie met WTW (CO₂-gestuurd, Zehnder Q450);
- Triple beglazing;
- 3 PV-panelen;
- Een plek om echt te landen. Koffie in de ochtendzon, lange avonden buiten, kinderen die alle ruimte hebben, een eigen groentetuin of een hoekje met hobbydieren. Dit is “thuis” met een hoofdletter T;
- Deze presentatie is met zorg samengesteld. Afmetingen, oppervlakten en gegevens zijn indicatief; aan de inhoud kunnen geen rechten worden ontleend.
Overdracht
- Vraagprijs
- € 895.000 v.o.n.
- Aangeboden sinds
- 29-12-2025
- Status
- Beschikbaar
- Beschikbaar
- In overleg
- Onderhoudsstaat
- Zeer goed
Oppervlakte en inhoud
- Woonoppervlakte
- 148 m²
- Perceeloppervlakte
- 900 m²
- Inhoud
- 587 m³
Bouw
- Type woning
- Huis
- Soort woning
- 2-onder-1-kapwoning, Eengezinswoning
- Soort bouw
- Nieuwbouw
- Bouwjaar
- 2026
- Ligging
-
- Aan een rustige weg
- Nabij een school
- Open gebied
- Buiten bebouwde kom
- Vrij uitzicht
Indeling
- Aantal kamers
- 4
- Aantal slaapkamers
- 3
- Aantal badkamers
- 1
- Aantal woonlagen
- 2
- Voorzieningen
-
- Glasvezelaansluiting
- Bergruimte
- Toilet
- Wasruimte
Buitenruimte
- Balkon
- Niet aanwezig
- Tuin
- Aanwezig (700 m², gelegen op het noordoosten)
- Tuinbeschrijving
- tuin rondom
- Achterom
- Niet aanwezig
- Dakterras
- Niet aanwezig
Energie
- Isolatie
- Vloerisolatie, Volledig geïsoleerd, Dakisolatie, Muurisolatie
- Verwarming
- Warmtepomp
- Energielabel
- A+++
Parkeergelegenheid
- Aanwezig
- Ja
Garage
- Aanwezig
- Nee