Contact met de makelaar

Deze woning is gevonden buiten ons eigen netwerk. Met de knop hieronder kom je direct bij de aanbieder terecht.

Zwarteweg 10

Bekijk kaart
9717 HR Groningen (Noorderplantsoenbuurt)
€ 235.000 k.k.
  • 40 m²
  • 2 kamers
  • 1882

Samenvatting

  • Deze woning wordt sinds 16 oktober 2025 aangeboden door Tebbens Torringa Makelaardij;
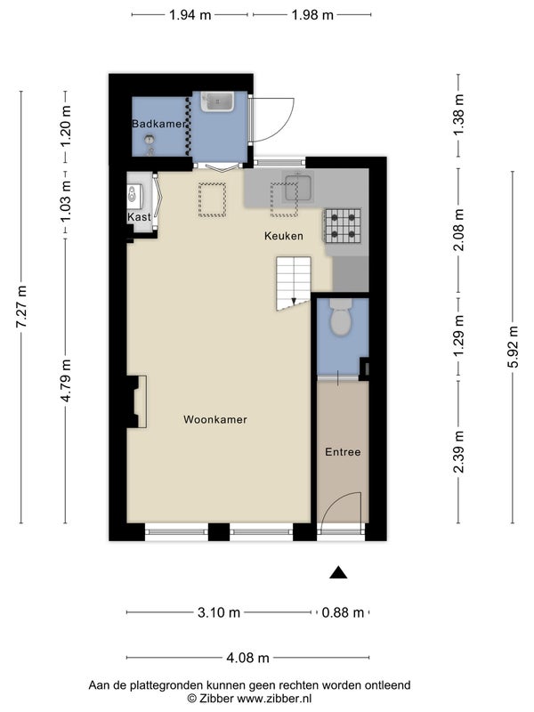
  • De tussenwoning heeft een woonoppervlakte van 40 m² en beschikt over 2 kamers, waarvan 1 slaapkamer;
  • De woning is gebouwd In 1882 en ligt in de buurt Noorderplantsoenbuurt in Groningen;
  • De woning beschikt onder andere over de volgende voorzieningen: Mechanische ventilatie, Douche, Toilet.

Beschrijving

Meer woninginformatie bekijken?

Log in of registreer gratis.

Overdracht

Vraagprijs
€ 235.000 k.k.
Aangeboden sinds
16-10-2025
Status
Beschikbaar
Beschikbaar
In overleg
Onderhoudsstaat
Goed

Oppervlakte en inhoud

Woonoppervlakte
40 m²
Perceeloppervlakte
32 m²
Inhoud
142 m³

Bouw

Type woning
Huis
Soort woning
Tussenwoning (rijtjeshuis), Eengezinswoning
Soort bouw
Bestaande bouw
Bouwjaar
1882
Ligging
  • Aan een rustige weg
  • In een woonwijk

Indeling

Aantal kamers
2
Aantal slaapkamers
1
Aantal badkamers
1
Aantal woonlagen
2
Voorzieningen
  • Mechanische ventilatie
  • Douche
  • Toilet

Buitenruimte

Balkon
Niet aanwezig
Tuin
Niet aanwezig
Dakterras
Niet aanwezig

Energie

Isolatie
Dubbele beglazing, HR glas
Verwarming
CV-ketel
Warm water
CV-ketel
Cv-ketel
Intergas Kompakt (Gas, uit 2022, Eigendom)
Energielabel
D

Parkeergelegenheid

Aanwezig
Ja
Soort parkeergelegenheid
Vergunning

Garage

Aanwezig
Nee
Meld een probleem met deze woning
Contact met de makelaar Bel