Contact met de makelaar

Deze woning is gevonden buiten ons eigen netwerk. Met de knop hieronder kom je direct bij de aanbieder terecht.

Nieuw

Hortensialaan 18 a

Bekijk kaart
9713 KN Groningen (Bloemenbuurt)
€ 259.000 k.k.
  • 81 m²
  • 4 kamers
  • 1928

Samenvatting

  • Deze woning wordt sinds 29 januari 2026 aangeboden door Makelaardij Veldhuis;
  • De galerijflat heeft een woonoppervlakte van 81 m² en beschikt over 4 kamers, waarvan 3 slaapkamers;
  • De woning is gebouwd In 1928 en ligt in de buurt Bloemenbuurt in Groningen.

Beschrijving

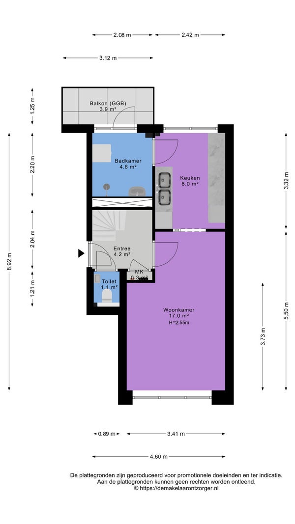
In de geliefde Bloemenbuurt ligt deze charmante bovenwoning dichtbij het groene Pioenpark en op loopafstand van het centrum van Groningen. De woning heeft drie slaapkamers en een woonoppervlakte van ca. 81 m². Je betreedt de woning via een afgesloten portiek en een trap naar de eerste verdieping. Hier vind je een lichte woonkamer van ca. 17 m², een semi-open keuken van ca. 8 m², en de badkamer met douche en wasmachineaansluiting. Een balkon op het noordwesten biedt de mogelijkheid om van de avondzon te genieten. Op de tweede verdieping zijn drie slaapkamers en een zolderberging, die omgevormd kan worden tot extra kamer. De woning biedt een actieve VvE, verwarming middels een HR-combi-ketel uit 2020, en een stenen fietsenberging. Dit appartement is zeer geschikt voor starters.

Overdracht

Vraagprijs
€ 259.000 k.k.
Aangeboden sinds
29-01-2026
Status
Beschikbaar
Beschikbaar
Per direct

Oppervlakte en inhoud

Woonoppervlakte
81 m²

Bouw

Type woning
Appartement
Soort woning
Galerijflat
Soort bouw
Bestaande bouw
Bouwjaar
1928

Indeling

Aantal kamers
4
Aantal slaapkamers
3
Aantal badkamers
1

Buitenruimte

Dakterras
Niet aanwezig

Energie

Energielabel
E
Meld een probleem met deze woning