Contact met de makelaar

Deze woning is gevonden buiten ons eigen netwerk. Met de knop hieronder kom je direct bij de aanbieder terecht.

Verkocht onder voorbehoud

Vuursteenstraat 10

Bekijk kaart
6247 CT Gronsveld (Rijckholt)
€ 299.000 k.k.
  • 112 m²
  • 5 kamers
  • 1970

Samenvatting

  • Deze woning wordt sinds 7 weken aangeboden door Goessens & Goessens Makelaardij;
  • De geschakelde 2-onder-1-kapwoning heeft een woonoppervlakte van 112 m² en beschikt over 5 kamers, waarvan 4 slaapkamers;
  • De woning is gebouwd In 1970 en ligt in de buurt Rijckholt in Gronsveld;
  • De woning beschikt onder andere over de volgende voorzieningen: Rolluiken, Bergruimte, Toilet.

Beschrijving

Overdracht

Vraagprijs
€ 299.000 k.k.
Aangeboden sinds
08-10-2025
Status
Verkocht onder voorbehoud
Beschikbaar
In overleg
Onderhoudsstaat
Goed

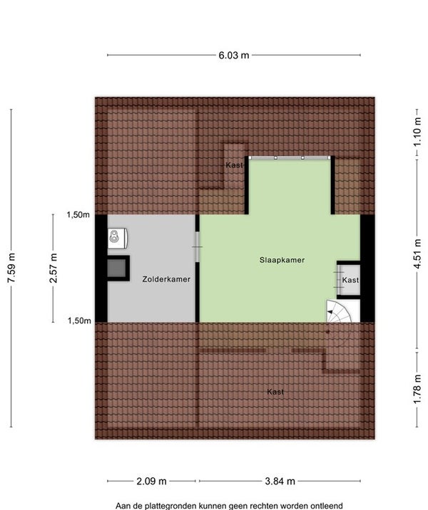
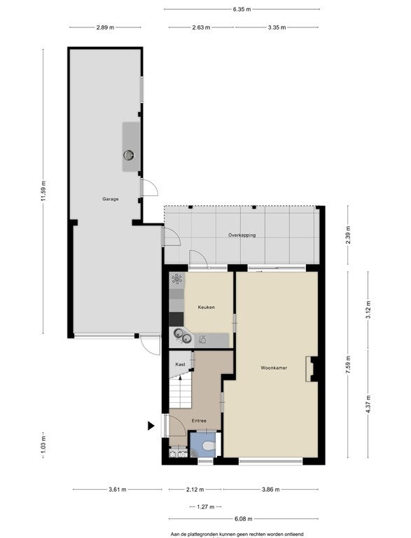
Oppervlakte en inhoud

Woonoppervlakte
112 m²
Perceeloppervlakte
260 m²
Inhoud
526 m³

Bouw

Type woning
Huis
Soort woning
Geschakelde 2-onder-1-kapwoning, Eengezinswoning
Soort bouw
Bestaande bouw
Bouwjaar
1970
Ligging
Aan een rustige weg

Indeling

Aantal kamers
5
Aantal slaapkamers
4
Aantal badkamers
1
Aantal woonlagen
3
Voorzieningen
  • Rolluiken
  • Bergruimte
  • Toilet

Buitenruimte

Balkon
Niet aanwezig
Tuin
Aanwezig (gelegen op het westen)
Tuinbeschrijving
tuin rondom
Dakterras
Niet aanwezig

Energie

Verwarming
CV-ketel
Warm water
CV-ketel
Energielabel
D

Parkeergelegenheid

Aanwezig
Ja
Soort parkeergelegenheid
Openbaar

Garage

Aanwezig
Ja
Meld een probleem met deze woning
Contact met de makelaar Bel