Contact met de makelaar

Deze woning is gevonden buiten ons eigen netwerk. Met de knop hieronder kom je direct bij de aanbieder terecht.

Verkocht onder voorbehoud

Voerenweg 36

Bekijk kaart
6247 EK Gronsveld (Rijckholt)
€ 589.000 k.k.
  • 190 m²
  • 5 kamers
  • 1983

Samenvatting

  • Deze woning wordt sinds 2 maanden aangeboden door Goessens & Goessens Makelaardij;
  • De vrijstaande woning heeft een woonoppervlakte van 190 m² en beschikt over 5 kamers, waarvan 4 slaapkamers;
  • De woning is gebouwd In 1983 en ligt in de buurt Rijckholt in Gronsveld;
  • De woning beschikt onder andere over de volgende voorzieningen: Bad, Douche, Bergruimte, Toilet.

Beschrijving

Deze woning wordt aangeboden door Goessens & Goessens Makelaardij

-Beschrijving:
Aan de groene Voerenweg, in het charmante en landelijke dorp Rijckholt, bevindt zich deze stijlvolle, vrijstaande woning, met 4 slaapkamers, op een prachtig perceel van circa 545 m². Deze woning biedt een perfecte combinatie van ruimte, privacy en buitenleven. De royale oprit, de ruime garage en de mogelijkheid voor meerdere slaapkamers maken dit een ideale woning voor gezinnen of liefhebbers van comfort en rust. De grote, rondom gelegen tuin is een absolute troef: ideaal voor tuinliefhebbers, kinderen, of voor iedereen die geniet van het buitenleven en de rust van een groene omgeving.

Rijckholt biedt een rustige, dorpse woonomgeving, terwijl basisscholen, winkels en het winkelcentrum van Eijsden binnen korte afstand bereikbaar zijn. Tegelijkertijd ligt het bruisende centrum van Maastricht op circa tien minuten rijden, waardoor u het landelijke wonen combineert met praktische nabijheid van stedelijke voorzieningen.

-Indeling:

-Kelder:
Via de trap in de entree bereikt u de kelder, bestaande uit drie praktische bergruimtes. Deze ruimtes zijn uitermate geschikt voor opslag van voorraden, seizoensgebonden materialen of hobbybenodigdheden, waardoor u in de rest van de woning volop leefruimte overhoudt.

-Begane grond:
De royale entree, voorzien van een donkere tegelvloer, biedt toegang tot de meterkast, het toilet, de woon-/eetkamer met semi-open keuken en de trap naar het souterrain. Het toilet is keurig betegeld en uitgerust met een hangcloset en fonteintje.

De ruime woon-/eetkamer met semi-open keuken, van samen ca. 32 m² groot, ademt sfeer en charme. De grote hoge raampartijen laten veel natuurlijk licht binnenvallen en bieden een prachtig zicht op de tuin, waardoor binnen en buiten op een mooie manier met elkaar verbonden zijn. Via de openslaande deuren aan de achterzijde stapt u zo het terras op, ideaal voor het genieten van zonnige dagen of gezellige avonden buiten.

Een gedeelte van de woonkamer (ca. 21 m²) is split level gelegen. Hier ligt vloerbedekking en zorgen de karakteristieke schouw met houtkachel en het hoge plafond voor een warme, landelijke uitstraling.

De semi-open keuken, gelegen aan de achterzijde van de woning, is goed onderhouden en uitgerust met hoogwaardige apparatuur van Miele, waaronder een elektrische kookplaat, afzuigkap, oven, vaatwasser en koelkast. Vanuit de keuken is de praktische bijkeuken bereikbaar, voorzien van een spoelbak en extra bergruimte, en biedt toegang tot de garage.

-Eerste verdieping:
Via de trap in de entree bereikt u de eerste verdieping, waar een overloop toegang geeft tot vier slaapkamers en de badkamer.
• Slaapkamer 1: Een ruime slaapkamer van ca. 11 m² groot.
• Slaapkamer 2: Een fijne comfortabele slaapkamer van ca. 8 m² groot.
• Slaapkamer 3: Een comfortabele slaapkamer van ca. 8 m² groot.
• Slaapkamer 4: Een fijne slaapkamer van ca. 8 m² groot.
• Badkamer: Deze goed onderhouden, ruime badkamer is betegeld en uitgerust met een douchecabine, een ligbad, twee wastafels, een hangcloset en een handdoekradiator.

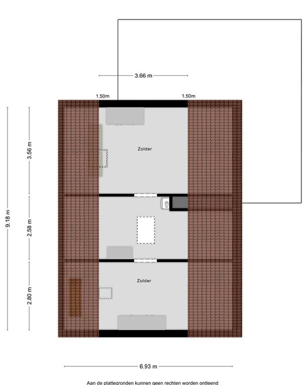
-Zolder:
Via een vlizotrap bereikt u de zolderverdieping, bestaande uit drie royale ruimtes. Hier bevindt zich de cv-installatie (Nefit, Eigendom, bouwjaar onbekend). Momenteel wordt deze verdieping gebruikt als bergruimte, maar met enige aanpassingen kunnen hier een of twee extra slaapkamers worden gecreëerd, waardoor de woning nog veelzijdiger wordt.

-Garage:
De ruime garage van ca. 21 m² is via de bijkeuken, de tuin en de handmatig bedienbare poort vanaf de oprit toegankelijk. De garage is voorzien van elektra en verwarming en biedt voldoende ruimte voor het stallen van een auto, fietsen of extra opslag. De royale oprit biedt daarnaast parkeergelegenheid voor meerdere voertuigen.

-Tuin:
De schitterende tuin rondom de woning is een echte blikvanger. Toegang is mogelijk vanuit de woon-/eetkamer, de garage en de zijingang. De combinatie van weelderige plantenborders, een groot gazon en een ruim terras direct grenzend aan de woonkamer maakt dit een veelzijdige en groene buitenruimte. Achter in de tuin bevindt zich een praktische berging voor tuingereedschap of materialen. Het ruime perceel van circa 545 m² biedt volop mogelijkheden om extra terrassen aan te leggen, een moestuin te starten of gewoon te genieten van het buitenleven in alle rust.

-Nadere bijzonderheden:
• Type woning: Vrijstaande woning met garage en uitgestrekte tuin, gelegen op een perceel van maar liefst ca. 545 m² in Rijckholt.
• Kozijnen: Hardhouten kozijnen met enkele beglazing.
• Centrale verwarming: HR combi-ketel (Nefit, Eigendom, bouwjaar onbekend).
• Energielabel: D. Met nog voldoende mogelijkheden tot verduurzaming, die de makelaar u graag toelicht.
• Alle vermelde afmetingen zijn indicatief en kunnen afwijken van de werkelijkheid.

-Omgeving:
Rustig wonen in het charmante Rijckholt, nabij Gronsveld en Maastricht
Deze woning is prachtig gelegen aan de rand van Gronsveld, in het karakteristieke dorp Rijckholt – een pittoreske plek met een rijke historie en een bijzonder aangename woonomgeving. Rijckholt maakt deel uit van de gemeente Eijsden-Margraten en combineert de rust van het Zuid-Limburgse landschap met de nabijheid van stedelijke voorzieningen. Hier woont u landelijk en rustig, omringd door natuur, maar met het bruisende Maastricht op slechts enkele autominuten afstand. Het dorp staat bekend om zijn gemoedelijke sfeer, authentieke dorpskern, tradities zoals de eeuwenoude schutterij en natuurlijk het nabijgelegen Savelsbos – een uitgestrekt natuurgebied waar wandelaars en natuurliefhebbers hun hart kunnen ophalen. Voorzieningen zoals een bakker, basisschool en kinderopvang vindt u in het naastgelegen Gronsveld, waardoor de omgeving zowel voor gezinnen als rustzoekers ideaal is. Dankzij de uitstekende ligging ten opzichte van de A2 en andere uitvalswegen bent u binnen 10 minuten in het centrum van Maastricht, en ook steden als Luik en Aken zijn vlot bereikbaar.
Kortom: wonen in Rijckholt betekent genieten van ruimte, rust en natuur, met alle dagelijkse gemakken en de stad binnen handbereik.

Graag verwijzen wij u naar onze website ******, waar meer verkoopinformatie, onze disclaimer en de verkoopvoorwaarden te vinden zijn. Deze presentatie is door Goessens & Goessens Makelaardij met de nodige zorg samengesteld. Onzerzijds wordt echter geen enkele aansprakelijkheid aanvaard voor enige onvolledigheid, onjuist of anderszins, dan wel de gevolgen daarvan. Alle opgegeven maten en oppervlakten zijn indicatief. Deze presentatie is slechts indicatief. Er is nagestreefd naar een zo zorgvuldig mogelijke informatie van de ter beschikking staande gegevens.

Reageer op tijd op nieuw woningaanbod

Meer dan de helft van de reacties komt binnen 48 uur. Ontvang direct notificaties bij nieuw aanbod en reageer sneller met Pararius+.

Probeer Pararius+ 14 dagen € 0,01

Overdracht

Vraagprijs
€ 589.000 k.k.
Aangeboden sinds
05-11-2025
Status
Verkocht onder voorbehoud
Beschikbaar
In overleg
Onderhoudsstaat
Goed

Oppervlakte en inhoud

Woonoppervlakte
190 m²
Perceeloppervlakte
465 m²
Inhoud
907 m³

Bouw

Type woning
Huis
Soort woning
Vrijstaande woning, Eengezinswoning
Soort bouw
Bestaande bouw
Bouwjaar
1983
Ligging
Aan een rustige weg

Indeling

Aantal kamers
5
Aantal slaapkamers
4
Aantal badkamers
1
Aantal woonlagen
4
Voorzieningen
  • Bad
  • Douche
  • Bergruimte
  • Toilet

Buitenruimte

Balkon
Niet aanwezig
Tuin
Aanwezig
Tuinbeschrijving
tuin rondom
Dakterras
Niet aanwezig

Energie

Verwarming
CV-ketel
Warm water
CV-ketel
Energielabel
D

Parkeergelegenheid

Aanwezig
Ja
Soort parkeergelegenheid
Openbaar

Garage

Aanwezig
Ja
Meld een probleem met deze woning