Contact met de makelaar

Deze woning is gevonden buiten ons eigen netwerk. Met de knop hieronder kom je direct bij de aanbieder terecht.

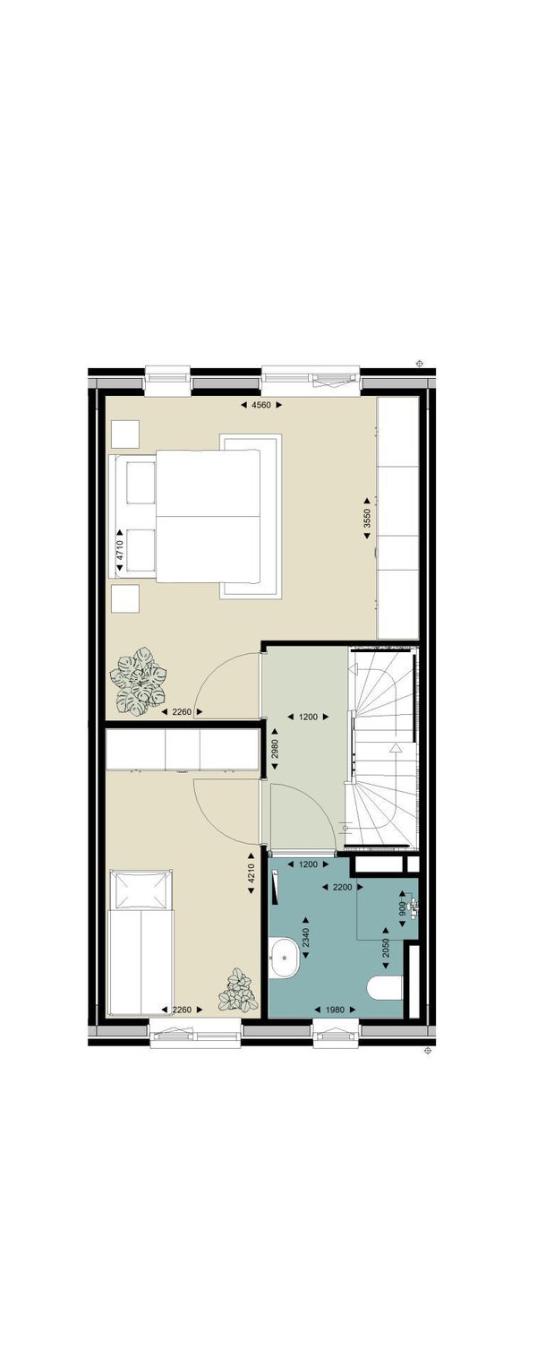
Type G2

Bekijk kaart
- Haaften (Haaften)
Prijs op aanvraag

Samenvatting

  • Deze woning wordt sinds 2 maanden aangeboden door Nieuwbouw Nederland.

Beschrijving

  • Ontdek deze woning, onderdeel van een nieuwbouwproject, met een prijs van €. Met een oppervlakte van m² biedt deze woning volop leefruimte. De woning beschikt over kamer.

Aan de Dorpshuisstraat en Honekeskamp, in het sfeervolle Haaften, verrijst een nieuw stukje woongeluk: Hartje Haaften. Een kleinschalig nieuwbouwplan met 26 duurzame woningen, waarvan de helft koop- en de andere helft huurwoningen betreft. De 13 koopwoningen bestaan uit 6 rijwoningen en 7 royale twee- en driekappers, ideaal voor gezinnen. De huurwoningen zijn eveneens rijwoningen. Een deel is bedoeld voor starters, een ander deel is levensloopbestendig en dus geschikt voor bewoners die zich willen voorbereiden op de toekomst. Hier woon je in alle rust, met volop ruimte voor ontmoeting, natuur en alle dagelijkse voorzieningen dichtbij.

De verkoop van Hartje Haaften komt dichterbij. Een spannende stap – en wij helpen je graag om goed voorbereid te zijn.

Inloopmiddag | Maandag 24 november | 16.00 – 19.00 uur
Inloopmiddag bij Van Kessel & Van Gellicum in Geldermalsen. Kom gerust langs om je vragen te stellen, hulp te krijgen bij de inschrijving en kennis te maken met het makelaarsteam.

Start verkoop | Dinsdag 25 november | 14.00 uur
Start online inschrijving via je persoonlijke account. Vanaf dit moment kun je jouw voorkeuren doorgeven. Zorg dat je bent ingelogd, je financiële mogelijkheden kent en je favorieten klaar hebt staan.

Overdracht

Vraagprijs
Prijs op aanvraag
Aangeboden sinds
11-11-2025
Status
Beschikbaar
Beschikbaar
In overleg

Bouw

Type woning
Huis
Soort woning
Hoekwoning
Soort bouw
Nieuwbouw

Buitenruimte

Balkon
Niet aanwezig
Tuin
Niet aanwezig
Dakterras
Niet aanwezig

Bergruimte

Schuur/Berging
Niet aanwezig

Parkeergelegenheid

Aanwezig
Nee
Meld een probleem met deze woning