Contact met de makelaar

Deze woning is gevonden buiten ons eigen netwerk. Met de knop hieronder kom je direct bij de aanbieder terecht.

Nieuw

Schelpstraat

Bekijk kaart
4661 EM Halsteren (De Beek)
€ 335.000 k.k.
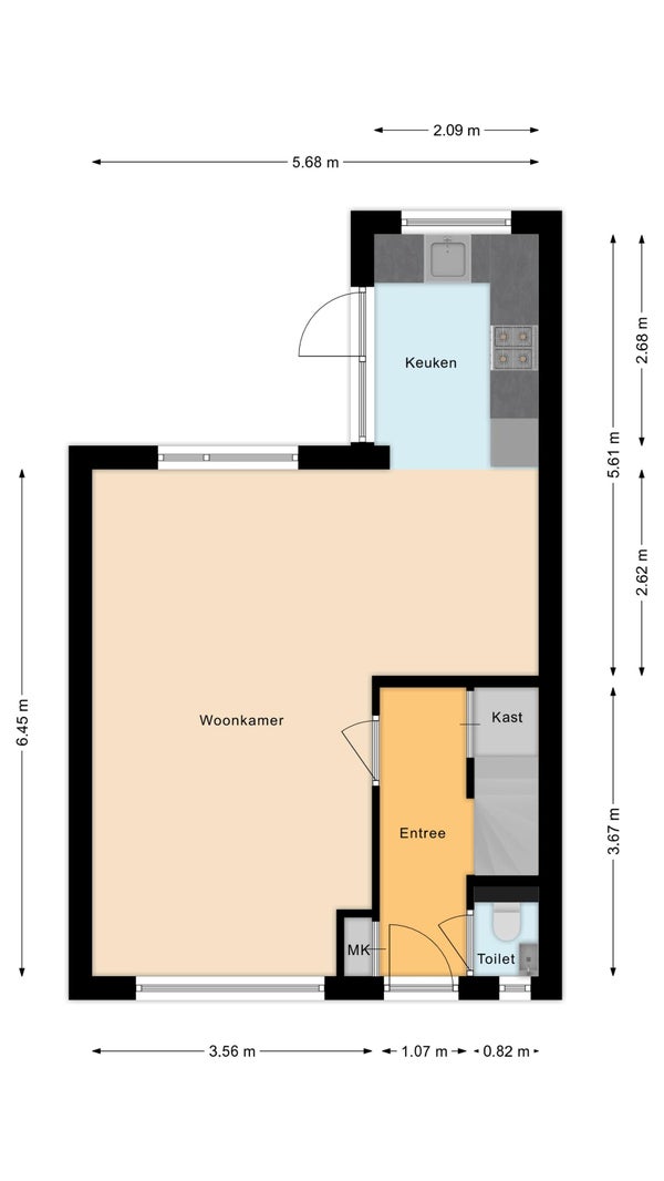
  • 79 m²
  • 5 kamers
  • 1960

Samenvatting

  • Deze woning wordt sinds 12 december 2025 aangeboden door Baas Makelaars;
  • De tussenwoning heeft een woonoppervlakte van 79 m² en beschikt over 5 kamers, waarvan 4 slaapkamers;
  • De woning is gebouwd In 1960 en ligt in de buurt De Beek in Halsteren.

Beschrijving

Overdracht

Vraagprijs
€ 335.000 k.k.
Aangeboden sinds
12-12-2025
Status
Beschikbaar
Beschikbaar
In overleg

Oppervlakte en inhoud

Woonoppervlakte
79 m²
Perceeloppervlakte
165 m²

Bouw

Type woning
Huis
Soort woning
Tussenwoning (rijtjeshuis), Eengezinswoning
Soort bouw
Bestaande bouw
Bouwjaar
1960

Indeling

Aantal kamers
5
Aantal slaapkamers
4
Aantal badkamers
1

Buitenruimte

Dakterras
Niet aanwezig

Energie

Energielabel
C
Meld een probleem met deze woning