Contact met de makelaar

Deze woning is gevonden buiten ons eigen netwerk. Met de knop hieronder kom je direct bij de aanbieder terecht.

Pastoriepad

Bekijk kaart
5527 EJ Hapert (Hapert Centrum)
€ 419.000 k.k.
  • 110 m²
  • 6 kamers
  • 1982

Samenvatting

  • Deze woning wordt sinds 3 januari 2026 aangeboden door Hennie Kunnen Makelaardij;
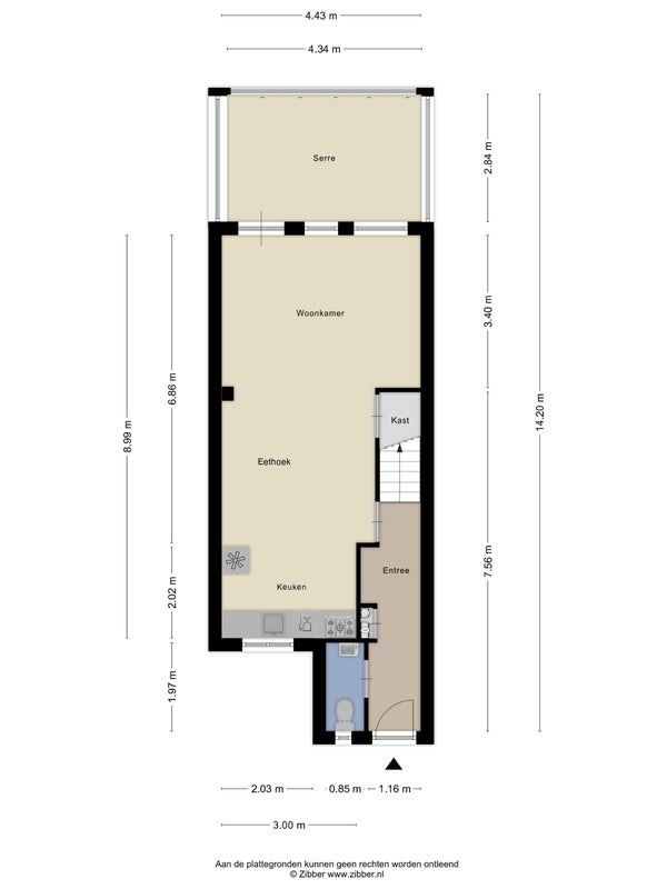
  • De tussenwoning heeft een woonoppervlakte van 110 m² en beschikt over 6 kamers, waarvan 4 slaapkamers;
  • De woning is gebouwd In 1982 en ligt in de buurt Hapert Centrum in Hapert.

Beschrijving

Dit eengezinshuis, gebouwd in 1982, is gelegen aan een rustige weg in het centrum. Met een woonoppervlakte van 110 m² en een perceeloppervlakte van 118 m² biedt het voldoende ruimte voor gezinnen. Het huis heeft 6 kamers, waarvan 4 slaapkamers en 1 badkamer met wastafel, toilet en douche. De woning beschikt over 3 woonlagen, een beschutte achtertuin van 45 m² en een voortuin. Buiten zijn er een vrijstaande schuur en diverse voorzieningen zoals zonnepanelen en airco. Het huis is goed onderhouden, met dak-, muur- en vloerisolatie, en een energielabel A. De C.V.-ketel (Remeha uit 2014) zorgt voor verwarming en warm water. Er is openbaar parkeergelegenheid en het huis is volledig eigendom.

Reageer op tijd op nieuw woningaanbod

Meer dan de helft van de reacties komt binnen 48 uur. Ontvang direct notificaties bij nieuw aanbod en reageer sneller met Pararius+.

Probeer Pararius+ 14 dagen € 0,01

Overdracht

Vraagprijs
€ 419.000 k.k.
Aangeboden sinds
03-01-2026
Status
Beschikbaar
Beschikbaar
In overleg

Oppervlakte en inhoud

Woonoppervlakte
110 m²
Perceeloppervlakte
118 m²

Bouw

Type woning
Huis
Soort woning
Tussenwoning (rijtjeshuis), Eengezinswoning
Soort bouw
Bestaande bouw
Bouwjaar
1982

Indeling

Aantal kamers
6
Aantal slaapkamers
4
Aantal badkamers
1

Buitenruimte

Dakterras
Niet aanwezig

Energie

Energielabel
A
Meld een probleem met deze woning