- 133 m²
- 6 kamers
- 1974
Samenvatting
- Deze woning wordt sinds 2 maart 2026 aangeboden door Hoekstra & van Eck Heerhugowaard;
- De tussenwoning heeft een woonoppervlakte van 133 m² en beschikt over 6 kamers, waarvan 5 slaapkamers;
- De woning is gebouwd In 1974 en ligt in de buurt Planetenwijk in Heerhugowaard.
Beschrijving
Direct online een bezichtiging inplannen? Ga naar onze website!
DE DROOMSTART VOOR JONGE GEZINNEN EN RUSTZOEKERS IN PLANETENWIJK
Welkom in een huis waar woongenot, comfort en een geweldige locatie samenkomen! Deze ruime gezinswoning, gelegen in de geliefde Planetenwijk, biedt de perfecte balans tussen rust en stadse voorzieningen. Met vijf royale slaapkamers, een zonnige tuin met een luxe veranda én een moderne, uitgebouwde woonkamer kan dit zomaar jouw droomhuis worden. De gezellige buurt, op loopafstand van winkels, scholen en het NS-station, maakt deze woning ideaal voor iedereen die op zoek is naar een fijne thuisbasis. Zie jij jezelf hier al thuiskomen? Lees snel verder en ontdek meer!
WONINGHIGHLIGHTS
- Gelegen in de populaire Planetenwijk met een rustige, kindvriendelijke sfeer.
- Stijlvolle, moderne afwerking met een vernieuwde keuken (2021) en luxe sanitair.
- Zonnige tuin (zuidoosten) met veranda, berging én volop privacy.
- Vijf ruime slaapkamers, ideaal voor (jonge) gezinnen en thuiswerken.
- Centrale ligging: dichtbij winkels, scholen, speeltuinen en het NS-station.
- Uitgebouwde woonkamer mét openslaande deuren naar de tuin.
WELKOM IN JULLIE NIEUWE DROOMHUIS
Zodra je de straat inrijdt, voel je het al: hier wil je wonen. De Planetenwijk staat bekend om haar gemoedelijke sfeer, ruime opzet en groene omgeving. Kinderen spelen veilig in de buurt, buren maken een praatje én binnen een paar minuten fietsen sta je midden in de stad. Ideaal, toch? De woning zelf straalt één en al warmte en comfort uit. Perfect voor wie het liefst direct z’n spullen neerzet en gaat genieten.
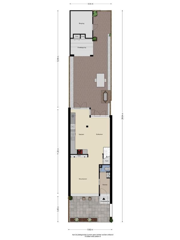
Bij binnenkomst in de hal voel je meteen hoe licht en ruimtelijk deze woning is. De benedenverdieping is recent helemaal gemoderniseerd. De woonkamer is met een uitbouw vergroot en voorzien van dubbele openslaande deuren naar de zonnige achtertuin. Denk eens in: zomerse dagen met de deuren open, een zacht briesje dat naar binnen waait... Zie je het al voor je? De keuken, vernieuwd in 2021, is een plaatje. Strakke lijnen, moderne apparatuur én optimaal design. Of je nu een snelle hap klaarmaakt of een uitgebreid diner, hier kook je in stijl.
Op de eerste verdieping vind je maar liefst drie slaapkamers, allemaal netjes afgewerkt en voorzien van verduisterende rolluiken. Hierdoor slaap je altijd lekker lang uit, zelfs als de ochtendzon krachtig door de ramen wil piepen. De badkamer is modern en praktisch ingericht, met een heerlijk ruime inloopdouche, toilet en een stijlvol wastafelmeubel. Op de tweede verdieping zijn nog twee slaapkamers, ideaal als kinderkamers, logeerkamers of je eigen thuiswerkplek. De gehele woning is voorzien van kunststof kozijnen met dubbel glas, behalve de dakkapel waar houten kozijnen met dubbel glas zijn aangebracht. Dit maakt de woning energiezuinig én onderhoudsarm.
Stap je door de openslaande deuren naar buiten, dan wacht een heerlijke verrassing: de zonnige achtertuin. Dankzij de ligging op het zuidoosten geniet je hier vanaf de ochtend tot laat in de middag van de zon. Of je nu buiten wilt ontbijten, een boek leest onder de veranda of ’s avonds borrelt met vrienden – deze tuin is gemaakt voor buitenleven. De aangebouwde veranda heeft niet alleen sfeer, maar biedt ook beschutting als het weer even niet meewerkt. Achterin de tuin vind je nog een praktische berging voor je fiets, gereedschap of tuinspullen.
Wat deze woning extra aantrekkelijk maakt, is de centrale ligging. Scholen, supermarkten, speeltuintjes, sportclubs én het NS-station liggen allemaal op korte afstand. Een werkdag in Amsterdam of Utrecht? Dankzij de uitstekende ov-verbindingen ben je er zo. Even een wandeling maken of frisse lucht halen? De groene parken in de buurt nodigen uit tot ontspanning. Het is deze combinatie van rust, ruimte en bereikbaarheid die ervoor zorgt dat Planetenwijk zo’n geliefde plek is.
Kortom: deze woning heeft alles wat je nodig hebt om jarenlang met plezier te wonen. Of je nu een jong gezin bent dat rust zoekt, of gewoon houdt van een doordacht, comfortabel huis – dit is jouw kans.
HIGHLIGHTS IN EEN NOTENDOP
Deze woning in Planetenwijk is dé plek om thuis te komen. Van de zonnige tuin met veranda tot de vernieuwde keuken en vijf ruime slaapkamers; het ademt comfort. Dankzij de gunstige ligging woon je in rust, maar wel dichtbij alle voorzieningen. De uitgebouwde woonkamer met openslaande deuren geeft je woonplezier. Energiebewust dankzij de kunststof kozijnen en dubbel glas. Zoek niet verder – dit is jouw ideale plek!
Interesse? Zoek niet verder. Dit huis heeft alles waar je naar op zoek bent. Plan snel een bezichtiging en ontdek het zelf!
Overdracht
- Vraagprijs
- € 450.000 k.k.
- Prijs per m²
- € 3.383
- Aangeboden sinds
- 02-03-2026
- Status
- Beschikbaar
- Beschikbaar
- In overleg
Oppervlakte en inhoud
- Woonoppervlakte
- 133 m²
- Perceeloppervlakte
- 156 m²
- Inhoud
- 475 m³
Bouw
- Type woning
- Huis
- Soort woning
- Tussenwoning (rijtjeshuis), Eengezinswoning
- Soort bouw
- Bestaande bouw
- Bouwjaar
- 1974
Indeling
- Aantal kamers
- 6
- Aantal slaapkamers
- 5
Buitenruimte
- Balkon
- Niet aanwezig
- Tuin
- Aanwezig
- Dakterras
- Niet aanwezig
Energie
- Energielabel
- C
Garage
- Aanwezig
- Nee