Contact met de aanbieder

Deze woning is gevonden buiten ons eigen netwerk. Via de knop hieronder ga je direct naar de website van de aanbieder.

Tesselschadelaan 7

Bekijk kaart
5702 DD Helmond (Binderen)
€ 399.000 k.k.
  • 145 m²
  • 6 kamers
  • 1991

Samenvatting

  • Deze woning wordt sinds 7 weken aangeboden door Vastgoed-Totaal;
  • De 2-onder-1-kapwoning heeft een woonoppervlakte van 145 m² en beschikt over 6 kamers, waarvan 3 slaapkamers;
  • De woning is gebouwd In 1991 en ligt in de buurt Binderen in Helmond;
  • De woning beschikt onder andere over de volgende voorzieningen: Airconditioning, Bad, Glasvezelaansluiting, Mechanische ventilatie, Dakraam, Bergruimte, Toilet.

Beschrijving

Tweekapper aan de Tesselschadelaan ; Royaal wonen met extra ruimte aan huis, uitgebouwde leefruimte en fijne tuin!

Zoekt u een ruime tweekapper in een prettige woonwijk van Helmond, waar u óók comfortabel kunt werken of ondernemen aan huis? Dan past deze woning aan de Tesselschadelaan uitstekend bij u. Met ca. 145 m² woonoppervlakte, een lichte aanbouw met grote schuifpui en zonneluifel, én een omgebouwde garage tot hobby/werkruimte met keukenblok, biedt deze gezinswoning alles voor heerlijk wonen en praktisch leven.

BEZICHTIGEN?
Wilt u een afspraak maken voor een bezichtiging? Dan ontvangen wij uw aanvraag graag via 'plan een bezichtiging' op de ****** site.
Wij nemen dan telefonisch contact met u op.

Kenmerken die u gaan aanspreken
Oppervlakte & ruimtes: royale leefruimtes, fijne aanbouw voor extra zit/speel of werkruimte.
Hobby/werkruimte aan huis: voormalige garage omgebouwd tot multifunctionele salon/werkplek/bijkeuken met keukenblok.
Staat van de woning: netjes onderhouden, naar eigen smaak te moderniseren.
Duurzaam: 12 zonnepanelen.

Indeling die bij u past

Begane grond
Hal
Uw entree voelt direct goed: houten vloer, gestuukte wanden, een fijne, lichte binnenkomst. Vanuit de hal bereikt u de woonkamer, toiletruimte en trapopgang naar de verdieping.

Woonkamer
Prettig ingedeeld en sfeervol: houten vloer, gestuukte wanden en plafonds, veel natuurlijk licht door meerdere raampartijen, en een knusse zithoek waar u zich meteen thuis voelt.

Keuken (open, L-vormig)
Aansluitend aan de woonkamer treft u de degelijk uitgevoerde eikenhouten keuken met heteluchtoven en keramische kookplaat. De houten vloer en gestuukte wanden lopen door; moderniseert u graag? Dan ligt hier een mooi kansrijke basis.

Aanbouw
Vanuit de keuken loopt u de fijne extra kamer in: superlicht dankzij de grote schuifpui en de vele raampartijen; royale leefruimte voor uw eettafel, speelplek of tweede zithoek. De houten vloer en gestuukte wanden worden hier stijlvol doorgezet. Zonneluifel aanwezig voor schaduw op warme dagen.

Hobby/werkruimte aan huis
De garage is omgebouwd tot praktische salon/werkruimte met keukenblok. Ideaal voor wie aan huis wil werken, ondernemen of thuiswerken; ook prima als bijkeuken of hobbyruimte. U richt deze plek moeiteloos naar uw eigen idee in.

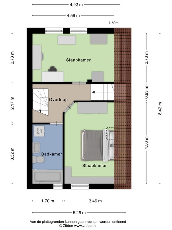
Eerste verdieping
Slaapkamers
Twee grote slaapkamers: één met vloerbedekking, één met laminaatvloer; beide met gestuukte wanden en fijne ramen voor lucht en licht.

Badkamer
Volledig betegeld en functioneel: ligbad met douche, toilet, wastafel en aansluiting wasmachine. De ruimte is netjes, en u kunt deze naar eigen smaak moderniseren.

Zolder
Vaste trap naar de derde slaapkamer met laminaatvloer en dakraam: een fijne extra kamer voor slapen, studeren of thuiskantoor. Hier bevindt zich ook de cv-installatie.

Tuin
Fijne, grote tuin, standaard aangelegd en onderhoudsvriendelijk; klaar om naar uw smaak verder in te richten.

Bijgebouw
Tuinhuis voor extra berging.

Bereikbaarheid & voorzieningen
Ligging: Tesselschadelaan ligt in Helmond-Noord (buurten Binderen/Bloemvelden) – een kindvriendelijke, rustige woonomgeving op fietsafstand van het centrum.
Treinstations: Station Helmond ca. 2 km; Helmond Brouwhuis, Helmond ’t Hout en Helmond Brandevoort op redelijke fietsafstand.
Bus: stads- en streekbussen in Helmond (o.a. stadslijnen 51-55 en 150, streeklijnen 23/24/25/26) met prima dekking in de wijk.
Auto: vlotte aansluiting richting Eindhoven/Deurne via de N270; regionale en (inter)nationale verbindingen via de A67
Dagelijkse voorzieningen: supermarkten (o.a. ALDI/PLUS) op loop/fietsafstand; overige winkels en sportvoorzieningen nabij.

Tot slot
Ziet u zichzelf hier wonen én eventueel werken aan huis? Deze tweekapper combineert ruimte, licht en flexibiliteit met een goede, rustige locatie in Helmond. Moderniseert u graag stap voor stap, dan kunt u hier zonder grote ingrepen instappen en op uw eigen moment keuzes maken.

AANVULLENDE BIJZONDERHEDEN

  • Verkopers verlangen een waarborgsom/bankgarantie ter grootte van 10% van de koopsom.
  • Wilt u weten wat de verkoopmogelijkheden van uw eigen woning zijn? Neem gerust eens contact met ons op voor een vrijblijvend verkoopadvies.
  • Partijen zijn pas gebonden als er een schriftelijke koopovereenkomst is getekend.
  • De plattegronden dienen er uitsluitend voor om u een indruk te geven van de indeling.
  • Ons kantoor besteedt de uiterste zorg aan de betrouwbaarheid en actualiteit van de gegevens. Onjuistheden en onvolledigheden kunnen echter voorkomen.
    Aan de door ons gepresenteerde gegevens waaronder de teksten en plattegronden kunnen geen rechten worden ontleend.
    Twijfelt u aan de juistheid van de gegevens, vraag dan hoe deze zijn verkregen of kom nog een keer kijken. Probeer te allen tijde alle voor u relevante informatie vooraf te verkrijgen.

Overdracht

Vraagprijs
€ 399.000 k.k.
Prijs per m²
€ 2.752
Aangeboden sinds
08-01-2026
Status
Beschikbaar
Beschikbaar
In overleg
Onderhoudsstaat
Goed

Oppervlakte en inhoud

Woonoppervlakte
145 m²
Perceeloppervlakte
217 m²
Inhoud
515 m³

Bouw

Type woning
Huis
Soort woning
2-onder-1-kapwoning, Eengezinswoning
Soort bouw
Bestaande bouw
Bouwjaar
1991
Ligging
In een woonwijk

Indeling

Aantal kamers
6
Aantal slaapkamers
3
Aantal badkamers
1
Aantal woonlagen
3
Voorzieningen
  • Airconditioning
  • Bad
  • Glasvezelaansluiting
  • Mechanische ventilatie
  • Dakraam
  • Bergruimte
  • Toilet

Buitenruimte

Balkon
Niet aanwezig
Tuin
Aanwezig (217 m²)
Tuinbeschrijving
achtertuin, voortuin
Achterom
Niet aanwezig
Dakterras
Niet aanwezig

Energie

Isolatie
Dubbele beglazing, HR glas, Dakisolatie, Muurisolatie
Verwarming
CV-ketel
Warm water
CV-ketel
Cv-ketel
Nefit (Gas, uit 2019, Eigendom)
Energielabel
A

Bergruimte

Schuur/Berging
Aanwezig
Omschrijving
Vrijstaand hout

Garage

Aanwezig
Nee
Meld een probleem met deze woning