Contact met de aanbieder

Deze woning is gevonden buiten ons eigen netwerk. Via de knop hieronder ga je direct naar de website van de aanbieder.

Nieuw

Roeltjesweg 19 C

Bekijk kaart
1217 TC Hilversum (Boomberg)
€ 1.049.000 k.k.
  • 192 m²
  • 5 kamers
  • 2009

Samenvatting

  • Deze woning wordt sinds 2 maart 2026 aangeboden door Schotsman Makelaardij;
  • De tussenwoning heeft een woonoppervlakte van 192 m² en beschikt over 5 kamers, waarvan 4 slaapkamers;
  • De woning is gebouwd In 2009 en ligt in de buurt Boomberg in Hilversum.

Beschrijving

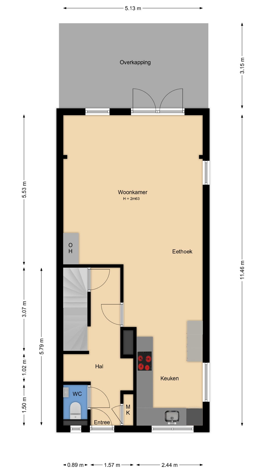
In de populaire villawijk Boomberg bevindt zich deze royale hoekwoning met twee parkeerplaatsen op eigen terrein en een groot souterrain van 58 m². De woning, gebouwd in 2009, heeft een woonoppervlakte van 192 m² en beschikt over een diepe, zonnige achtertuin op het zuiden met achterom.

De indeling van de woning is praktisch en ruim. Op de begane grond vindt u een lichte woon-eetkamer met natuurstenen vloer en open haard, een moderne keuken met inbouwapparatuur, en een hal met toilet. Het souterrain is multifunctioneel en ideaal als extra slaapkamer of hobbyruimte. Op de eerste verdieping zijn er twee ruime slaapkamers en een luxe badkamer. De tweede verdieping biedt nog een slaapkamer met en-suite badkamer.

Daarnaast is er veel praktische opbergruimte en bevindt de woning zich dichtbij scholen, winkels en uitvalswegen.

Overdracht

Vraagprijs
€ 1.049.000 k.k.
Prijs per m²
€ 5.464
Aangeboden sinds
02-03-2026
Status
Beschikbaar
Beschikbaar
Per direct

Oppervlakte en inhoud

Woonoppervlakte
192 m²
Perceeloppervlakte
160 m²

Bouw

Type woning
Huis
Soort woning
Tussenwoning (rijtjeshuis), Eengezinswoning
Soort bouw
Bestaande bouw
Bouwjaar
2009

Indeling

Aantal kamers
5
Aantal slaapkamers
4
Aantal badkamers
2

Buitenruimte

Dakterras
Niet aanwezig

Energie

Energielabel
A
Meld een probleem met deze woning