Contact met de makelaar

Deze woning is gevonden buiten ons eigen netwerk. Met de knop hieronder kom je direct bij de aanbieder terecht.

Nieuw

Curaçaolaan

Bekijk kaart
1213 VK Hilversum (West-Indiëkwartier)
€ 1.695.000 k.k.
  • 352 m²
  • 5 kamers
  • 1957

Samenvatting

  • Deze woning wordt sinds 28 januari 2026 aangeboden door Eerenberg Makelaars & Taxateurs B.V.;
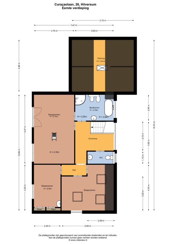
  • De tussenwoning heeft een woonoppervlakte van 352 m² en beschikt over 5 kamers, waarvan 4 slaapkamers;
  • De woning is gebouwd In 1957 en ligt in de buurt West-Indiëkwartier in Hilversum.

Beschrijving

Deze vrijstaande villa, gebouwd in 1957, ligt in een bosrijke omgeving aan een rustige, kindvriendelijke laan. Het perceel van 1.322 m² omvat een verwarmde garage van ca. 13 meter diep, een tuinhuisje en een oprit voor meerdere auto's. De villa is onderkelderd en beschikt over daglicht door drie openslaande ramen. Op de begane grond bevindt zich een ruime woonkamer met openslaande deuren naar het terras, een woon/eetkeuken met moderne apparatuur, een grote serre, een studeerkamer en een bijkeuken. De eerste etage heeft drie slaapkamers en een badkamer met whirlpool. De tuin is voorzien van fruitbomen en een prachtige beuk van ongeveer 125 jaar oud. De totale woonoppervlakte is 352 m².

Overdracht

Vraagprijs
€ 1.695.000 k.k.
Aangeboden sinds
28-01-2026
Status
Beschikbaar
Beschikbaar
Per direct

Oppervlakte en inhoud

Woonoppervlakte
352 m²
Perceeloppervlakte
1.322 m²

Bouw

Type woning
Huis
Soort woning
Tussenwoning (rijtjeshuis), Eengezinswoning
Soort bouw
Bestaande bouw
Bouwjaar
1957

Indeling

Aantal kamers
5
Aantal slaapkamers
4
Aantal badkamers
2

Buitenruimte

Dakterras
Niet aanwezig

Energie

Energielabel
D
Meld een probleem met deze woning