Contact met de makelaar

Deze woning is gevonden buiten ons eigen netwerk. Met de knop hieronder kom je direct bij de aanbieder terecht.

Nieuw

Erasmusweg 21

Bekijk kaart
9602 AB Hoogezand (Spoorstraat en Kieldiep)
€ 200.000 k.k.
  • 97 m²
  • 6 kamers
  • 1964

Samenvatting

  • Deze woning wordt sinds 22 oktober 2025 aangeboden door iQ Makelaars Groningen;
  • De tussenwoning heeft een woonoppervlakte van 97 m² en beschikt over 6 kamers, waarvan 4 slaapkamers;
  • De woning is gebouwd In 1964 en ligt in de buurt Spoorstraat en Kieldiep in Hoogezand;
  • De woning beschikt onder andere over de volgende voorzieningen: Kabel TV, Douche, Toilet.

Beschrijving

Overdracht

Vraagprijs
€ 200.000 k.k.
Aangeboden sinds
22-10-2025
Status
Beschikbaar
Beschikbaar
In overleg
Onderhoudsstaat
Goed

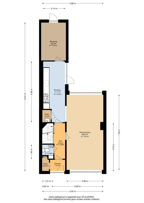
Oppervlakte en inhoud

Woonoppervlakte
97 m²
Perceeloppervlakte
213 m²
Inhoud
372 m³

Bouw

Type woning
Huis
Soort woning
Tussenwoning (rijtjeshuis), Eengezinswoning
Soort bouw
Bestaande bouw
Bouwjaar
1964
Ligging
  • Aan een drukke weg
  • In een woonwijk

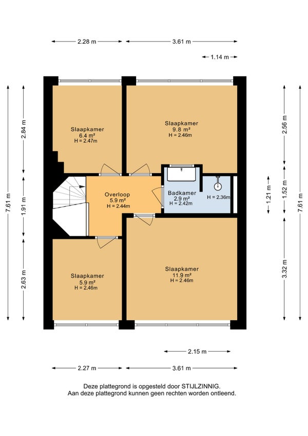
Indeling

Aantal kamers
6
Aantal slaapkamers
4
Aantal badkamers
1
Aantal woonlagen
2
Voorzieningen
  • Kabel TV
  • Douche
  • Toilet

Buitenruimte

Balkon
Niet aanwezig
Tuin
Aanwezig (20 m², gelegen op het noorden)
Tuinbeschrijving
achtertuin, voortuin
Dakterras
Niet aanwezig

Energie

Isolatie
Dakisolatie
Verwarming
CV-ketel
Warm water
CV-ketel
Cv-ketel
Intergas (Gas, uit 2013, Eigendom)
Energielabel
C

Bergruimte

Schuur/Berging
Aanwezig
Omschrijving
Aangebouwd steen

Parkeergelegenheid

Aanwezig
Ja
Soort parkeergelegenheid
Openbaar

Garage

Aanwezig
Nee
Meld een probleem met deze woning
Contact met de makelaar Bel