- 127 m²
- 5 kamers
- 1978
Samenvatting
- Deze woning wordt sinds 30 januari 2026 aangeboden door Goedhart Makelaars en Taxateurs;
- De tussenwoning heeft een woonoppervlakte van 127 m² en beschikt over 5 kamers, waarvan 4 slaapkamers;
- De woning is gebouwd In 1978 en ligt in de buurt Verspreide huizen West in Leimuiden;
- De woning beschikt onder andere over de volgende voorzieningen: Kabel TV, Open haard, Rookkanaal, Internetaansluiting, Mechanische ventilatie, Bergruimte, Toilet.
Beschrijving
In een rustige, groene en kindvriendelijke woonwijk in Leimuiden staat deze verrassend ruime eengezinswoning met grote uitbouw op de begane grond, maar liefst 127 m² woonoppervlak en een heerlijke, zonnige tuin op het zuidwesten!
Koopsom vanaf € 450.000,-
De woning is goed onderhouden, licht, praktisch ingedeeld en beschikt over vier slaapkamers, een moderne badkamer, een royale uitgebouwde woonkamer én een diepe tuin met grote vrijstaande houten berging met veranda en veel privacy. Een ideale gezinswoning op een fijne plek!
Ligging:
Griede 21 ligt in een rustige en kindvriendelijke straat, met veel parkeergelegenheid in de directe nabijheid. De wijk is groen, verkeersluw en kindvriendelijk. Op loopafstand vind je speelplaatsen, groen, scholen, winkels en openbaar vervoer. Dankzij de centrale ligging in het Groene Hart rijd je bovendien snel naar onder andere Alphen aan den Rijn, Leiden, Schiphol en Amsterdam.
Via de voortuin met sierbestrating bereik je de entree. Vanuit de hal kom je in de bijzonder royale en lichte woonkamer, waar grote raampartijen zorgen voor veel daglicht en een prettig uitzicht op de tuin. De sfeervolle houtkachel vormt een gezellige blikvanger en maakt de ruimte warm en uitnodigend.
Aan de voorzijde ligt de ruime half open keuken. Dankzij de strakke opstelling heb je veel werkblad, kastruimte en licht. Daarbij is er een grote inloopkast met veel bergruimte onder de trap en beschikt de keuken over diverse inbouwapparatuur.
Vanuit de woonkamer is een tussenhal bereikbaar met toegang tot de toiletruimte en de trap naar de eerste verdieping. Aan de voorzijde van de woning bevindt zich daarnaast een praktische inpandige berging, ideaal voor het stallen van fietsen, voorraad of huishoudelijke spullen. Deze ruimte is zowel vanuit de hal als direct vanaf buiten toegankelijk, waardoor hij extra gebruiksvriendelijk is.
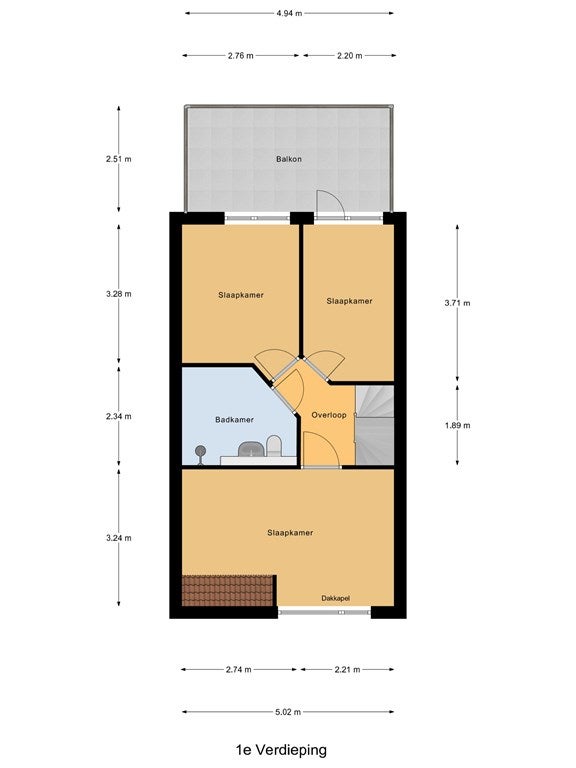
De eerste verdieping biedt drie fijne slaapkamers, allemaal licht en van prettig formaat. De moderne badkamer is praktisch ingedeeld en beschikt over een ruime inloopdouche met glazen bouwstenen wand, een wastafel en een toilet. Samen vormen de kamers op deze verdieping een comfortabele en functionele leeflaag.
Aan de achterzijde ligt bovendien een groot en breed balkon op het zonnige zuidwesten, waar je heerlijk privé buiten kunt zitten en van de middag- en avondzon kunt genieten.
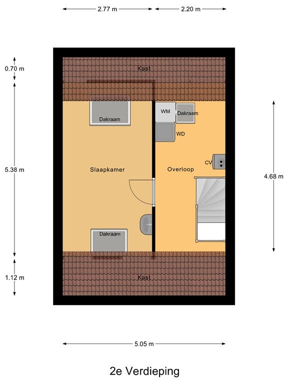
De tweede verdieping is bereikbaar via een vaste trap en biedt verrassend veel ruimte. De royale overloop is praktisch ingedeeld en voorzien van de wasmachine- en drogeraansluiting, bergruimte achter de knieschotten en de opstelplaats voor de cv-installatie. Dankzij het dakraam valt er prettig daglicht naar binnen, waardoor dit niet alleen een functionele, maar ook een aangename ruimte is om te gebruiken.
Vanuit de overloop is er toegang tot een ruime slaapkamer, die door de hoge nok en het goede lichtinval een fijne plek vormt als extra slaap-, werk- of hobbykamer. Bovendien beschikt deze verdieping over een handige bergvliering, ideaal voor het opbergen van seizoensspullen en andere zaken die je niet dagelijks nodig hebt.
Aan de achterzijde van de woning bevindt zich een ruim balkon over de volledige breedte van het huis. Dankzij de vrije ligging geniet je hier van veel privacy en een prettig uitzicht over de achtertuinen en de groene omgeving.
Het is een ideale plek voor een comfortabele stoel of klein zitje, waar je vanaf het voorjaar tot ver in het najaar heerlijk buiten kunt ontspannen.
De achtertuin is een heerlijke, groene tuin met een bijzonder gunstige ligging op het zonnige zuidwesten. Hierdoor geniet je van vroege middagzon tot in de late avond, perfect voor gezellige etentjes, ontspannen loungen of tuinieren.
De tuin is speels en sfeervol ingericht met verhoogde borders, volwassen beplanting en een royale terrasruimte direct achter de woning. Dankzij de grote schuifpui vloeien binnen en buiten hier mooi in elkaar over, waardoor de tuin echt voelt als een verlengstuk van de woonkamer.
Achterin de tuin vind je een ruime houten berging, ideaal voor fietsen, gereedschap en opslag. Aangrenzend bevindt zich een gezellige overkapping/veranda, waar je met gemak een knusse zithoek kunt creëren. Met het houtvuur erbij of gewoon beschut tegen zon of regen is dit een plek waar je het hele jaar door heerlijk kunt zitten.
De combinatie van groen, privacy, zon en functionaliteit maakt deze tuin tot een plek waar je meteen wilt neerstrijken en vormt een heerlijke buitenruimte waar elke dag bijna als vakantie voelt.
- Bouwjaar: 1978
- Woonoppervlakte: 127 m² én een inpandige berging van 6 m²
- Gebouwgebonden buitenruimte (balkon op het zuidwesten): 12,4 m²
- Externe bergruimte (vrijstaande houten berging met overkapping): 6 m²
- Uitgebouwde en lichte woonkamer met grote glazen schuifpui naar de tuin
- Vier ruime slaapkamers, waarvan één royale zolderkamer
- Zonnige achtertuin op het zuidwesten
- Kindvriendelijke en rustige woonomgeving
- Veel parkeergelegenheid in de directe nabijheid
- Centrale ligging nabij winkels, scholen en uitvalswegen
- Oplevering in overleg
Koopsom vanaf € 450.000,- / Vraagprijs € 500.000,-
Alle biedingen vanaf € 450.000,- worden in overweging genomen.
Overdracht
- Vraagprijs
- € 450.000 k.k.
- Aangeboden sinds
- 30-01-2026
- Status
- Beschikbaar
- Beschikbaar
- In overleg
- Onderhoudsstaat
- Goed
Oppervlakte en inhoud
- Woonoppervlakte
- 127 m²
- Perceeloppervlakte
- 143 m²
- Inhoud
- 460 m³
Bouw
- Type woning
- Huis
- Soort woning
- Tussenwoning (rijtjeshuis), Herenhuis
- Soort bouw
- Bestaande bouw
- Bouwjaar
- 1978
- Ligging
-
- Aan een rustige weg
- In een woonwijk
- Nabij het openbaar vervoer
Indeling
- Aantal kamers
- 5
- Aantal slaapkamers
- 4
- Aantal badkamers
- 1
- Aantal woonlagen
- 3
- Voorzieningen
-
- Kabel TV
- Open haard
- Rookkanaal
- Internetaansluiting
- Mechanische ventilatie
- Bergruimte
- Toilet
Buitenruimte
- Balkon
- Aanwezig
- Tuin
- Aanwezig (53 m², gelegen op het zuidwesten)
- Tuinbeschrijving
- achtertuin
- Achterom
- Aanwezig
- Dakterras
- Niet aanwezig
Energie
- Isolatie
- Spouwmuurisolatie, Dakisolatie, Muurisolatie
- Verwarming
- CV-ketel, Open haard, Gedeeltelijke vloerverwarming
- Warm water
- CV-ketel
- Cv-ketel
- CV Hr combiketel (Gas, Eigendom)
- Energielabel
- B
Bergruimte
- Schuur/Berging
- Aanwezig
Parkeergelegenheid
- Aanwezig
- Ja
- Soort parkeergelegenheid
- Openbaar