Contact met de aanbieder

Deze woning is gevonden buiten ons eigen netwerk. Via de knop hieronder ga je direct naar de website van de aanbieder.

van Rummenstraat 1

Bekijk kaart
5575 BT Luyksgestel (Dorpstraat-Sengelsbroeksestraat)
€ 625.000 k.k.
  • 158 m²
  • 6 kamers
  • 1981

Samenvatting

  • Deze woning wordt sinds 23 februari 2026 aangeboden door Hennie Kunnen Makelaardij;
  • De tussenwoning heeft een woonoppervlakte van 158 m² en beschikt over 6 kamers, waarvan 4 slaapkamers;
  • De woning is gebouwd In 1981 en ligt in de buurt Dorpstraat-Sengelsbroeksestraat in Luyksgestel.

Beschrijving

Dit ruime vrijstaande woonhuis, gelegen in een rustige straat, bevindt zich op een zonnig perceel van 289 m². Het biedt een diepe oprit met ruimte voor meerdere auto’s en een garage met elektrische deur en vlizotrap naar de bergzolder. De woning beschikt over vier slaapkamers en een onderhoudsvriendelijke tuin op het zuiden met een overdekt terras.

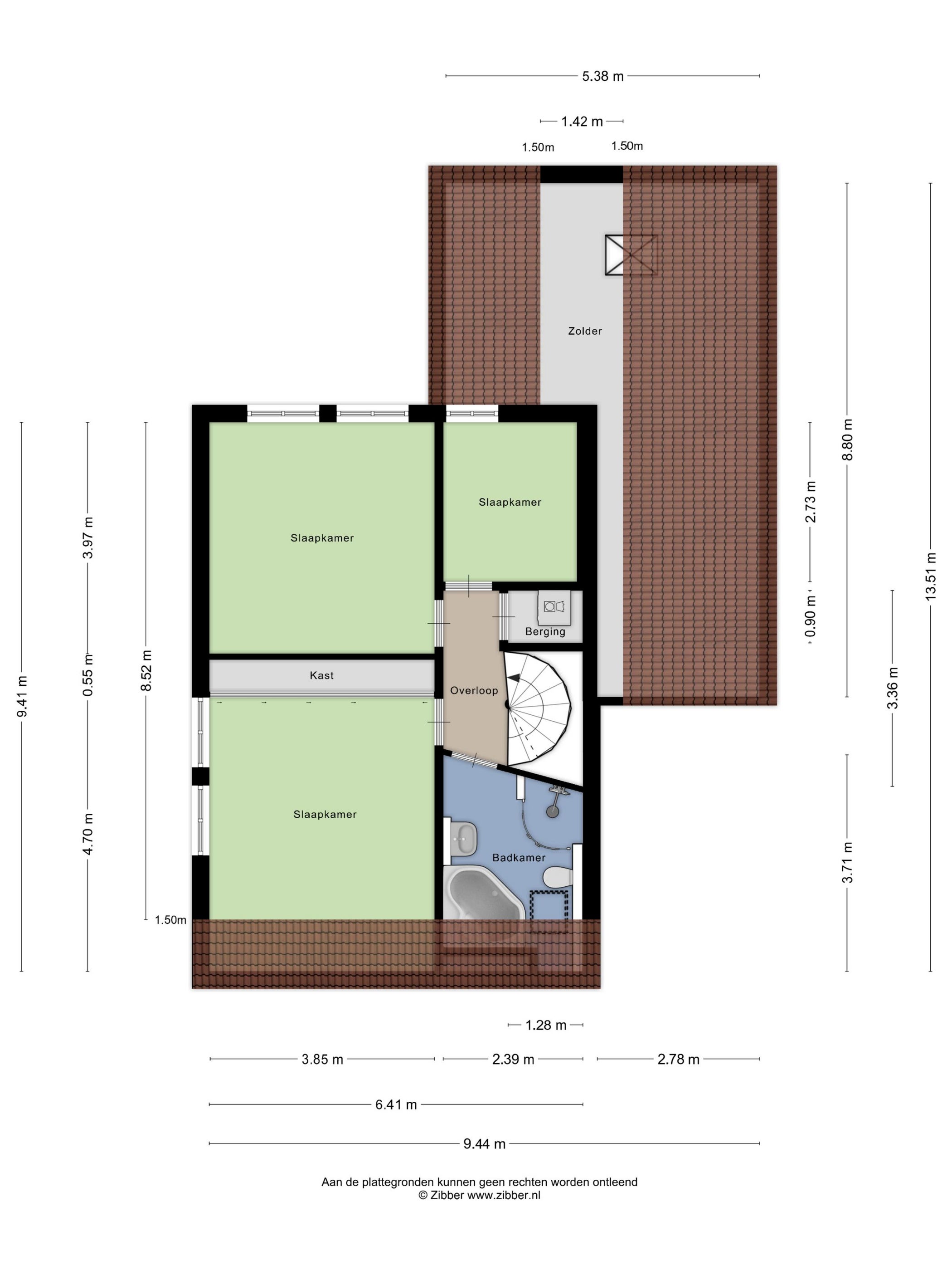
De begane grond is volledig betegeld met vloerverwarming en omvat een lichte woonkamer met erker en een eetkamer met directe toegang tot de tuin. De moderne keuken is uitgerust met Bosch apparatuur. Op de eerste verdieping bevinden zich drie slaapkamers en een ruime badkamer. De tweede verdieping, bereikbaar via een vaste trap, bevat een vierde kamer en bergruimtes.

Het energielabel is C, en de woning is goed geïsoleerd. Het gebruiksoppervlak bedraagt 158 m² en de inhoud is 687 m³. Dit huis is ideaal voor comfortabele gezinswoning.

Overdracht

Vraagprijs
€ 625.000 k.k.
Prijs per m²
€ 3.956
Aangeboden sinds
23-02-2026
Status
Beschikbaar
Beschikbaar
Per direct

Oppervlakte en inhoud

Woonoppervlakte
158 m²
Perceeloppervlakte
289 m²

Bouw

Type woning
Huis
Soort woning
Tussenwoning (rijtjeshuis), Eengezinswoning
Soort bouw
Bestaande bouw
Bouwjaar
1981

Indeling

Aantal kamers
6
Aantal slaapkamers
4
Aantal badkamers
1

Buitenruimte

Dakterras
Niet aanwezig

Energie

Energielabel
C
Meld een probleem met deze woning