Contact met de aanbieder

Deze woning is gevonden buiten ons eigen netwerk. Via de knop hieronder ga je direct naar de website van de aanbieder.

Frans Jansenstraat 1

Bekijk kaart
5575 CN Luyksgestel (Hasselsestraat e.o.)
€ 600.000 k.k.
  • 143 m²
  • 7 kamers
  • 1976

Samenvatting

  • Deze woning wordt sinds 27 februari 2026 aangeboden door Hennie Kunnen Makelaardij;
  • De tussenwoning heeft een woonoppervlakte van 143 m² en beschikt over 7 kamers, waarvan 4 slaapkamers;
  • De woning is gebouwd In 1976 en ligt in de buurt Hasselsestraat e.o. in Luyksgestel.

Beschrijving

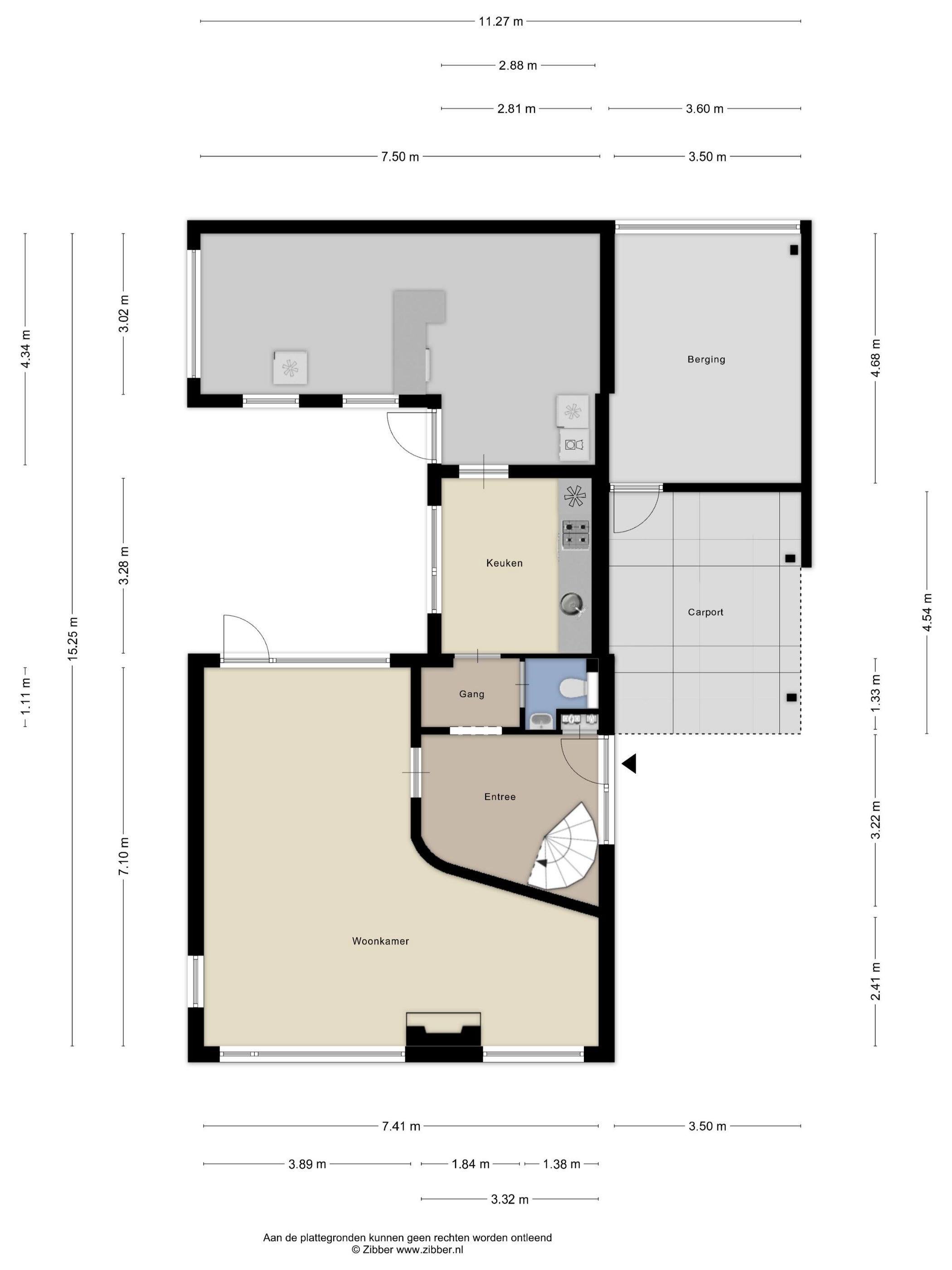
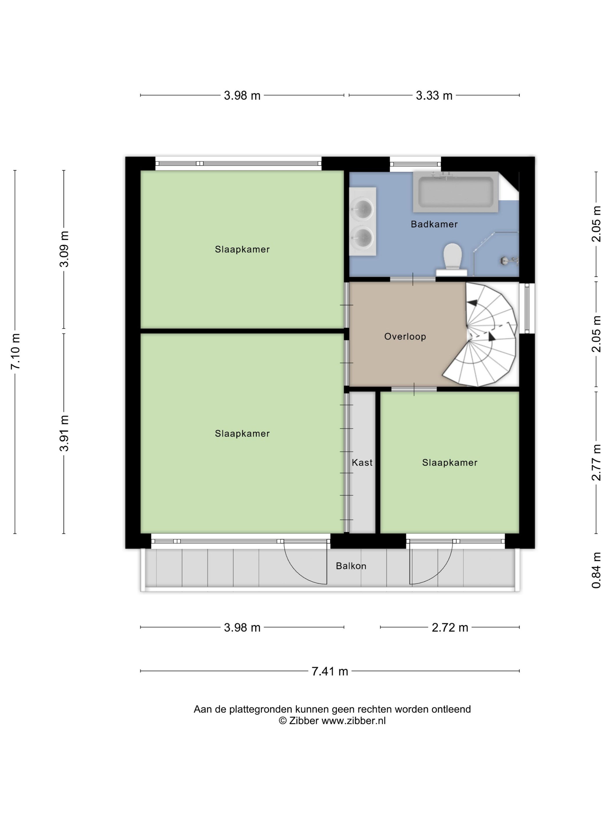
Welkom bij het woonhuis aan de Frans Jansenstraat 1 in Luyksgestel. Dit vrijstaande, energiezuinige huis (Energielabel B) staat op een hoekperceel van 389 m2, tegenover een groenvoorziening met speeltuin. De zonnige achtertuin is netjes aangelegd en biedt ruimte. In de afgelopen jaren werden er verschillende verduurzamingen uitgevoerd, zoals een nieuw geïsoleerd dak, spouwmuurisolatie, zonnepanelen en een airco. Met een gebruiksoppervlak van 187 m2, waaronder 143 m2 woonoppervlak, heeft het huis vier slaapkamers en een multifunctionele garage van 27 m2, perfect voor een beroep aan huis. De locatie is gunstig, op circa 25 minuten rijden van ASML en Eindhoven.

Overdracht

Vraagprijs
€ 600.000 k.k.
Prijs per m²
€ 4.196
Aangeboden sinds
27-02-2026
Status
Beschikbaar
Beschikbaar
Per direct

Oppervlakte en inhoud

Woonoppervlakte
143 m²
Perceeloppervlakte
389 m²

Bouw

Type woning
Huis
Soort woning
Tussenwoning (rijtjeshuis), Eengezinswoning
Soort bouw
Bestaande bouw
Bouwjaar
1976

Indeling

Aantal kamers
7
Aantal slaapkamers
4
Aantal badkamers
1

Buitenruimte

Dakterras
Niet aanwezig

Energie

Energielabel
B
Meld een probleem met deze woning