Niet beschikbaar

De woning die je wilt bekijken is niet langer beschikbaar. Je bekijkt nu het woningaanbod in dezelfde stad.

Contact met de makelaar

Deze woning is gevonden buiten ons eigen netwerk. Met de knop hieronder kom je direct bij de aanbieder terecht.

Drakensteyn 30

Bekijk kaart
3738 VR Maartensdijk (Maartensdijk Kern)
€ 699.000 k.k.
  • 151 m²
  • 5 kamers
  • 2023

Samenvatting

  • Deze woning wordt sinds 3+ maanden aangeboden door Guntenaar Wonen;
  • De tussenwoning heeft een woonoppervlakte van 151 m² en beschikt over 5 kamers, waarvan 4 slaapkamers;
  • De woning is gebouwd In 2023 en ligt in de buurt Maartensdijk Kern in Maartensdijk.

Beschrijving

TE HUUR EN TE KOOP in MAARTENSDIJK.

Luxe, Duurzaam & Instapklaar: Drakensteyn 30, Maartensdijk – € 699.000 k.k.

Stap binnen in jouw droomwoning!

Verwelkomd door een warme, moderne sfeer en het ultieme wooncomfort: deze splinternieuwe, energiezuinige (A+++) tussenwoning in het groene, kindvriendelijke Maartensdijk is instapklaar. Alles is tot in de puntjes verzorgd – je hoeft alleen nog maar je spullen te verhuizen!

Geniet van Luxe, Duurzaamheid en Ruimte

· Volledig gasloos & toekomstbestendig: Warmtepomp, CO₂-gestuurde ventilatie en 12 zonnepanelen (ca. 400 Wp per paneel) zorgen voor een lage energierekening en een kleinere ecologische voetafdruk.

· Luxe afwerking: (Visgraat) PVC-vloeren op alle verdiepingen, stijlvolle moderne keuken van Middelkoop en een prachtige badkamer met vloerverwarming.

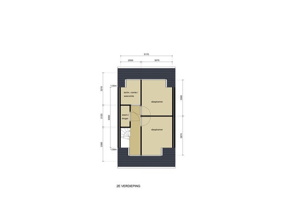
· Ruim opgezet: Royale woonkamer met openslaande deuren naar de zonnige achtertuin, een luxe open keuken aan de voorzijde en maar liefst vier ruime slaapkamers verdeeld over twee verdiepingen.

· Extra comfort: Hoge plafonds en hoge dakkapellen op de tweede verdieping, plus een aparte wasruimte voor extra gemak.

Unieke Verkooppunten

· Onderhoudsarm: Kunststof kozijnen met houtuitstraling (geen schilderwerk nodig), onderhoudsarme goten en luifel.

· Hoogwaardige afwerking: Zeer glad gestuukte wanden, gespoten plafonds, volledig afgewerkt schilderwerk en aftimmerwerk.

· Zonnige tuin: Achtertuin op het zuiden met keramisch terras (60x60 cm), nieuwe berging en hoogwaardige schutting met poort.

· Voortuin: Antraciet grind, haag en een looppad van keramische tegels.

Perfecte Ligging

· Rustig én centraal: Je woont in een kindvriendelijke, groene buurt, maar bent binnen ca. 20 minuten fietsen in het bruisende Utrecht, Bilthoven, De Bilt, Den Dolder (gemeente Zeist) en Soest.

· Voorzieningen binnen loopbereik: Scholen, winkels, sportclubs en supermarkt op slechts enkele minuten afstand (Maertensplein).

· Natuur dichtbij: Bossen, heide en zelfs de duinen bij Soest zijn snel bereikbaar.

· Openbaar vervoer: Treinstation Hollandsche Rading ligt op korte afstand, ideaal voor snelle verbindingen. Ook zijn er vele busverbindingen in de buurt.

Veelgestelde Vragen

· Is er voldoende parkeergelegenheid? Ja, er is volop openbare parkeergelegenheid in de directe omgeving. De buurt is rustig en parkeren is geen probleem.

Geniet van Maartensdijk

Maartensdijk staat bekend om haar groene karakter, kindvriendelijkheid en uitstekende voorzieningen. Winkels, scholen en natuur zijn op loopafstand. Ideaal voor gezinnen en rustzoekers!

Plan snel een bezichtiging en ervaar zelf het woonplezier van Drakensteyn 30!

De getoonde foto's zijn van Drakensteyn 28, Drakensteyn 30 is gespiegeld uitgevoerd

Aan deze tekst kunnen geen rechten worden ontleend.
Voorbehoud gunning eigenaar.

Overdracht

Vraagprijs
€ 699.000 k.k.
Aangeboden sinds
29-09-2025
Status
Beschikbaar
Beschikbaar
In overleg
Onderhoudsstaat
Zeer goed

Oppervlakte en inhoud

Woonoppervlakte
151 m²
Perceeloppervlakte
147 m²
Inhoud
375 m³

Bouw

Type woning
Huis
Soort woning
Tussenwoning (rijtjeshuis), Eengezinswoning
Soort bouw
Bestaande bouw
Bouwjaar
2023

Indeling

Aantal kamers
5
Aantal slaapkamers
4
Aantal badkamers
1
Aantal woonlagen
3
Voorzieningen
  • Toilet
  • Wasruimte

Buitenruimte

Balkon
Niet aanwezig
Tuin
Aanwezig (50 m²)
Tuinbeschrijving
achtertuin
Dakterras
Niet aanwezig

Energie

Isolatie
Dubbele beglazing, Volledig geïsoleerd
Verwarming
Gedeeltelijke vloerverwarming, Warmtepomp, Zonnecollector
Energielabel
A+++

Bergruimte

Schuur/Berging
Aanwezig

Parkeergelegenheid

Aanwezig
Ja
Soort parkeergelegenheid
Openbaar
Meld een probleem met deze woning