- 64 m²
- 4 kamers
- 1941
Samenvatting
- Deze woning wordt sinds 8 oktober 2025 aangeboden door KH-Solutions Makelaars;
- De vrijstaande woning heeft een woonoppervlakte van 64 m² en beschikt over 4 kamers, waarvan 3 slaapkamers;
- De woning is gebouwd In 1941 en ligt in de buurt Wittevrouwenveld in Maastricht.
Beschrijving
Overdracht
- Vraagprijs
- € 298.000 k.k.
- Aangeboden sinds
- 08-10-2025
- Status
- Beschikbaar
- Beschikbaar
- In overleg
- Onderhoudsstaat
- Goed
Oppervlakte en inhoud
- Woonoppervlakte
- 64 m²
- Perceeloppervlakte
- 99 m²
- Inhoud
- 310 m³
Bouw
- Type woning
- Huis
- Soort woning
- Vrijstaande woning, Eengezinswoning
- Soort bouw
- Bestaande bouw
- Bouwjaar
- 1941
- Ligging
-
- Aan een rustige weg
- In het centrum
- In een woonwijk
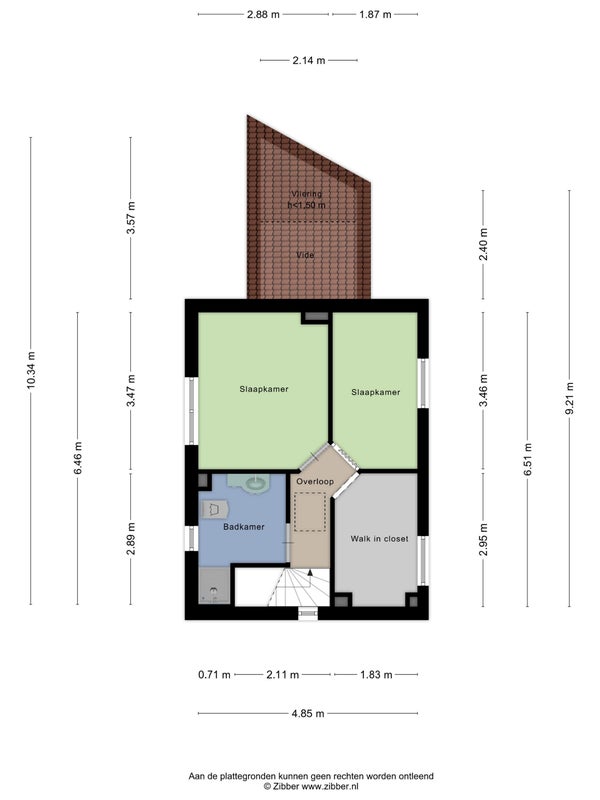
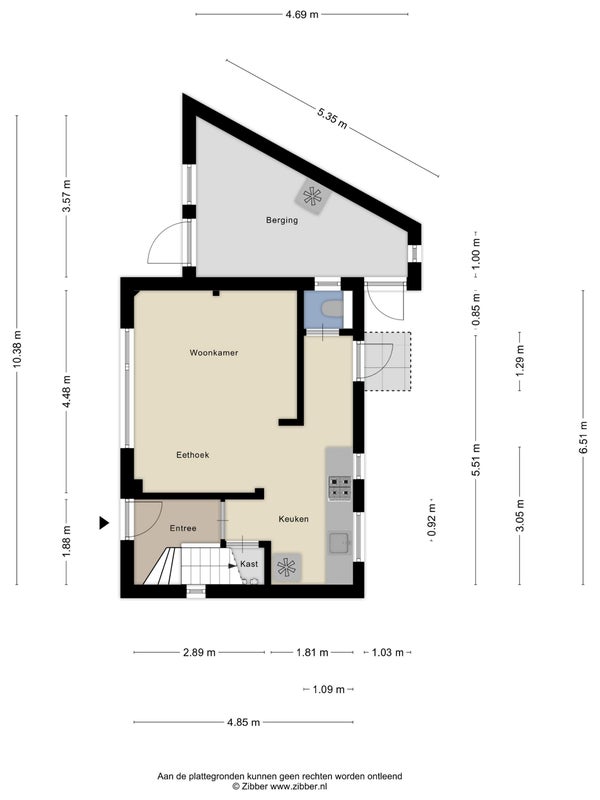
Indeling
- Aantal kamers
- 4
- Aantal slaapkamers
- 3
- Aantal badkamers
- 1
- Aantal woonlagen
- 3
- Voorzieningen
-
- Douche
- Bergruimte
Buitenruimte
- Balkon
- Niet aanwezig
- Tuin
- Aanwezig (gelegen op het zuidwesten)
- Tuinbeschrijving
- achtertuin
- Dakterras
- Niet aanwezig
Energie
- Verwarming
- CV-ketel
- Warm water
- CV-ketel
- Energielabel
- E
Bergruimte
- Schuur/Berging
- Aanwezig
- Omschrijving
- Aangebouwd steen
Parkeergelegenheid
- Aanwezig
- Ja
- Soort parkeergelegenheid
- Openbaar
Garage
- Aanwezig
- Nee