Contact met de makelaar

Deze woning is gevonden buiten ons eigen netwerk. Met de knop hieronder kom je direct bij de aanbieder terecht.

De Dintel 21

Bekijk kaart
2673 BC Naaldwijk (Woerdblok)
€ 795.000 k.k.
  • 139 m²
  • 5 kamers
  • 2004

Samenvatting

  • Deze woning wordt sinds 6 januari 2026 aangeboden door Noordam Makelaardij;
  • De geschakelde 2-onder-1-kapwoning heeft een woonoppervlakte van 139 m² en beschikt over 5 kamers, waarvan 4 slaapkamers;
  • De woning is gebouwd In 2004 en ligt in de buurt Woerdblok in Naaldwijk;
  • De woning beschikt onder andere over de volgende voorzieningen: Bad, Mechanische ventilatie, Rolluiken, Douche, Bergruimte, Toilet.

Beschrijving

Welkom bij deze moderne, sfeervolle geschakelde 2-onder-1-kapwoning! Dit herenhuis, uitgevoerd in de jaren '30 stijl, is gelegen in de populaire woonwijk Woerdblok en biedt veel ruimte, comfort en duurzaamheid. Deze energiezuinige woning is volledig klaar voor de toekomst! De woning ligt op een fijne locatie: op loopafstand van het gezellige centrum van Naaldwijk, scholen, kinderopvang en diverse sportvoorzieningen. Wij laten u graag de woning zien.

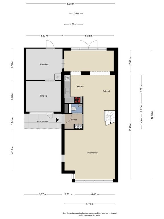
De oprit biedt de mogelijkheid voor het parkeren van drie auto’s. Ruime entree met meterkast, luxe toilet met wandtoilet en fontein (2021). De ruime woonkamer is voorzien van vloerverwarming (2021) en heeft aan de voorzijde een sfeervolle erker. De keuken (2005) ligt aan de achterzijde van de woning en is voorzien van diverse inbouwapparatuur (inductiekookplaat, afzuigkap, combi-oven, vaatwasser en een koel/vriescombinatie). De aanbouw is eveneens voorzien van vloerverwarming (2008) en is voor meerdere doeleinden te gebruiken. De openslaande deuren geven toegang tot de achtertuin die is gelegen op het noordwesten. De achtertuin is grotendeels bestraat, fraai afgewisseld met groenborders. De naastgelegen garage/berging van in totaal ca. 23 m2 bestaat uit 2 delen. Een berging en bijkeuken. De berging heeft een kanteldeur met loopdeur. De bijkeuken heeft een loopdeur naar de tuin.

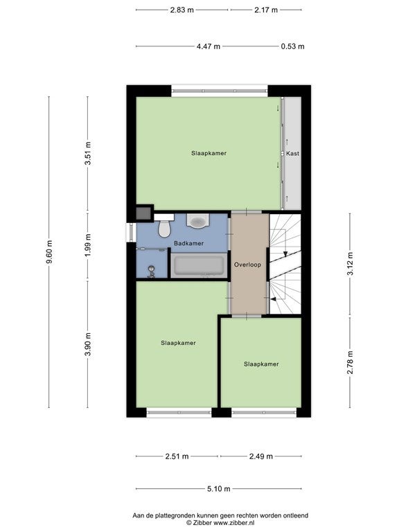
Op de eerste verdieping vindt u de overloop met toegang tot drie comfortabele slaapkamers en de badkamer. De badkamer is volledig betegeld en beschikt over een ligbad, inloopdouche, wastafelmeubel en wandtoilet. De grootste slaapkamer is gelegen over de gehele breedte aan de achterzijde van de woning en is voorzien van een schuifdeurkast. De andere twee slaapkamers zijn aan de voorzijde gesitueerd.

De tweede verdieping biedt een zee van ruimte.
Door het plaatsen van de dakkapel aan de achterzijde van de woning is hier een fijne slaapkamer gerealiseerd met een vaste kast. De dakkapel is voorzien van elektrische screens.
De voorzolder is voorzien van een dakraam voor voldoende lichtinval. Hier vindt u de opstelplaats voor de HR combikel (Nefit 2017), hybride warmtepomp (Daikin 2022), slimme mechanische ventilatie-unit en aansluiting voor wasmachine en droger. Achter schuifdeuren is veel bergruimte gecreëerd achter de knieschotten.

Bouwjaar: 2004; perceeloppervlakte: 224 m²; gebruiksoppervlak wonen: 139 m²; overige inpandige ruimte: 22,4 m²; gebouwgebonden buitenruimte: 5,6 m²; inhoud: 571,63 m³; externe bergruimte: 0 m².

  • De woning beschikt over Energielabel: A+;
  • De warmtepomp (2022) wordt nu hybride gebruikt. Hij kan ook zonder de cv-ketel volledig de woning (gasloos) verwarmen;
  • 16 zonnepanelen (6 op de garage en 10 op het dak van de woning) van 260 Wp (2014);
  • Meterkast met 11 groepen + 4 a.l.s. (2 fase + 2 x 3 fase);
  • Slimme mechanische ventilatie (2024).

Reageer op tijd op nieuw woningaanbod

Meer dan de helft van de reacties komt binnen 48 uur. Ontvang direct notificaties bij nieuw aanbod en reageer sneller met Pararius+.

Probeer Pararius+ 14 dagen € 0,01

Overdracht

Vraagprijs
€ 795.000 k.k.
Aangeboden sinds
06-01-2026
Status
Beschikbaar
Beschikbaar
In overleg
Onderhoudsstaat
Goed

Oppervlakte en inhoud

Woonoppervlakte
139 m²
Perceeloppervlakte
224 m²
Inhoud
571 m³

Bouw

Type woning
Huis
Soort woning
Geschakelde 2-onder-1-kapwoning, Eengezinswoning
Soort bouw
Bestaande bouw
Bouwjaar
2004

Indeling

Aantal kamers
5
Aantal slaapkamers
4
Aantal badkamers
1
Aantal woonlagen
3
Voorzieningen
  • Bad
  • Mechanische ventilatie
  • Rolluiken
  • Douche
  • Bergruimte
  • Toilet

Buitenruimte

Balkon
Niet aanwezig
Tuin
Aanwezig (64 m², gelegen op het noordwesten)
Tuinbeschrijving
achtertuin
Achterom aanwezig
Niet aanwezig
Dakterras
Niet aanwezig

Energie

Isolatie
Volledig geïsoleerd
Verwarming
CV-ketel, Warmtepomp, Zonnecollector
Warm water
CV-ketel
Cv-ketel
Nefit (Gas, uit 2017, Eigendom)
Energielabel
A+

Bergruimte

Schuur/Berging
Aanwezig

Parkeergelegenheid

Aanwezig
Ja
Soort parkeergelegenheid
Openbaar
Meld een probleem met deze woning