Contact met de makelaar

Deze woning is gevonden buiten ons eigen netwerk. Met de knop hieronder kom je direct bij de aanbieder terecht.

Galgeweg 72

Bekijk kaart
2671 MS Naaldwijk (Buitengebied 3 Naaldwijk)
€ 375.000 k.k.
  • 94 m²
  • 4 kamers
  • 1911

Samenvatting

  • Deze woning wordt sinds 5 januari 2026 aangeboden door Noordam Makelaardij;
  • De 2-onder-1-kapwoning heeft een woonoppervlakte van 94 m² en beschikt over 4 kamers, waarvan 3 slaapkamers;
  • De woning is gebouwd In 1911 en ligt in de buurt Buitengebied 3 Naaldwijk in Naaldwijk;
  • De woning beschikt onder andere over de volgende voorzieningen: Bad, Bergruimte, Toilet.

Beschrijving

In een fijne en rustige omgeving bevindt zich deze 2 onder 1 kap woning. Het interieur van de woning dient gemoderniseerd te worden, maar de woning heeft veel potentie. De woning is gelegen op een ruime kavel die aan de achterzijde grenst aan water. De achtertuin ligt ideaal op het zuidwesten.
Op korte afstand bevindt zich het gezellige centrum van Naaldwijk waar een grote diversiteit aan winkels, horecagelegenheden, supermarkten, diverse sportverenigingen, scholen en het openbaar vervoer te vinden is. Wij laten u graag de woning zien.

De entree van de woning is bereikbaar via de zijkant van de woning. Hal met meterkast (5 groepen en a.l.s.), woonkamer met trapopgang naar de 1e etage. De eenvoudige keuken is voorzien van een gaskookplaat, afzuigkap, gootsteen en opstelplaats voor de wasmachine. De openslaande deuren in de keuken geven toegang tot de zonnige achtertuin met stenen berging. In de keuken zit een ruime berging/voorraadkast met opstelplaats voor de CV ketel (Vaillant 2001). Via de keuken heeft u toegang tot de badkamer. De volledig betegelde badkamer is voorzien van een ligbad, toilet en wastafel.

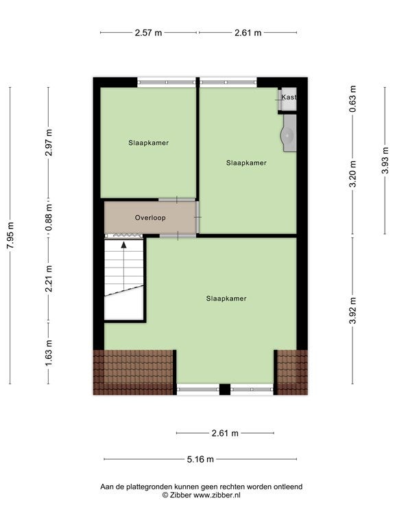
De overloop geeft toegang tot 3 slaapkamers. De grootste slaapkamer ligt aan de voorzijde van de woning en is voorzien van een dakkapel. De andere 2 slaapkamers liggen aan de achterzijde. 1 van de slaapkamers is voorzien van een vaste kast en een wastafelmeubel.

Bouwjaar: 1911; perceeloppervlakte: 237 m²; gebruiksoppervlak wonen: 94,0 m²; overige inpandige ruimte: 0 m²; gebouwgebonden buitenruimte: 0 m²; inhoud: 332,9 m³; externe bergruimte: 7,6 m².

  • De woning beschikt over Energielabel: E;
  • De achtertuin is ca. 22,4 m diep (incl. een stukje sloot) en ca. 7,1 breed;
  • De voortuin is kadastraal eigendom van de Gemeente Westland, doch is meer dan 20 jaar in gebruik;
  • In de koopovereenkomst wordt de ouderdomsclausule opgenomen.

Reageer op tijd op nieuw woningaanbod

Meer dan de helft van de reacties komt binnen 48 uur. Ontvang direct notificaties bij nieuw aanbod en reageer sneller met Pararius+.

Probeer Pararius+ 14 dagen € 0,01

Overdracht

Vraagprijs
€ 375.000 k.k.
Aangeboden sinds
05-01-2026
Status
Beschikbaar
Beschikbaar
In overleg
Onderhoudsstaat
Matig

Oppervlakte en inhoud

Woonoppervlakte
94 m²
Perceeloppervlakte
237 m²
Inhoud
332 m³

Bouw

Type woning
Huis
Soort woning
2-onder-1-kapwoning, Eengezinswoning
Soort bouw
Bestaande bouw
Bouwjaar
1911
Ligging
Buiten bebouwde kom

Indeling

Aantal kamers
4
Aantal slaapkamers
3
Aantal badkamers
1
Aantal woonlagen
2
Voorzieningen
  • Bad
  • Bergruimte
  • Toilet

Buitenruimte

Balkon
Niet aanwezig
Tuin
Aanwezig (149 m², gelegen op het zuidwesten)
Tuinbeschrijving
achtertuin
Achterom aanwezig
Aanwezig
Dakterras
Niet aanwezig

Energie

Verwarming
CV-ketel
Warm water
CV-ketel
Cv-ketel
Vaillant (Gas, uit 2001, Eigendom)
Energielabel
E

Bergruimte

Schuur/Berging
Aanwezig

Parkeergelegenheid

Aanwezig
Ja
Soort parkeergelegenheid
Openbaar
Meld een probleem met deze woning