Contact met de makelaar

Deze woning is gevonden buiten ons eigen netwerk. Met de knop hieronder kom je direct bij de aanbieder terecht.

Zwarteweg 92

Bekijk kaart
1412 GE Naarden (Ministerpark)
€ 550.000 k.k.
  • 120 m²
  • 6 kamers
  • 1972

Samenvatting

  • Deze woning wordt sinds 3 januari 2026 aangeboden door VTH Makelaardij;
  • De tussenwoning heeft een woonoppervlakte van 120 m² en beschikt over 6 kamers, waarvan 5 slaapkamers;
  • De woning is gebouwd In 1972 en ligt in de buurt Ministerpark in Naarden;
  • De woning beschikt onder andere over de volgende voorzieningen: Bad, Kabel TV, Open haard, Rookkanaal, Internetaansluiting, Douche, Toilet.

Beschrijving

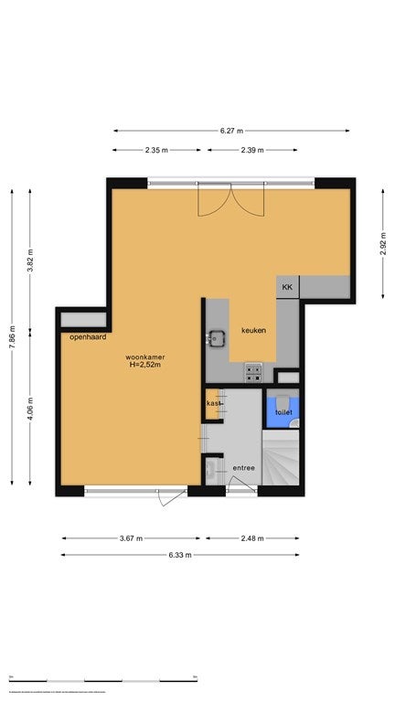
Gelegen op de rand van Naarden en Bussum in het gezellige Ministerpark een charmante middenwoning uit 1972 met een woonoppervlak van 120 m2 (nen2580) gelegen op een perceel van 128 m2. Deze woning heeft een speels gebouwde zit-/eetkamer met open haard en een open keuken. Via openslaande deuren vanuit de eetkamer toegang tot de achtertuin. De eerste verdieping heeft drie slaapkamers van goed formaat en een ruime badkamer. Op de zolderverdieping zijn, naast de overloop met de afgesloten stookruimte, nog twee slaapkamers. Eén van de grote voordelen van dit huis is de ligging. Het station is op loopafstand, de winkels om de hoek, lagere school 2 minuten lopen, sportvelden (tennis, voetbal en hockey) 3 minuten fietsen en het Goois Natuurreservaat Naardenmeer om de hoek. Dit alles maakt deze plek uniek. Deze woning is al wat langer door de huidige bewoner bewoond, is in de basis goed en verdient het om gemoderniseerd te worden. Wij hebben deze woning al door een erkend bureau bouwkundig laten keuren. Zekerheid voor alles!

De entree/hal met meterkast, trapkast en garderobekast en toiletruimte geeft toegang tot de speels gebouwde zitkamer met een open haard die naadloos overloopt in de eetkamer welke over de volle breedte van de woning strekt. Vanuit de eetkamer is er middels openslaande deuren toegang tot de achtergelegen tuin. De wanden zijn van structuurverf voorzien, het plafond is gestuct. De keuken in hoekopstelling heeft een open verbinding met de eetkamer, zo is er altijd contact met uw gasten mogelijk. Door het -ten dele- verwijderen van de tussenmuur is er relatief eenvoudig een ruime moderne woonkeuken te realiseren, zie ook de twee impressiefoto's.

De overloop van de eerste verdieping is L-vormig en geeft toegang tot drie, in grootte variërende slaapkamers, en de badkamer.
Aan de voorzijde bevindt een nagenoeg vierkante slaapkamer van ca 13m2, aan de achterzijde de huidige ouderslaapkamer van ca. 12 m2 voorzien van een brede raampartij en de derde slaapkamer van ca. 7,50m2. De badkamer aan de voorzijde heeft openslaande ramen, een ligbad, douchecabine, tweede vrijhangend toilet en een vaste wastafel met planchet en spiegel. De badkamer is geheel betegeld in neutrale kleurstelling.

Via een vaste trap is er toegang tot de voorzolder met een goed formaat slaapkamer en een tweede, kleinere, werkkamer. Middels het plaatsen van bijvoorbeeld een dakkapel is deze ruimte relatief simpel uit te breiden met bijvoorbeeld een badkamer of ruime(re) slaapkamer.

De achtertuin is gesitueerd op het noordwesten, deze tuin is geheel bestraat en omheind door een houten schutting met poort naar een achterom.
De voortuin is “groen” aangelegd en is met ca. 7,5 voldoende diep om uw privacy vanaf de openbare weg te waarborgen. Voor de deur is voldoende gratis parkeergelegenheid.

• Een fijne eengezinswoning, geweldige ligging in een gewilde omgeving, die het verdient om gemoderniseerd te worden;
• Ingemeten conform NEN 2580, totale gebruiksoppervlakte 120 m2 over 3 woonlagen;
• Speelse indeling, uitbreidingsmogelijkheden, en tuin met eigen achterom;
• Het energielabel is label C, geldig tot 20-5-2035;
• Verwarming en warm water d.m.v. HR combiketel uit 2007;
• Parkeren kan kosteloos en vergunningvrij voor de deur.

Ligging:
De woning ligt op een perceel van 128 m2 in de gewilde woonomgeving Ministerpark, pal aan de rand van Naarden en het Spiegel van Bussum. De ligging is perfect, het station is op loopafstand, de winkels om de hoek, lagere school, sportvelden (tennis, voetbal en hockey) en het Goois Natuurreservaat Naardermeer vrijwel om de hoek. Dit alles maakt deze plek uniek. De bereikbaarheid is prima. Binnen no time bent u met de auto op de A1, A6 of A27 en zijn steden als Amsterdam, Utrecht, en Amersfoort binnen een straal van 25 km bereikbaar. Parkeren kan kosteloos aan de openbare weg.

Reageer op tijd op nieuw woningaanbod

Meer dan de helft van de reacties komt binnen 48 uur. Ontvang direct notificaties bij nieuw aanbod en reageer sneller met Pararius+.

Probeer Pararius+ 14 dagen € 0,01

Overdracht

Vraagprijs
€ 550.000 k.k.
Aangeboden sinds
03-01-2026
Status
Beschikbaar
Beschikbaar
In overleg
Onderhoudsstaat
Goed

Oppervlakte en inhoud

Woonoppervlakte
120 m²
Perceeloppervlakte
138 m²
Inhoud
418 m³

Bouw

Type woning
Huis
Soort woning
Tussenwoning (rijtjeshuis), Eengezinswoning
Soort bouw
Bestaande bouw
Bouwjaar
1972
Ligging
  • Aan een rustige weg
  • In een woonwijk
  • Nabij het openbaar vervoer
  • Nabij een school
  • Nabij een winkelcentrum

Indeling

Aantal kamers
6
Aantal slaapkamers
5
Aantal badkamers
1
Aantal woonlagen
3
Voorzieningen
  • Bad
  • Kabel TV
  • Open haard
  • Rookkanaal
  • Internetaansluiting
  • Douche
  • Toilet

Buitenruimte

Balkon
Niet aanwezig
Tuin
Aanwezig (30 m², gelegen op het noorden)
Tuinbeschrijving
achtertuin
Dakterras
Niet aanwezig

Energie

Isolatie
Spouwmuurisolatie, Dakisolatie
Verwarming
CV-ketel, Open haard
Warm water
CV-ketel
Cv-ketel
Bosch (Gas, uit 2007, Eigendom)
Energielabel
C

Parkeergelegenheid

Aanwezig
Ja
Soort parkeergelegenheid
Openbaar
Meld een probleem met deze woning