Contact met de makelaar

Deze woning is gevonden buiten ons eigen netwerk. Met de knop hieronder kom je direct bij de aanbieder terecht.

Verkocht onder voorbehoud

Colorado 238

Bekijk kaart
2911 JA Nieuwerkerk aan den IJssel (Esse Zoom Laag)
€ 665.000 k.k.
  • 137 m²
  • 5 kamers
  • 2023

Samenvatting

  • Deze woning wordt sinds 6 weken aangeboden door Kok Makelaars;
  • De tussenwoning heeft een woonoppervlakte van 137 m² en beschikt over 5 kamers, waarvan 4 slaapkamers;
  • De woning is gebouwd In 2023 en ligt in de buurt Esse Zoom Laag in Nieuwerkerk aan den IJssel;
  • De woning beschikt onder andere over de volgende voorzieningen: Mechanische ventilatie, Douche, Dakraam, Schuifdeuren, Toilet.

Beschrijving

Zo goed als nieuw met hoogwaardige afwerking en A+++ energielabel.

De foto’s van deze instapklare en uitgebouwde EENGEZINSWONING zeggen eigenlijk alles, bel voor een bezichtiging en zie met je eigen ogen: het is helemaal af!

Zie onderstaande hoofdkenmerken met nadere omschrijving en de uitgebreide fotoreportage. Zelf sfeer proeven in de woning? Bel met Kok Makelaars voor een bezichtiging!

Hoofdkenmerken:

  • Uitgebouwde woonkamer met grote schuifpui
  • Luxe, complete en moderne keuken
  • Chique badkamer met inloopdouche
  • 4 ruime slaapkamers, hoofdslaapkamer met walk-in closet
  • Zonnige achtertuin op het zuidoosten
  • Vloerverwarming- en koeling via bodemwarmtepomp
  • 9 PV zonnepanelen
  • HR+++ isolatieglas
  • Energielabel A+++
  • Woonoppervlakte ca. 137 m²
  • Perceeloppervlakte ca. 115 m²
  • Eigen grond

Gelegen in de jonge wijk Esse Zoom binnen Nieuwerkerk aan den IJssel. Deze wijk ademt groen, is omgeven door water en voelt ruimtelijk aan door haar breed opgezette lanen. In Esse Zoom woon je ruim en kindvriendelijk op een locatie waar alle voorzieningen vlakbij zijn, denk aan treinstation Nieuwerkerk aan den IJssel, winkelcentrum Reigerhof, scholen, kinderdagverblijven, sportfaciliteiten, recreatiegebied Park Hitland, uitvalswegen, etc.

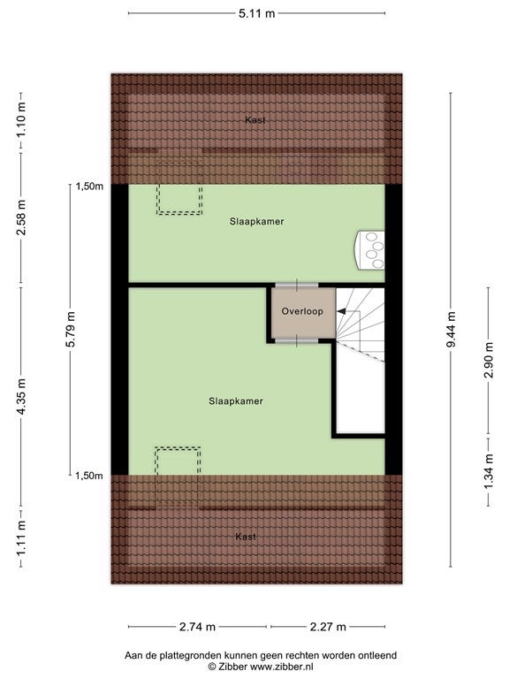
INDELING (voor de afmetingen, zie de plattegrondtekeningen)

Begane grond:
De begane grond is voorzien van een stijlvolle pvc-visgraatvloer met vloerverwarming en -koeling.

Entree/hal, met toegang tot de woonkamer, toilet, kast met de opstelling van de warmtepomp, meterkast en de trapopgang naar de eerste verdieping.

Woonkamer, een royale en uitgebouwde kamer met veel daglicht! Vanuit de woonkamer is er toegang tot de luxe open keuken, een vaste (trap)kast en de achtertuin, middels een grote aluminium schuifpui.

Keuken, een waanzinnig mooie keuken, gelegen aan de voorzijde met leuk uitzicht op de straat. De keuken is voorzien van een keukenblok in dubbelrechte opstelling, met een inductiekookplaat en geïntegreerde afzuiging (BORA), stoomoven, combimagnetron, Quooker voor kokend, warm, koud, gekoeld en bruisend water, een grote koelkast met vriesvak, separate vriezer (3 laden) en meer dan voldoende bergruimte door de brede laden en vele kasten.

Toilet, modern en geheel betegeld, voorzien van een hangend closet en een waskom met onderkastje.

Eerste verdieping:
De eerste verdieping is voorzien van pvc-vloerafwerking met vloerverwarming en -koeling.

Overloop, voorzien van een maatwerk kast, biedt toegang tot 2 slaapkamers, badkamer en trapopgang naar de tweede verdieping.

Slaapkamer 1, een royale slaapkamer gelegen aan de achterzijde, voorzien van een prachtige walk-in closet met maatwerk kasten en een grote spiegel.
Slaapkamer 2, eveneens een ruime kamer, gelegen aan de voorzijde.

Badkamer, een moderne en geheel betegelde ruimte, voorzien van een inloopdouche met thermostaatkraan, rainshower en handdouche, 2 waskommen met onderladen en kolomkast, een tweede toilet (hangend closet), spiegel met verlichting en verwarming, elektrische radiator en een te openen raam.

Tweede verdieping:
De tweede verdieping is ook voorzien van pvc-vloerafwerking met vloerverwarming en -koeling.

Slaapkamer 3, een royale kamer gelegen aan de voorzijde, voorzien van een Velux dakraam en opbergruimte achter de knieschotten.
Slaapkamer 4, gelegen aan de achterzijde, met een wasmachine- en drogeraansluiting, opstelling van de warmte terugwin installatie en de omvormer van de PV zonnepanelen.

Achtertuin, gelegen op het zuidoosten, voorzien van sierbestrating, kunstgras en groen. Verder is de tuin uitgerust met elektra, verlichting, een buitenkraan en een achterom. De tuin bevat een houten berging, welke eveneens is voorzien van elektriciteit en verlichting.

Bijzonderheden:

  • Verwarming en warm water via bodemwarmtepomp met boilervat (eigendom)
  • Vloerverwarming- en koeling
  • Warmte-terug-win installatie
  • Houten kozijnen met HR+++ isolatieglas
  • 9 PV zonnepanelen (eigendom)
  • Energielabel A+++
  • Bouwjaar ca. 2023/2024

Oplevering: in overleg met verkoper, vanaf maart 2026.

Bij het samenstellen van deze verkoopinformatie en (plattegrond)tekeningen zijn we nauwkeurig te werk gegaan, aan onjuistheden en/of onvolkomenheden kunt u echter geen rechten ontlenen. Daarnaast aanvaardt de makelaar of zijn opdrachtgever geen aansprakelijkheid voor de in de verkoopinformatie en (plattegrond)tekeningen verstrekte informatie.

Overdracht

Vraagprijs
€ 665.000 k.k.
Aangeboden sinds
17-12-2025
Status
Verkocht onder voorbehoud
Beschikbaar
In overleg
Bijzonderheden
Seniorenwoning
Onderhoudsstaat
Goed

Oppervlakte en inhoud

Woonoppervlakte
137 m²
Perceeloppervlakte
115 m²
Inhoud
487 m³

Bouw

Type woning
Huis
Soort woning
Tussenwoning (rijtjeshuis), Eengezinswoning
Soort bouw
Bestaande bouw
Bouwjaar
2023
Ligging
  • Aan een rustige weg
  • In een woonwijk
  • Nabij het openbaar vervoer
  • Nabij een school

Indeling

Aantal kamers
5
Aantal slaapkamers
4
Aantal badkamers
1
Aantal woonlagen
3
Voorzieningen
  • Mechanische ventilatie
  • Douche
  • Dakraam
  • Schuifdeuren
  • Toilet

Buitenruimte

Balkon
Niet aanwezig
Tuin
Aanwezig (46 m², gelegen op het zuidoosten)
Tuinbeschrijving
achtertuin
Achterom
Aanwezig
Dakterras
Niet aanwezig

Energie

Isolatie
Dubbele beglazing, Vloerisolatie, Volledig geïsoleerd, Muurisolatie
Verwarming
Volledige vloerverwarming, Aardwarmte, Warmtepomp, Warmte terugwininstallatie
Warm water
Elektrische boiler
Energielabel
A+++

Bergruimte

Schuur/Berging
Aanwezig

Parkeergelegenheid

Aanwezig
Ja
Soort parkeergelegenheid
Openbaar
Meld een probleem met deze woning