- 112 m²
- 5 kamers
- 1959
Samenvatting
- Deze woning wordt sinds 31 oktober 2025 aangeboden door Hans Janssen Makelaars;
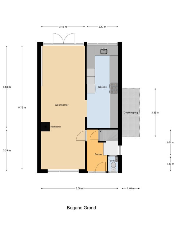
- De tussenwoning heeft een woonoppervlakte van 112 m² en beschikt over 5 kamers, waarvan 3 slaapkamers;
- De woning is gebouwd In 1959 en ligt in de buurt Grootstal in Nijmegen.
Beschrijving
Meer woninginformatie bekijken?
Log in of registreer gratis.
Overdracht
- Vraagprijs
- € 489.000 k.k.
- Aangeboden sinds
- 31-10-2025
- Status
- Beschikbaar
- Beschikbaar
- In overleg
Oppervlakte en inhoud
- Woonoppervlakte
- 112 m²
- Perceeloppervlakte
- 245 m²
Bouw
- Type woning
- Huis
- Soort woning
- Tussenwoning (rijtjeshuis), Eengezinswoning
- Soort bouw
- Bestaande bouw
- Bouwjaar
- 1959
Indeling
- Aantal kamers
- 5
- Aantal slaapkamers
- 3
- Aantal badkamers
- 1
Buitenruimte
- Dakterras
- Niet aanwezig
Energie
- Energielabel
- B
 
                 
                 
                 
                 
                 
                 
                 
                 
                 
                 
                 
                 
                 
                 
                 
                 
                 
                 
                 
                 
                 
                 
                 
                 
                 
                 
                 
                 
                 
                 
                 
                 
                 
                 
                 
                 
                 
                 
                 
                 
                 
                 
                 
                