Contact met de makelaar

Deze woning is gevonden buiten ons eigen netwerk. Met de knop hieronder kom je direct bij de aanbieder terecht.

Verkocht onder voorbehoud

Brittenhuis 64

Bekijk kaart
2211 VZ Noordwijkerhout (Zeeburg)
€ 439.000 k.k.
  • 100 m²
  • 5 kamers
  • 1985

Samenvatting

  • Deze woning wordt sinds 6 weken aangeboden door Laros Makelaardij;
  • De tussenwoning heeft een woonoppervlakte van 100 m² en beschikt over 5 kamers, waarvan 4 slaapkamers;
  • De woning is gebouwd In 1985 en ligt in de buurt Zeeburg in Noordwijkerhout;
  • De woning beschikt onder andere over de volgende voorzieningen: Kabel TV, Glasvezelaansluiting, Mechanische ventilatie, Buitenzonwering, Toilet.

Beschrijving

Overdracht

Vraagprijs
€ 439.000 k.k.
Aangeboden sinds
07-10-2025
Status
Verkocht onder voorbehoud
Beschikbaar
In overleg
Onderhoudsstaat
Goed

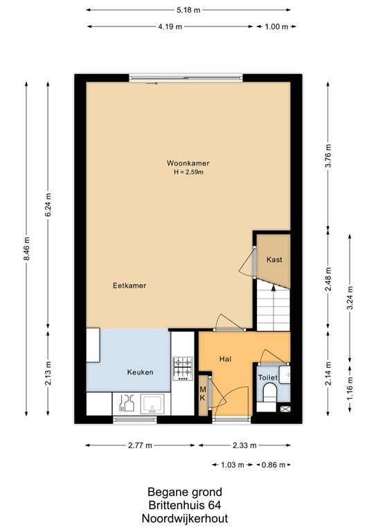
Oppervlakte en inhoud

Woonoppervlakte
100 m²
Perceeloppervlakte
122 m²
Inhoud
348 m³

Bouw

Type woning
Huis
Soort woning
Tussenwoning (rijtjeshuis), Eengezinswoning
Soort bouw
Bestaande bouw
Bouwjaar
1985
Ligging
  • Aan een rustige weg
  • In een woonwijk
  • Nabij het openbaar vervoer

Indeling

Aantal kamers
5
Aantal slaapkamers
4
Aantal badkamers
1
Aantal woonlagen
3
Voorzieningen
  • Kabel TV
  • Glasvezelaansluiting
  • Mechanische ventilatie
  • Buitenzonwering
  • Toilet

Buitenruimte

Balkon
Niet aanwezig
Tuin
Aanwezig (50 m², gelegen op het zuidoosten)
Tuinbeschrijving
besloten tuin
Dakterras
Niet aanwezig

Energie

Isolatie
Dubbele beglazing, Dakisolatie, Muurisolatie
Verwarming
CV-ketel, Gedeeltelijke vloerverwarming
Warm water
CV-ketel
Cv-ketel
Intergas (Gas, uit 2021, Eigendom)
Energielabel
B

Bergruimte

Schuur/Berging
Aanwezig

Parkeergelegenheid

Aanwezig
Ja
Soort parkeergelegenheid
Openbaar
Meld een probleem met deze woning
Contact met de makelaar Bel