- 87 m²
- 3 kamers
- 1965
Samenvatting
- Deze woning wordt sinds 2 oktober 2025 aangeboden door Greveling Makelaardij & Taxaties;
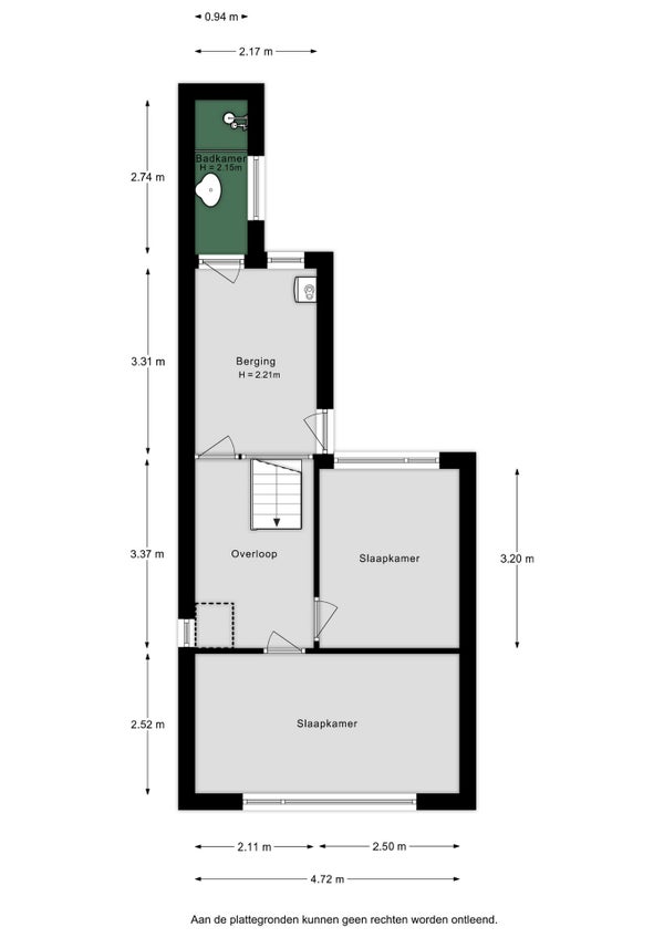
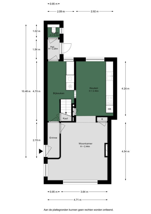
- De tussenwoning heeft een woonoppervlakte van 87 m² en beschikt over 3 kamers, waarvan 2 slaapkamers;
- De woning is gebouwd In 1965 en ligt in de buurt Park Rhoon in Rhoon;
- De woning beschikt onder andere over de volgende voorzieningen: Kabel TV, Douche, Bergruimte, Toilet.
Beschrijving
Overdracht
- Vraagprijs
- € 339.000 k.k.
- Aangeboden sinds
- 02-10-2025
- Status
- Beschikbaar
- Beschikbaar
- In overleg
- Onderhoudsstaat
- Redelijk
Oppervlakte en inhoud
- Woonoppervlakte
- 87 m²
- Perceeloppervlakte
- 135 m²
- Inhoud
- 329 m³
Bouw
- Type woning
- Huis
- Soort woning
- Tussenwoning (rijtjeshuis), Eengezinswoning
- Soort bouw
- Bestaande bouw
- Bouwjaar
- 1965
Indeling
- Aantal kamers
- 3
- Aantal slaapkamers
- 2
- Aantal badkamers
- 1
- Aantal woonlagen
- 3
- Voorzieningen
-
- Kabel TV
- Douche
- Bergruimte
- Toilet
Buitenruimte
- Balkon
- Niet aanwezig
- Tuin
- Aanwezig (147 m², gelegen op het noorden)
- Tuinbeschrijving
- achtertuin, voortuin
- Dakterras
- Niet aanwezig
Energie
- Verwarming
- CV-ketel
- Warm water
- CV-ketel
- Energielabel
- D
Bergruimte
- Schuur/Berging
- Aanwezig
- Omschrijving
- Vrijstaand hout
Parkeergelegenheid
- Aanwezig
- Ja
- Soort parkeergelegenheid
- Openbaar
Garage
- Aanwezig
- Nee