Contact met de makelaar

Deze woning is gevonden buiten ons eigen netwerk. Met de knop hieronder kom je direct bij de aanbieder terecht.

Nieuw

Albastdijk

Bekijk kaart
4706 AK Roosendaal (Kortendijk A)
€ 325.000 k.k.
  • 91 m²
  • 3 kamers
  • 1975

Samenvatting

  • Deze woning wordt sinds 20 januari 2026 aangeboden door Wijk-Regio Makelaardij B.V.;
  • De tussenwoning heeft een woonoppervlakte van 91 m² en beschikt over 3 kamers, waarvan 2 slaapkamers;
  • De woning is gebouwd In 1975 en ligt in de buurt Kortendijk A in Roosendaal.

Beschrijving

Deze royale tussenwoning met vrijstaande stenen garage, gebouwd in 1975, ligt in de populaire en groene woonwijk Kortendijk op een perceel van 162 m². De woning is goed bereikbaar en dichtbij voorzieningen zoals Landgoed Visdonk en scholen.

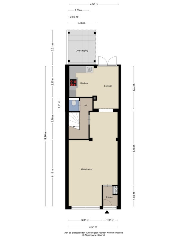
Bij binnenkomst in de woning komt u in de hal met toegang tot de ruime woonkamer die uitkijkt over de straat en aanleunend aan de keuken is. De halfopen keuken is van diverse inbouwapparatuur voorzien en geeft toegang tot de onderhoudsvriendelijke tuin. Op de eerste verdieping zijn twee inmiddels volwaardige slaapkamers en een geheel betegelde badkamer met douche en wastafelmeubel. Via een vlizotrap is de zolder bereikbaar, geschikt voor opslag. De garage met betonvloer en elektra biedt extra mogelijkheden. Deze woning heeft een woonoppervlakte van 91 m² en energieklasse B.

Overdracht

Vraagprijs
€ 325.000 k.k.
Aangeboden sinds
20-01-2026
Status
Beschikbaar
Beschikbaar
Per direct

Oppervlakte en inhoud

Woonoppervlakte
91 m²
Perceeloppervlakte
162 m²

Bouw

Type woning
Huis
Soort woning
Tussenwoning (rijtjeshuis), Eengezinswoning
Soort bouw
Bestaande bouw
Bouwjaar
1975

Indeling

Aantal kamers
3
Aantal slaapkamers
2
Aantal badkamers
1

Buitenruimte

Dakterras
Niet aanwezig

Energie

Energielabel
B
Meld een probleem met deze woning