Contact met de makelaar

Deze woning is gevonden buiten ons eigen netwerk. Met de knop hieronder kom je direct bij de aanbieder terecht.

Chromietdijk 87

Bekijk kaart
4706 EV Roosendaal (Kortendijk C)
€ 350.000 k.k.
  • 122 m²
  • 4 kamers
  • 1977

Samenvatting

  • Deze woning wordt sinds 6 weken aangeboden door Rademakers Makelaardij;
  • De eindwoning heeft een woonoppervlakte van 122 m² en beschikt over 4 kamers, waarvan 3 slaapkamers;
  • De woning is gebouwd In 1977 en ligt in de buurt Kortendijk C in Roosendaal;
  • De woning beschikt onder andere over de volgende voorzieningen: Bad, Kabel TV, Glasvezelaansluiting, Rookkanaal, Dakraam, Toilet.

Beschrijving

Deze ruime eindwoning beschikt over 3 ruime slaapkamers (4 mogelijk), een hele ruime woonkamer, moderne badkamer en ligt in een erg groene wijk. De wijk is ideaal voor kinderen om in op te groeien en te spelen, autoluw en groen.

Op loopafstand vind je bushaltes, een winkelcentrum, meerdere scholen en het Burgemeester Godwaldtpark. Met de fiets sta je binnen 8 minuten in het centrum van Roosendaal en in 10 minuten bij het treinstation.

Bijzonderheden:

  • 122 m2 woonoppervlakte en 12 m2 overige inpandige ruimte
  • vloerverwarming op de begane grond en grotendeels voorzien van HR++ glas
  • 3 ruime slaapkamers, 4 slaapkamers is mogelijk
  • erg ruime woonkamer met houtkachel

Indeling begane grond:
Entree:
De hal biedt toegang tot de woonkamer, de meterkast en het toilet.

Woonkamer:
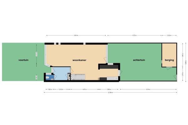
De hele ruime woonkamer geniet val veel lichtinval door de grote ramen en is voorzien van een houtkachel. De woonkamer heeft een oppervlakte van ca. 43 m2. biedt toegang tot de keuken en de achtertuin en biedt plaats aan de trapopgang naar de eerste verdieping. De woonkamer is voorzien van vloerverwarming.

Keuken:
De keuken is voorzien van een 2 keukenblokken in een rechte opstelling welke voorzien zijn van een 5 pits gas kookplaat, een afzuigkap, een rvs spoelbak en een koelkast met een groot vriesvak. De keuken biedt toegang tot de achtertuin.

Indeling eerste verdieping:
Overloop:
De overloop geeft toegang tot 2 slaapkamers, de badkamer en de trapopgang naar de tweede verdieping.

Slaapkamer 1: deze slaapkamer bevindt zich aan de achterzijde van de woning en heeft een oppervlakte van ca. 24 m2. Door deze slaapkamers te splitsen en een deur te maken naar de overloop zijn twee slaapkamers te creëren van 9 en 15 m2.

Slaapkamer 2: deze slaapkamer bevindt zich aan de voorzijde van de woning, heeft een oppervlakte van ca. 10 m2 en biedt toegang tot het balkon.

Balkon:
Dit heerlijk ruime balkon is ideaal om in de ochtendzon van een bakje koffie te genieten.

Badkamer:
De gemoderniseerde badkamer is voorzien van een ligbad, een wastafelmeubel en een toilet.

Indeling tweede verdieping:
Voorzolder:
De voorzolder biedt heel veel bergruimte, toegang tot slaapkamer 3 en dient als opstelplaats van de cv ketel (Intergas uit 2024) en de wasmachine. De voorzolder is niet tot de vierkante meters woonoppervlakte gerekend maar tot de overige inpandige ruimte. Dit ivm het ontbreken van een dakraam.

Slaapkamer 4:
Deze hele ruime slaapkamer is voorzien van een groot dakraam en biedt heel veel mogelijkheden.

Tuinen:
De achtertuin is op het westen gelegen, is deels bestraat, deels voorzien van gras en heeft een oppervlakte van ca. 52 m2. Achterin de tuin staat de vrijstaande berging met een oppervlakte van ca. 9 m2.
De voortuin is op het oosten gelegen en heeft een oppervlakte van ca. 44 m2.

Deze verkoopdocumentatie is vrijblijvend, informatief en wijzigingen zijn voorbehouden. Hieraan kunnen geen rechten worden ontleend en zij dient slechts te worden gezien als een uitnodiging tot het doen van een bod of om in onderhandeling te treden. De Meetinstructie is gebaseerd op de NEN2580. De Meetinstructie is bedoeld om een meer eenduidige manier van meten toe te passen voor het geven van een indicatie van de gebruiksoppervlakte. De Meetinstructie sluit verschillen in meetuitkomsten niet volledig uit, door bijvoorbeeld interpretatieverschillen, afrondingen of beperkingen bij het uitvoeren van de meting.

Overdracht

Vraagprijs
€ 350.000 k.k.
Aangeboden sinds
14-11-2025
Status
Beschikbaar
Beschikbaar
In overleg
Onderhoudsstaat
Goed

Oppervlakte en inhoud

Woonoppervlakte
122 m²
Perceeloppervlakte
181 m²
Inhoud
480 m³

Bouw

Type woning
Huis
Soort woning
Eindwoning, Eengezinswoning
Soort bouw
Bestaande bouw
Bouwjaar
1977
Ligging
In een woonwijk

Indeling

Aantal kamers
4
Aantal slaapkamers
3
Aantal badkamers
1
Aantal woonlagen
3
Voorzieningen
  • Bad
  • Kabel TV
  • Glasvezelaansluiting
  • Rookkanaal
  • Dakraam
  • Toilet

Buitenruimte

Balkon
Niet aanwezig
Tuin
Aanwezig (52 m², gelegen op het westen)
Tuinbeschrijving
achtertuin
Dakterras
Niet aanwezig

Energie

Isolatie
Spouwmuurisolatie, Dubbele beglazing, Dakisolatie, Muurisolatie
Verwarming
CV-ketel, Gedeeltelijke vloerverwarming, Houtkachel
Warm water
CV-ketel
Cv-ketel
Intergas (Gas, uit 2024, Eigendom)
Energielabel
C

Bergruimte

Schuur/Berging
Aanwezig

Parkeergelegenheid

Aanwezig
Ja
Soort parkeergelegenheid
Openbaar
Meld een probleem met deze woning