Contact met de makelaar

Deze woning is gevonden buiten ons eigen netwerk. Met de knop hieronder kom je direct bij de aanbieder terecht.

Nieuw

Johanna Dekhuijzenstraat

Bekijk kaart
3066 GB Rotterdam (Prinsenland)
€ 399.500 k.k.
  • 87 m²
  • 4 kamers
  • 1992

Samenvatting

  • Deze woning wordt sinds 19 januari 2026 aangeboden door Schildtvoorde NVM Makelaardij;
  • De tussenwoning heeft een woonoppervlakte van 87 m² en beschikt over 4 kamers, waarvan 3 slaapkamers;
  • De woning is gebouwd In 1992 en ligt in de buurt Prinsenland in Rotterdam.

Beschrijving

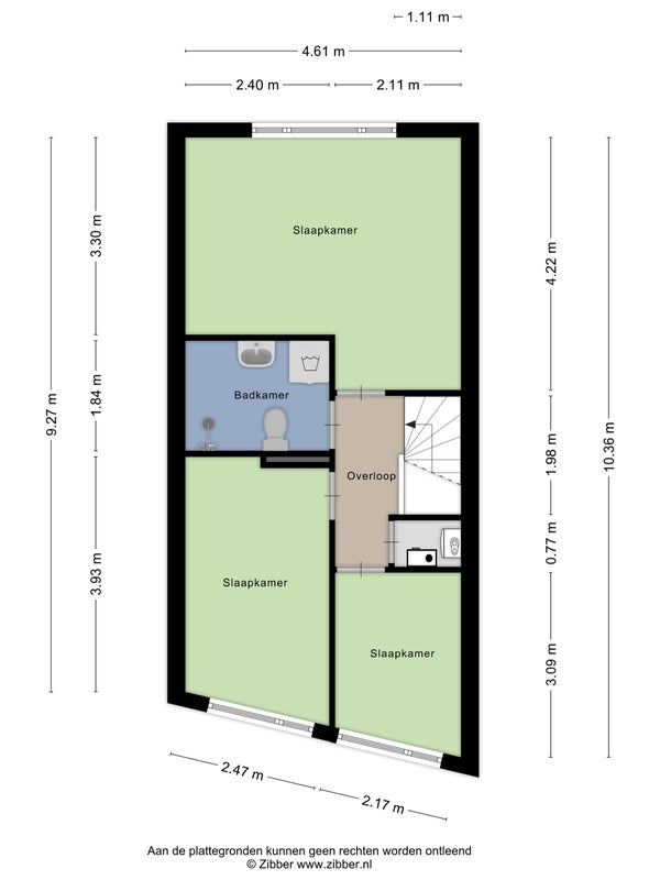
Geniet van rust en ruimte in deze unieke eengezinswoning met een zonnige tuin op het zuidoosten in het geliefde Prinsenland. Bij binnenkomst komt u in een ruime hal die toegang geeft tot meerdere vertrekken, waaronder een ruime inpandige bergruimte en een tuingerichte woonkamer met trapkast en schuifpui naar de tuin. De keuken heeft een unieke rechte opstelling met diverse losse apparatuur. De betegelde achtertuin beschikt over een achterom en een pergola, ideaal voor ontspanning. Op de eerste verdieping bevinden zich drie slaapkamers en een badkamer met inloopdouche. De woning ligt in een rustige straat met voorzieningen in de buurt, perfect voor gezinnen en stellen. Bouwjaar: 1992, woonoppervlakte ca. 87m², energielabel C.

Overdracht

Vraagprijs
€ 399.500 k.k.
Aangeboden sinds
19-01-2026
Status
Beschikbaar
Beschikbaar
Per direct

Oppervlakte en inhoud

Woonoppervlakte
87 m²
Perceeloppervlakte
108 m²

Bouw

Type woning
Huis
Soort woning
Tussenwoning (rijtjeshuis), Eengezinswoning
Soort bouw
Bestaande bouw
Bouwjaar
1992

Indeling

Aantal kamers
4
Aantal slaapkamers
3
Aantal badkamers
1

Buitenruimte

Dakterras
Niet aanwezig

Energie

Energielabel
C
Meld een probleem met deze woning