Contact met de makelaar

Deze woning is gevonden buiten ons eigen netwerk. Met de knop hieronder kom je direct bij de aanbieder terecht.

Johanna Dekhuijzenstraat 14

Bekijk kaart
3066 GB Rotterdam (Prinsenland)
€ 399.500 k.k.
  • 87 m²
  • 4 kamers
  • 1992

Samenvatting

  • Deze woning wordt sinds 6 weken aangeboden door Schildtvoorde;
  • De tussenwoning heeft een woonoppervlakte van 87 m² en beschikt over 4 kamers, waarvan 3 slaapkamers;
  • De woning is gebouwd In 1992 en ligt in de buurt Prinsenland in Rotterdam;
  • De woning beschikt onder andere over de volgende voorzieningen: Glasvezelaansluiting, Mechanische ventilatie, Douche, Schuifdeuren, Bergruimte, Toilet.

Beschrijving

Geniet van rust en ruimte in deze unieke eengezinswoning met een zonnige tuin op het zuidoosten, gelegen in het geliefde Prinsenland.

Deze unieke eengezinswoning is vrij gelegen aan de voorzijde en biedt een heerlijke combinatie van ruimte, comfort en praktische indeling. Bij binnenkomst treft u een ruime entree met meterkast die toegang geeft tot de verschillende vertrekken. Vanuit de hal is zowel de inpandige bergruimte bereikbaar, die ook van de straatkant toegankelijk is, als de tuingerichte woonkamer. De woonkamer beschikt over een trapkast en via een schuifpui stapt u zo de zonnige achtertuin op. De keuken is bijzonder van opzet met een rechte opstelling en diverse losse apparatuur. De achtertuin, gelegen op het zuidoosten, is geheel betegeld en biedt naast een achterom een prachtige pergola met groen, ideaal om te ontspannen of te genieten van buitenleven. Op de eerste verdieping leidt een overloop u naar de slaapkamers en de badkamer. De woning beschikt over drie slaapkamers: één aan de achterzijde en twee aan de voorzijde. Verder beschikt deze verdieping over bergruimte met de CV-opstelling en de ruime badkamer.

De woning is gelegen in een rustige en kindvriendelijke straat in de geliefde wijk Prinsenland in Rotterdam. De buurt is overzichtelijk en groen, met een verzorgde uitstraling en veel vergelijkbare gezinswoningen, wat direct dat vertrouwde buurtgevoel geeft. In de nabije omgeving vindt u alle voorzieningen die het dagelijks leven makkelijk en comfortabel maken. Winkels, scholen, sportfaciliteiten en openbaar vervoer bevinden zich op korte afstand en ook de bereikbaarheid richting het centrum van Rotterdam en de omliggende uitvalswegen is uitstekend. Zo woont u heerlijk rustig, maar heeft u alles wat u nodig heeft toch binnen handbereik. Deze locatie is ideaal voor gezinnen of stellen die graag wonen in een prettig woongebied, weg van de hectiek van de binnenstad, maar met alle gemakken van de stad dicht bij huis.

Interesse?
Wij nodigen u graag uit voor een bezichtiging van de woning!

De indeling van de woning is als volgt:

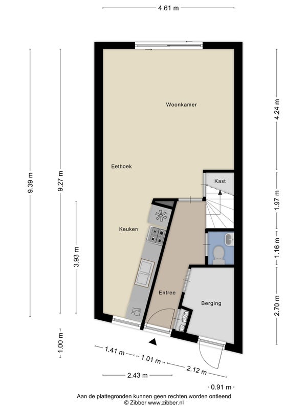
Begane grond:

  • Entree/hal met meterkast en toegang tot de vertrekken;
  • De inpandige bergruimte is bereikbaar vanuit de hal en vanuit de straatkant;
  • De tuingerichte woonkamer is voorzien van een trapkast en biedt middels de schuifpui toegang tot de achtertuin;
  • De keuken met een unieke indeling heeft een keukenblok in rechte opstelling en diverse losse apparatuur, waarvan de afzuigkap zal achterblijven.

Buiten:

  • Vanuit de woonkamer bereikt u de achtertuin welke gelegen is op het zuidoosten. De tuin is geheel betegeld, voorzien van een achterom en mooie pergola met groen.

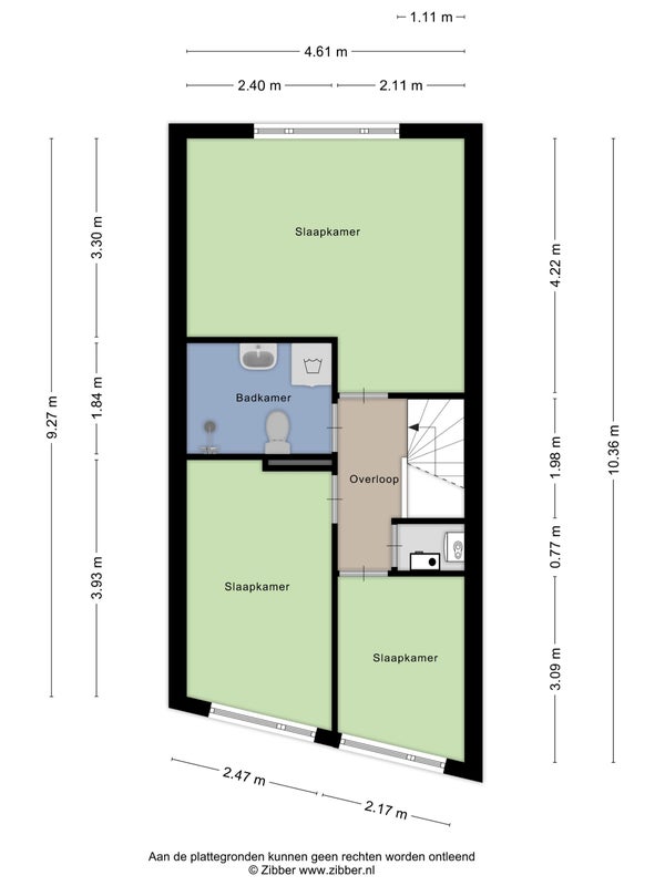
Eerste verdieping:

  • Overloop met toegang tot de vertrekken;
  • Bergruimte met CV-opstelling;
  • Slaapkamer 1 is gelegen aan de achterzijde van de woning;
  • Slaapkamer 2 en 3 zijn beide gelegen aan de voorzijde van de woning;
  • De badkamer is voorzien van een inloopdouche, wastafel, toilet en wasmachineaansluiting.

Bijzonderheden:

  • Bouwjaar 1992;
  • Woonoppervlakte ca. 87m²;
  • Inhoud ca. 321m²;
  • Energielabel C;
  • Voorzien van een laminaat vloer;
  • Voorzien van muurisolatie;
  • Voorzien van houten kozijnen, aluminium schuifpui en dubbele beglazing;
  • Schilderwerk gedaan in 2024;
  • Woning gelegen op erfpachtgrond, welke is afgekocht tot 15 december 2041;
  • Verwarming middels elektrische radiatoren (eigendom);
  • Warm water middels elektrische boiler (eigendom);
  • Gezien het bouwjaar van de woning zal er een ouderdomsclausule worden opgenomen in de koopakte;

Alle verstrekte informatie moet beschouwd worden als een uitnodiging tot het doen van een bod of om in onderhandeling te treden.

Deze informatie is door ons met de nodige zorgvuldigheid samengesteld. Onzerzijds wordt echter geen enkele aansprakelijkheid aanvaard voor enige onvolledigheid, onjuistheid of anderszins, dan wel de gevolgen daarvan. Alle opgegeven maten en oppervlakten zijn indicatief. Van toepassing zijn de NVM voorwaarden.

Koopovereenkomst pas rechtsgeldig na ondertekening:
Een mondelinge overeenstemming tussen de particuliere verkoper en de particuliere koper is niet rechtsgeldig. Met andere woorden: er is geen koop. Er is pas sprake van een rechtsgeldige koop als de particuliere verkoper en de particuliere koper de koopovereenkomst hebben ondertekend. Dit vloeit voort uit artikel 7:2 Burgerlijk Wetboek. Een bevestiging van de mondelinge overeenstemming per e-mail of een toegestuurd concept van de koopovereenkomst wordt overigens niet gezien als een 'ondertekende koopovereenkomst'.

Toelichtingsclausule NEN2580:
De Meetinstructie is gebaseerd op de NEN2580. De Meetinstructie is bedoeld om een meer eenduidige manier van meten toe te passen voor het geven van een indicatie van de gebruiksoppervlakte. De Meetinstructie sluit verschillen in meetuitkomsten niet volledig uit, door bijvoorbeeld interpretatieverschillen, afrondingen of beperkingen bij het uitvoeren van de meting.

Overdracht

Vraagprijs
€ 399.500 k.k.
Aangeboden sinds
19-12-2025
Status
Beschikbaar
Beschikbaar
In overleg
Onderhoudsstaat
Matig

Oppervlakte en inhoud

Woonoppervlakte
87 m²
Perceeloppervlakte
108 m²
Inhoud
321 m³

Bouw

Type woning
Huis
Soort woning
Tussenwoning (rijtjeshuis), Eengezinswoning
Soort bouw
Bestaande bouw
Bouwjaar
1992
Ligging
  • Aan een rustige weg
  • In een woonwijk
  • Vrij uitzicht

Indeling

Aantal kamers
4
Aantal slaapkamers
3
Aantal badkamers
1
Aantal woonlagen
2
Voorzieningen
  • Glasvezelaansluiting
  • Mechanische ventilatie
  • Douche
  • Schuifdeuren
  • Bergruimte
  • Toilet

Buitenruimte

Balkon
Niet aanwezig
Tuin
Aanwezig (53 m², gelegen op het zuidoosten)
Tuinbeschrijving
achtertuin
Achterom
Aanwezig
Dakterras
Niet aanwezig

Energie

Isolatie
Dubbele beglazing, Muurisolatie
Verwarming
Electrische verwarming
Warm water
Elektrische boiler
Energielabel
C

Bergruimte

Schuur/Berging
Aanwezig

Parkeergelegenheid

Aanwezig
Ja
Soort parkeergelegenheid
Openbaar

Garage

Aanwezig
Nee
Meld een probleem met deze woning