Contact met de makelaar

Deze woning is gevonden buiten ons eigen netwerk. Met de knop hieronder kom je direct bij de aanbieder terecht.

Nyswillerpad 27

Bekijk kaart
3077 GP Rotterdam (Oud IJsselmonde)
€ 495.000 k.k.
  • 123 m²
  • 5 kamers
  • 1985

Samenvatting

  • Deze woning wordt sinds 3 maanden aangeboden door Woonvisie NVM Makelaars;
  • De geschakelde woning heeft een woonoppervlakte van 123 m² en beschikt over 5 kamers, waarvan 4 slaapkamers;
  • De woning is gebouwd In 1985 en ligt in de buurt Oud IJsselmonde in Rotterdam;
  • De woning beschikt onder andere over de volgende voorzieningen: Alarm, Mechanische ventilatie, Buitenzonwering, Douche, Toilet, Wasruimte.

Beschrijving

Welkom aan het Nyswillerpad 27 in Rotterdam! Deze ruime en goed onderhouden eengezinswoning beschikt over vier slaapkamers, een zonnige achtertuin met buitenzonwering en diverse moderne voorzieningen. De woning is fraai gelegen aan een singel in een rustige en kindvriendelijke wijk, op korte afstand van winkels, scholen, openbaar vervoer en uitvalswegen.

De woning is voorzien van diverse voorzieningen, waaronder vloerverwarming op de begane grond, HR dubbel glas, muur- en vloerisolatie, 5 zonnepanelen, energielabel C en is de woning gelegen op eigen grond. Dankzij de prettige indeling en het verzorgde afwerkingsniveau is dit een ideale woning voor u en uw gezin.

Bij binnenkomst betreedt u de woning via het tochtportaal met meterkast en vaste kast. Vanuit de hal heeft u toegang tot de verschillende vertrekken, de trapopgang en een modern, geheel betegeld toiletruimte. De lichte L-vormige woonkamer is ruim van opzet en biedt voldoende mogelijkheden voor een gezellige zit- en eethoek. Via openslaande deuren heeft u direct toegang tot de verzorgde achtertuin. De keuken in hoekopstelling is gelegen aan de voorzijde van de woning en voorzien van diverse inbouwapparatuur. De achtertuin is zeer goed onderhouden, grotendeels betegeld en voorzien van groen en fraaie bomen. Dankzij de ligging op het noordwesten en de aanwezige buitenzonwering kunt u hier optimaal genieten van de zon en de schaduw wanneer u dat wilt. Aan de voorzijde bevindt zich een gezellig terras en aan de achterzijde vindt u een stenen berging en een achterom. Op de eerste verdieping bevinden zich drie slaapkamers, waarvan één aan de voorzijde en twee aan de achterzijde van de woning. De nette, betegelde badkamer is uitgerust met een douchecabine, wastafelmeubel en toilet. De tweede verdieping beschikt over een ruime overloop met wasmachine- en drogeraansluiting en de CV-opstelling. Aan de achterzijde bevindt zich de vierde slaapkamer.

De woning is gelegen in een rustige en groene woonwijk IJsselmonde, binnen de buurt Oud-IJsselmonde. Voor de deur ligt een singel, wat zorgt voor een rustige sfeer en een mooi uitzicht. Aan de achterzijde van de woning bevindt zich een parkeerhofje, waardoor u altijd voldoende plek heeft om uw auto te parkeren. De wijk kenmerkt zich door brede straten, veel groen en speelgelegenheden voor kinderen, waardoor het een zeer kindvriendelijke omgeving is. Binnen enkele minuten bereikt u diverse winkels, supermarkten en horecagelegenheden, zodat u al uw dagelijkse benodigdheden dichtbij huis heeft. Ook zijn er verschillende basisscholen en kinderdagverblijven in de buurt, waardoor de woning ideaal is voor gezinnen. Voor uw vrijetijdsbesteding biedt de omgeving volop mogelijkheden. Fietsen of wandelen langs de singels, parken en groene routes kan direct vanuit de wijk. Daarnaast bent u met de auto of het openbaar vervoer snel in het centrum van Rotterdam, op het station Rotterdam Alexander of op de A16 en A20, waardoor u gemakkelijk de stad of de regio kunt bereiken.

Interesse?
Wij nodigen u graag uit voor een bezichtiging van de woning!

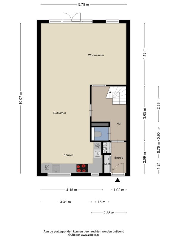
De indeling van de woning is als volgt:

Begane grond:

  • Entree/tochtportaal met meterkast en vaste kast;
  • Hal met trapopgang en toegang tot de vertrekken;
  • Geheel betegelde toiletruimte met zwevend closet;
  • De L-vormige woonkamer is ruim van opzet en biedt de mogelijkheid om een gezellige zit- een eethoek te creëren. Vanuit de woonkamer heeft u toegang tot de keuken en middels openslaande deuren tot de achtertuin;
  • De keuken met een keukenblok in hoekopstelling is voorzien van een inductiekookplaat, afzuigkap, koel/vriescombinatie, combimagnetron, vaatwasser.

Buiten:

  • De ruime achtertuin (ca. 10.50m x 6.00m), gelegen op het noordwesten is zeer goed onderhouden en mooi betegeld en voorzien van groen en prachtige bomen. Aan de voorzijde bevindt zich een gezellig terras en aan de achterzijde bevindt zich de stenen berging en achterom.

Eerste verdieping:

  • Overloop met toegang tot de vertrekken;
  • Slaapkamer 1 is gelegen aan de voorzijde van de woning;
  • Slaapkamer 2 en 3 zijn beide gelegen aan de achterzijde;
  • De nette betegelde badkamer is voorzien van een douchecabine, wastafelmeubel en toilet.

Tweede verdieping:

  • Zeer ruime overloop met wasmachine- en drogeraansluiting en CV-opstelling;
  • Slaapkamer 4 is gelegen aan de achterzijde van de woning.

Bijzonderheden:

  • Bouwjaar: 1985;
  • Woonoppervlakte ca. 123m²;
  • Inhoud ca. 434m³;
  • Energielabel C;
  • Mechanische ventilatie;
  • Alarminstallatie aanwezig;
  • Voorzien van muurisolatie en vloerisolatie;
  • De woning is gelegen op eigen grond;
  • Schilderwerk gedaan in 2024;
  • De begane grond is voorzien van vloerverwarming;
  • Voorzien van 5 zonnepanelen;
  • Voorzien van een plavuizen vloer op de begane grond en de eerste en tweede verdieping van een laminaat vloer;
  • Voorzien van kunststof kozijnen en houten kozijnen in de keuken;
  • Geheel voorzien van dubbel glas (HR glas);
  • Verwarming en warm water middels CV-combiketel (Vaillant | 2014 | eigendom);
  • Gezien het bouwjaar van de woning zal er een asbest- en ouderdomsclausule in de koopakte worden opgenomen;

De oplevering vindt plaats in overleg, voorkeur voor de zomer 2026.

Alle verstrekte informatie moet beschouwd worden als een uitnodiging tot het doen van een bod of om in onderhandeling te treden.

Deze informatie is door ons met de nodige zorgvuldigheid samengesteld. Onzerzijds wordt echter geen enkele aansprakelijkheid aanvaard voor enige onvolledigheid, onjuistheid of anderszins, dan wel de gevolgen daarvan. Alle opgegeven maten en oppervlakten zijn indicatief. Van toepassing zijn de NVM voorwaarden.

Koopovereenkomst pas rechtsgeldig na ondertekening:
Een mondelinge overeenstemming tussen de particuliere verkoper en de particuliere koper is niet rechtsgeldig. Met andere woorden: er is geen koop. Er is pas sprake van een rechtsgeldige koop als de particuliere verkoper en de particuliere koper de koopovereenkomst hebben ondertekend. Dit vloeit voort uit artikel 7:2 Burgerlijk Wetboek. Een bevestiging van de mondelinge overeenstemming per e-mail of een toegestuurd concept van de koopovereenkomst wordt overigens niet gezien als een 'ondertekende koopovereenkomst'.

Disclaimer
Gemeente Rotterdam is bezig om betaald parkeren in te voeren. Nieuwsgierig of de woning hieronder valt? Kijk dan voor meer informatie op de website van gemeente Rotterdam.

Toelichtingsclausule NEN2580:
De Meetinstructie is gebaseerd op de NEN2580. De Meetinstructie is bedoeld om een meer eenduidige manier van meten toe te passen voor het geven van een indicatie van de gebruiksoppervlakte. De Meetinstructie sluit verschillen in meetuitkomsten niet volledig uit, door bijvoorbeeld interpretatieverschillen, afrondingen of beperkingen bij het uitvoeren van de meting.

Overdracht

Vraagprijs
€ 495.000 k.k.
Aangeboden sinds
24-10-2025
Status
Beschikbaar
Beschikbaar
In overleg
Onderhoudsstaat
Goed

Oppervlakte en inhoud

Woonoppervlakte
123 m²
Perceeloppervlakte
151 m²
Inhoud
434 m³

Bouw

Type woning
Huis
Soort woning
Geschakelde woning, Eengezinswoning
Soort bouw
Bestaande bouw
Bouwjaar
1985
Ligging
  • Aan een rustige weg
  • Aan het water
  • In een woonwijk
  • Vrij uitzicht

Indeling

Aantal kamers
5
Aantal slaapkamers
4
Aantal badkamers
1
Aantal woonlagen
3
Voorzieningen
  • Alarm
  • Mechanische ventilatie
  • Buitenzonwering
  • Douche
  • Toilet
  • Wasruimte

Buitenruimte

Balkon
Niet aanwezig
Tuin
Aanwezig (63 m², gelegen op het noordwesten)
Tuinbeschrijving
achtertuin, voortuin
Dakterras
Niet aanwezig

Energie

Isolatie
Dubbele beglazing, Vloerisolatie, HR glas, Muurisolatie
Verwarming
CV-ketel, Gedeeltelijke vloerverwarming
Warm water
CV-ketel
Cv-ketel
Vaillant (Gas, uit 2014, Eigendom)
Energielabel
C

Bergruimte

Schuur/Berging
Aanwezig
Omschrijving
Vrijstaand steen

Parkeergelegenheid

Aanwezig
Ja
Soort parkeergelegenheid
Openbaar

Garage

Aanwezig
Nee
Meld een probleem met deze woning