Contact met de makelaar

Deze woning is gevonden buiten ons eigen netwerk. Met de knop hieronder kom je direct bij de aanbieder terecht.

Nieuw

Plantageweg

Bekijk kaart
3061 PJ Rotterdam (Kralingen West)
€ 599.000 k.k.
  • 175 m²
  • 12 kamers
  • 1896

Samenvatting

  • Deze woning wordt sinds 19 januari 2026 aangeboden door Schildtvoorde NVM Makelaardij;
  • De tussenwoning heeft een woonoppervlakte van 175 m² en beschikt over 12 kamers, waarvan 8 slaapkamers;
  • De woning is gebouwd In 1896 en ligt in de buurt Kralingen West in Rotterdam.

Beschrijving

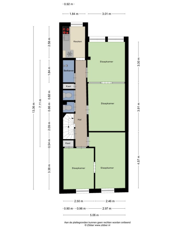
Stap binnen in deze verrassend ruime woning met veel kamers en royale leefruimtes, perfect voor wonen, werken en samenleven. De entree biedt toegang tot verschillende vertrekken, waaronder de trapopgang naar de eerste verdieping, de geheel betegelde badkamer, en de separate toiletruimte. De begane grond heeft vier kamers, waarbij de achterste kamer toegang biedt tot de westelijk gelegen tuin. Aan de achterzijde bevindt zich ook de dichte keuken. Op de eerste verdieping zijn er twee toiletruimtes, een badkamer en vier slaapkamers. De zolder biedt een open keuken, een geheel betegelde toiletruimte en twee slaapkamers aan de voor- en achterzijde. Deze woning ligt in Kralingen-Crooswijk, dichtbij dagelijkse voorzieningen en openbaar vervoer.

Overdracht

Vraagprijs
€ 599.000 k.k.
Aangeboden sinds
19-01-2026
Status
Beschikbaar
Beschikbaar
Per direct

Oppervlakte en inhoud

Woonoppervlakte
175 m²
Perceeloppervlakte
212 m²

Bouw

Type woning
Huis
Soort woning
Tussenwoning (rijtjeshuis), Eengezinswoning
Soort bouw
Bestaande bouw
Bouwjaar
1896

Indeling

Aantal kamers
12
Aantal slaapkamers
8
Aantal badkamers
3

Buitenruimte

Dakterras
Niet aanwezig

Energie

Energielabel
F
Meld een probleem met deze woning