Contact met de makelaar

Deze woning is gevonden buiten ons eigen netwerk. Met de knop hieronder kom je direct bij de aanbieder terecht.

van der Slikkestraat 5

Bekijk kaart
4507 AC Schoondijke (Schoondijke)
€ 319.000 k.k.
  • 100 m²
  • 4 kamers
  • 1947

Samenvatting

  • Deze woning wordt sinds 7 weken aangeboden door Versluijs Makelaardij;
  • De tussenwoning heeft een woonoppervlakte van 100 m² en beschikt over 4 kamers, waarvan 3 slaapkamers;
  • De woning is gebouwd In 1947 en ligt in de buurt Schoondijke in Schoondijke;
  • De woning beschikt onder andere over de volgende voorzieningen: Kabel TV, Glasvezelaansluiting, Open haard, Rookkanaal, Internetaansluiting, Rolluiken, Douche, Bergruimte, Toilet.

Beschrijving

Instapklare woning met diepe tuin, luxe overdekt terras en eigen parkeerruimte

Achter de charmante gevel van dit huis uit 1947 schuilt een verrassend moderne en lichte leefruimte. Door de grondige renovatie in 2015 is dit huis helemaal van nu, maar met behoud van karakter. Instapklaar en keurig onderhouden, zodat je direct kunt verhuizen zonder extra werk.

Perceelgrootte: 387m².
Bouwjaar: ca. 1947, gemoderniseerd in 2015
Energielabel: D
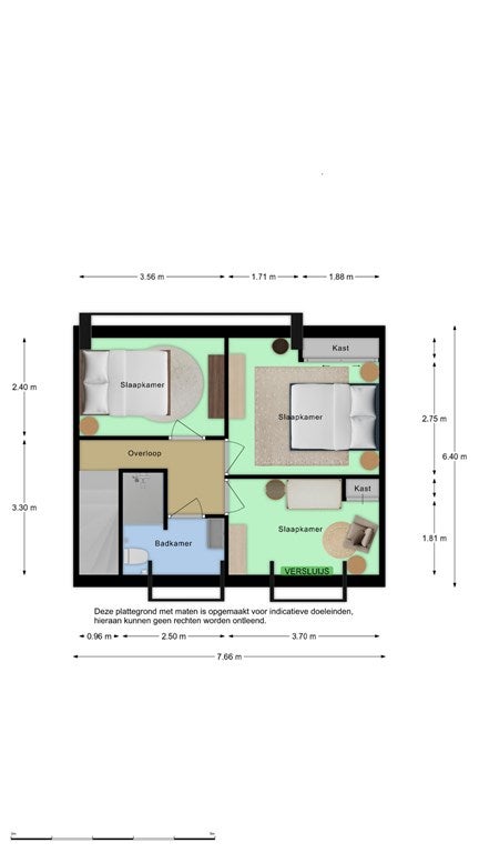
3 Slaapkamers.

Gelegen in een rustige, kindvriendelijke straat in het dorp Schoondijke woon je hier landelijk en toch centraal.
Bovendien ben je binnen een mum van tijd in Breskens, Oostburg, IJzendijke of op het strand. Ideaal voor wie houdt van rust én een goede bereikbaarheid.

Je komt binnen via de hal met aldaar de meterkast, het toilet, een trapkast en de trap naar de verdieping.
De lichte, L-vormige, woonkamer zorgt voor een ruime gezellige leefruimte waar je heerlijk kunt relaxen bij de open haard. Dankzij de laminaatvloer is alles mooi strak en onderhoudsvriendelijk.
Aan de achterkant vind je een half-open keuken die is uitgerust met alle benodigde, moderne apparatuur. Aangrenzend vind je de bijkeuken. Deze biedt niet alleen plaats aan de cv ketel, de wasmachine en een droger, maar heeft ook nog een handige bergzolder.

Via de trap in de hal kom je op de overloop. Hier wachten 3 fijne slaapkamers, allemaal keurig afgewerkt en voorzien van extra brede dakkapellen die zorgen voor extra ruimte en licht.
De laminaatvloer loopt hier mooi door wat zorgt voor een rustige en moderne uitstraling.
De badkamer, vernieuwd in 2015, is uitgerust met een douchecabine, een wastafelmeubel, het 2e toilet en een royale dakkapel.

Bergzolder met een stahoogte van 1.70m. Deze zolder is op dit moment niet in gebruik, daar de bijkeuken een handige bergzolder heeft.

De achtertuin en de bijbehorende gebouwen hebben in 2021 een metamorfose ondergaan.
De diepe achtertuin is hierdoor één van de grote verrassingen van dit huis.
Hier geniet je van rust, privacy en groen. Dankzij het zeer sfeervol en luxe massief houten overdekte terras zit je zelfs bij minder mooi weer heerlijk buiten. Hier ga je vele uren van genieten.
En met de appelboompjes in je eigen tuin pluk je letterlijk de vruchten van het buitenleven.
Achter in de tuin staat een vrijstaande berging annex garage, ideaal voor de klusser of de auto. De garage is voorzien van stroom en licht.
Achter de garage liggen nog 2 privé parkeerplaatsen, dus parkeren is nooit een probleem.

De spouwmuren zijn geïsoleerd.
Volledig voorzien van hardhouten kozijnen met dubbel glas.
Ook zijn er diverse rolluiken en raamhorren.
Een hr-combiketel van het merk Intergas uit 2025 voorziet in de verwarming en het warm water.
De vernieuwde meterkast is uitgerust met 5 groepen en 2 aardlekschakelaars.
Er ligt glasvezel van Glasdraad in de woning.

Profiteer van het Zeeuwse Isolatie Programma van de Gemeente Sluis! Met deze subsidie kun je tot wel € 2.050,- ontvangen voor isolerende maatregelen, zelfs als je ze zelf uitvoert. En ja, dit geldt ook voor deze woning. Een geweldige kans om slim te investeren in jouw nieuwe thuis. Plan vandaag nog een bezichtiging en ontvang alle details over het Isolatie Programma van de makelaar!

Starterslening in de gemeente Sluis
Heb jij een eerste woning op het oog, maar is je inkomen te laag voor een hypotheek?
Om het kopen van een eerste huis mogelijk te maken, kun je de Starterslening
aanvragen.

Wij hebben een brochure van deze woning met duidelijke plattegronden met inrichting. Met 1 druk op de knop is deze te downloaden.
Ook is er nog een videofilm. Zelfs 360 gradenfoto’s en een virtuele tour behoren tot de promotie.
Wil je na dit alles bekeken te hebben meer informatie of een bezichtiging? De dames van Team Versluijs zijn er klaar voor.

Overdracht

Vraagprijs
€ 319.000 k.k.
Aangeboden sinds
12-11-2025
Status
Beschikbaar
Beschikbaar
Per direct
Onderhoudsstaat
Goed

Oppervlakte en inhoud

Woonoppervlakte
100 m²
Perceeloppervlakte
387 m²
Inhoud
327 m³

Bouw

Type woning
Huis
Soort woning
Tussenwoning (rijtjeshuis), Eengezinswoning
Soort bouw
Bestaande bouw
Bouwjaar
1947
Ligging
  • Aan een rustige weg
  • In een woonwijk

Indeling

Aantal kamers
4
Aantal slaapkamers
3
Aantal badkamers
1
Aantal woonlagen
3
Voorzieningen
  • Kabel TV
  • Glasvezelaansluiting
  • Open haard
  • Rookkanaal
  • Internetaansluiting
  • Rolluiken
  • Douche
  • Bergruimte
  • Toilet

Buitenruimte

Balkon
Niet aanwezig
Tuin
Aanwezig (262 m², gelegen op het noordoosten)
Tuinbeschrijving
achtertuin
Dakterras
Niet aanwezig

Energie

Isolatie
Spouwmuurisolatie, Dubbele beglazing, Muurisolatie
Verwarming
CV-ketel, Open haard
Warm water
CV-ketel
Cv-ketel
Intergas (Gas, uit 2025, Eigendom)
Energielabel
D

Parkeergelegenheid

Aanwezig
Ja

Garage

Aanwezig
Ja
Meld een probleem met deze woning