- 148 m²
- 4 kamers
- 2001
Samenvatting
- Deze woning wordt sinds 27 januari 2026 aangeboden door VeTeBe B.V;
- De tussenwoning heeft een woonoppervlakte van 148 m² en beschikt over 4 kamers, waarvan 3 slaapkamers;
- De woning is gebouwd In 2001 en ligt in de buurt Maasveld II in Tegelen.
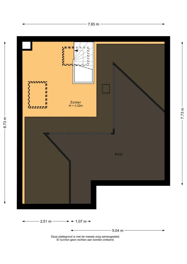
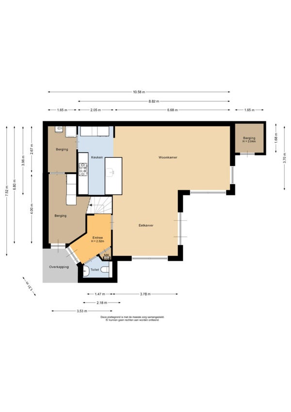
Beschrijving
Denk je aan een instapklare gezinswoning waar comfort, ruimte en luxe samenkomen? Deze woning in Maasveld, Tegelen, biedt drie ruime slaapkamers en een zonnige tuin met een zwembad van ongeveer 3 meter doorsnee. De lichte woonkamer met een stijlvolle open keuken heeft openslaande deuren die naar de tuin leiden. Op de eerste verdieping bevinden zich de slaapkamers, waarvan twee met airco en toegang tot een dakterras met uitzicht over de Maas. De badkamer is compleet met ligbad en douche. De tweede verdieping biedt mogelijkheden om een vierde slaapkamer of hobbyruimte in te richten. Buiten is er een omheinde tuin met een houten tuinhuisje. Met 10 zonnepanelen en drie airco's is deze woning duurzaam. Alle voorzieningen, het centrum en de Maas zijn op loopafstand.
Overdracht
- Vraagprijs
- € 489.500 k.k.
- Aangeboden sinds
- 27-01-2026
- Status
- Beschikbaar
- Beschikbaar
- Per direct
Oppervlakte en inhoud
- Woonoppervlakte
- 148 m²
- Perceeloppervlakte
- 182 m²
Bouw
- Type woning
- Huis
- Soort woning
- Tussenwoning (rijtjeshuis), Eengezinswoning
- Soort bouw
- Bestaande bouw
- Bouwjaar
- 2001
Indeling
- Aantal kamers
- 4
- Aantal slaapkamers
- 3
- Aantal badkamers
- 1
Buitenruimte
- Dakterras
- Niet aanwezig
Energie
- Energielabel
- A