- 129 m²
- 6 kamers
- 2002
Samenvatting
- Deze woning wordt sinds 27 januari 2026 aangeboden door VeTeBe B.V;
- De tussenwoning heeft een woonoppervlakte van 129 m² en beschikt over 6 kamers, waarvan 5 slaapkamers;
- De woning is gebouwd In 2002 en ligt in de buurt Maasveld II in Tegelen.
Beschrijving
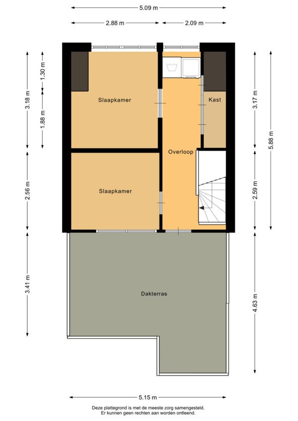
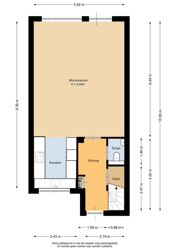
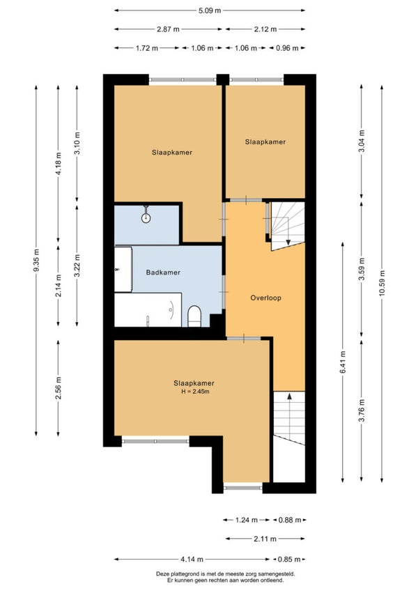
Deze sfeervolle eengezinswoning in een rustige buurt biedt veel leefruimte voor het hele gezin. Met 5 slaapkamers en een ruime badkamer is er ruimte en comfort voor iedereen. Op de tweede verdieping geniet je van een prachtig uitzicht vanaf het dakterras. De begane grond heeft een ruime hal die toegang biedt tot de lichte woonkamer met vloerverwarming. Via de tuindeuren stap je de zonnige tuin op het zuidoosten in, die ook een schuur heeft voor extra opslag. De moderne keuken is volledig uitgerust met inbouwapparatuur. Op de eerste verdieping vind je drie ruime slaapkamers en een vernieuwde badkamer. De zolder heeft nog twee slaapkamers, met voldoende opbergruimte. De tuin en dakterras zijn via de zolder bereikbaar. Het huis is gelegen in een kindvriendelijke buurt, met scholen en supermarkten op loopafstand.
Overdracht
- Vraagprijs
- € 425.000 k.k.
- Aangeboden sinds
- 27-01-2026
- Status
- Beschikbaar
- Beschikbaar
- Per direct
Oppervlakte en inhoud
- Woonoppervlakte
- 129 m²
- Perceeloppervlakte
- 172 m²
Bouw
- Type woning
- Huis
- Soort woning
- Tussenwoning (rijtjeshuis), Eengezinswoning
- Soort bouw
- Bestaande bouw
- Bouwjaar
- 2002
Indeling
- Aantal kamers
- 6
- Aantal slaapkamers
- 5
- Aantal badkamers
- 1
Buitenruimte
- Dakterras
- Niet aanwezig
Energie
- Energielabel
- A