Contact met de makelaar

Deze woning is gevonden buiten ons eigen netwerk. Met de knop hieronder kom je direct bij de aanbieder terecht.

Verkocht onder voorbehoud

Hoefstraat 63

Bekijk kaart
5014 NH Tilburg (Hoefstraat Noord)
€ 350.000 k.k.
  • 108 m²
  • 4 kamers
  • 1907

Samenvatting

  • Deze woning wordt sinds 3 maanden aangeboden door RE/MAX Optimus Makelaars;
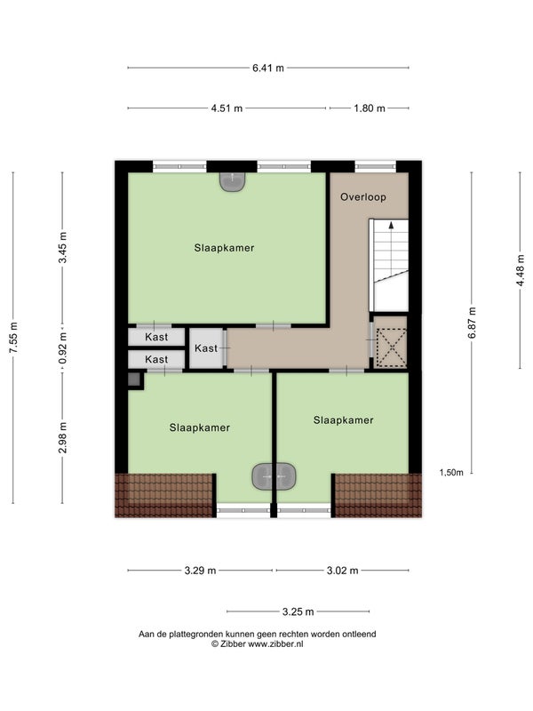
  • De tussenwoning heeft een woonoppervlakte van 108 m² en beschikt over 4 kamers, waarvan 3 slaapkamers;
  • De woning is gebouwd In 1907 en ligt in de buurt Hoefstraat Noord in Tilburg.

Beschrijving

Meer woninginformatie bekijken?

Log in of registreer gratis.

Overdracht

Vraagprijs
€ 350.000 k.k.
Aangeboden sinds
16-07-2025
Status
Verkocht onder voorbehoud
Beschikbaar
In overleg
Onderhoudsstaat
Goed

Oppervlakte en inhoud

Woonoppervlakte
108 m²
Perceeloppervlakte
159 m²
Inhoud
408 m³

Bouw

Type woning
Huis
Soort woning
Tussenwoning (rijtjeshuis), Eengezinswoning
Soort bouw
Bestaande bouw
Bouwjaar
1907

Indeling

Aantal kamers
4
Aantal slaapkamers
3
Aantal woonlagen
2

Buitenruimte

Balkon
Niet aanwezig
Tuin
Niet aanwezig
Dakterras
Niet aanwezig

Energie

Energielabel
E

Garage

Aanwezig
Nee
Meld een probleem met deze woning
Contact met de makelaar Bel