Contact met de makelaar

Deze woning is gevonden buiten ons eigen netwerk. Met de knop hieronder kom je direct bij de aanbieder terecht.

Nieuw

Lippizanerstraat 73

Bekijk kaart
3573 SP Utrecht (Voordorp en Voorveldsepolder)
€ 995.000 k.k.
  • 198 m²
  • 6 kamers
  • 2015

Samenvatting

  • Deze woning wordt sinds 29 oktober 2025 aangeboden door Punt makelaars Utrecht;
  • De tussenwoning heeft een woonoppervlakte van 198 m² en beschikt over 6 kamers, waarvan 4 slaapkamers;
  • De woning is gebouwd In 2015 en ligt in de buurt Voordorp en Voorveldsepolder in Utrecht;
  • De woning beschikt onder andere over de volgende voorzieningen: Bad, Kabel TV, Rookkanaal, Frans balkon, Mechanische ventilatie, Dakterras, Douche, Bergruimte, Toilet, Wasruimte.

Beschrijving

Overdracht

Vraagprijs
€ 995.000 k.k.
Aangeboden sinds
29-10-2025
Status
Beschikbaar
Beschikbaar
In overleg
Onderhoudsstaat
Goed

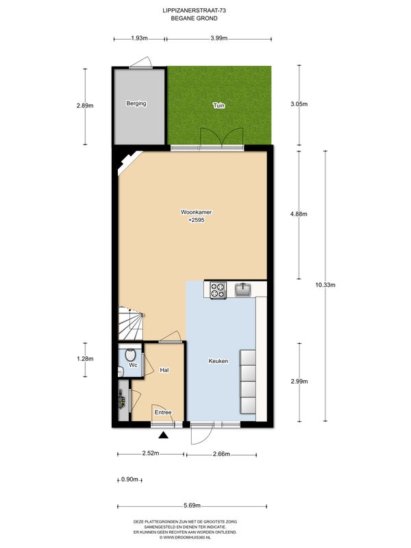
Oppervlakte en inhoud

Woonoppervlakte
198 m²
Perceeloppervlakte
85 m²
Inhoud
645 m³

Bouw

Type woning
Huis
Soort woning
Tussenwoning (rijtjeshuis), Herenhuis
Soort bouw
Bestaande bouw
Bouwjaar
2015
Ligging
  • Aan een rustige weg
  • In een woonwijk

Indeling

Aantal kamers
6
Aantal slaapkamers
4
Aantal badkamers
1
Aantal woonlagen
4
Voorzieningen
  • Bad
  • Kabel TV
  • Rookkanaal
  • Frans balkon
  • Mechanische ventilatie
  • Dakterras
  • Douche
  • Bergruimte
  • Toilet
  • Wasruimte

Buitenruimte

Balkon
Aanwezig
Tuin
Aanwezig (11 m², gelegen op het oosten)
Tuinbeschrijving
achtertuin, zonneterras
Dakterras
Aanwezig

Energie

Isolatie
Volledig geïsoleerd
Verwarming
CV-ketel, Volledige vloerverwarming
Warm water
CV-ketel
Energielabel
A++

Bergruimte

Schuur/Berging
Aanwezig
Omschrijving
Aangebouwd hout

Parkeergelegenheid

Aanwezig
Ja
Soort parkeergelegenheid
Betaald
Omschrijving
Parkeren op eigen terrein: gemeenschappelijke binnentuin

Garage

Aanwezig
Ja
Omschrijving
Parkeerplaats
Meld een probleem met deze woning
Contact met de makelaar Bel