Contact met de makelaar

Deze woning is gevonden buiten ons eigen netwerk. Met de knop hieronder kom je direct bij de aanbieder terecht.

Adriaen van Ostadelaan 84

Bekijk kaart
3583 AL Utrecht (Rubenslaan en omgeving)
€ 750.000 k.k.
  • 110 m²
  • 6 kamers
  • 1913

Samenvatting

  • Deze woning wordt sinds 10 oktober 2025 aangeboden door Linnebank Real Estate;
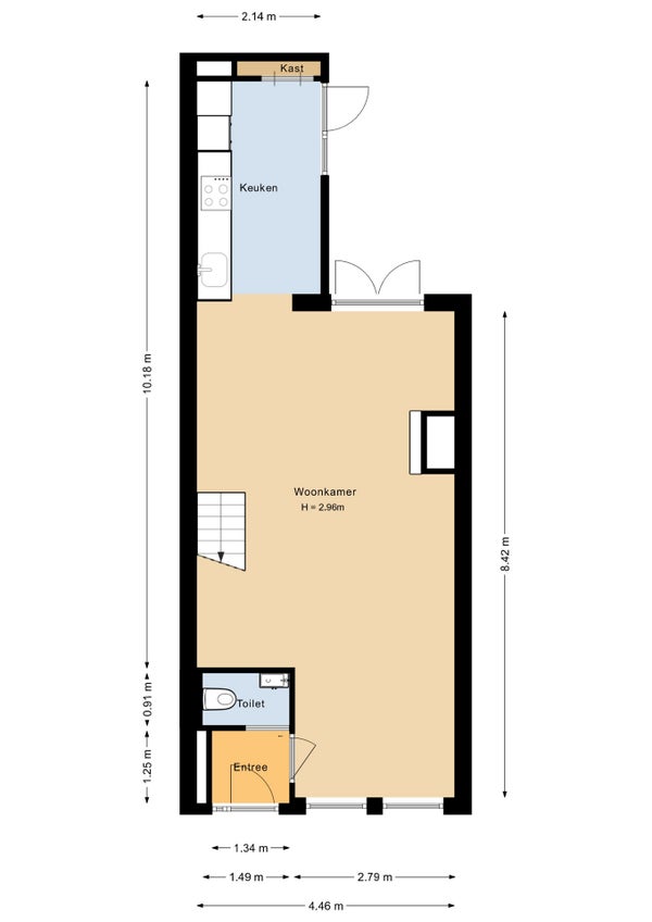
  • De tussenwoning heeft een woonoppervlakte van 110 m² en beschikt over 6 kamers, waarvan 4 slaapkamers;
  • De woning is gebouwd In 1913 en ligt in de buurt Rubenslaan en omgeving in Utrecht;
  • De woning beschikt onder andere over de volgende voorzieningen: Frans balkon, Douche, Toilet, Wasruimte.

Beschrijving

Overdracht

Vraagprijs
€ 750.000 k.k.
Aangeboden sinds
10-10-2025
Status
Beschikbaar
Beschikbaar
In overleg
Onderhoudsstaat
Goed

Oppervlakte en inhoud

Woonoppervlakte
110 m²
Perceeloppervlakte
93 m²
Inhoud
405 m³

Bouw

Type woning
Huis
Soort woning
Tussenwoning (rijtjeshuis), Eengezinswoning
Soort bouw
Bestaande bouw
Bouwjaar
1913

Indeling

Aantal kamers
6
Aantal slaapkamers
4
Aantal badkamers
1
Aantal woonlagen
3
Voorzieningen
  • Frans balkon
  • Douche
  • Toilet
  • Wasruimte

Buitenruimte

Balkon
Niet aanwezig
Tuin
Aanwezig (40 m², gelegen op het oosten)
Tuinbeschrijving
achtertuin
Dakterras
Niet aanwezig

Energie

Isolatie
Vloerisolatie, Gedeeltelijk dubbele beglazing, Dakisolatie
Verwarming
CV-ketel
Cv-ketel
Kombi Kompakt HRE 28/24A CW 4 ketel (Gas, uit 2025, Eigendom)
Energielabel
C

Parkeergelegenheid

Aanwezig
Ja
Soort parkeergelegenheid
Betaald

Garage

Aanwezig
Nee
Meld een probleem met deze woning
Contact met de makelaar Bel