Contact met de makelaar

Deze woning is gevonden buiten ons eigen netwerk. Met de knop hieronder kom je direct bij de aanbieder terecht.

Nieuw

Tijmstraat

Bekijk kaart
3551 GL Utrecht (Egelantierstraat, Mariëndaalstraat e.o.)
€ 485.000 k.k.
  • 74 m²
  • 3 kamers
  • 1906

Samenvatting

  • Deze woning wordt sinds 21 januari 2026 aangeboden door Bas & Ernst makelaars;
  • De tussenwoning heeft een woonoppervlakte van 74 m² en beschikt over 3 kamers, waarvan 2 slaapkamers;
  • De woning is gebouwd In 1906 en ligt in de buurt Egelantierstraat, Mariëndaalstraat e.o. in Utrecht.

Beschrijving

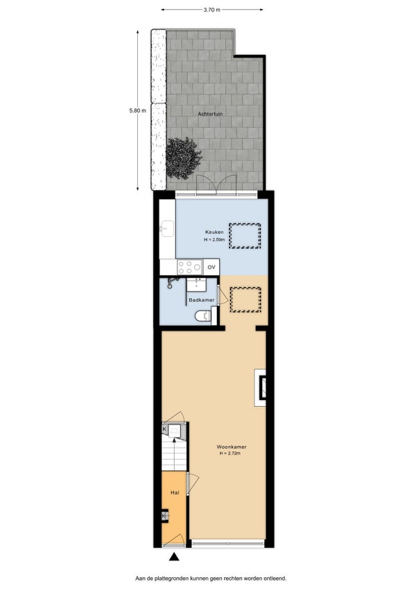
In een rustige straat in Utrecht bevindt zich deze sfeervolle en uitgebouwde tussenwoning van 74 m². Bij binnenkomst word je begroet door een ruime en lichte woonkamer, ideaal voor een comfortabele zithoek. Aan de achterzijde ligt een grote woonkeuken, perfect voor gezellige diners met vrienden en familie. De keuken heeft directe toegang tot de achtertuin, die over de volle breedte van de woning uitgestrekt is en beschikt over een achterom.

De begane grond huisvest ook een nette badkamer met douche, toilet en wastafel. Op de eerste verdieping zijn er twee goed formaat slaapkamers en een open overloop die extra mogelijkheden biedt voor kastruimte of een werkplek. Met een royale tuin en een goede indeling vormt deze woning een ideale basis voor comfortabel wonen.

Overdracht

Vraagprijs
€ 485.000 k.k.
Aangeboden sinds
21-01-2026
Status
Beschikbaar
Beschikbaar
In overleg

Oppervlakte en inhoud

Woonoppervlakte
74 m²
Perceeloppervlakte
71 m²

Bouw

Type woning
Huis
Soort woning
Tussenwoning (rijtjeshuis), Eengezinswoning
Soort bouw
Bestaande bouw
Bouwjaar
1906

Indeling

Aantal kamers
3
Aantal slaapkamers
2
Aantal badkamers
1

Buitenruimte

Dakterras
Niet aanwezig

Energie

Energielabel
D
Meld een probleem met deze woning