Contact met de aanbieder

Deze woning is gevonden buiten ons eigen netwerk. Via de knop hieronder ga je direct naar de website van de aanbieder.

Nieuw

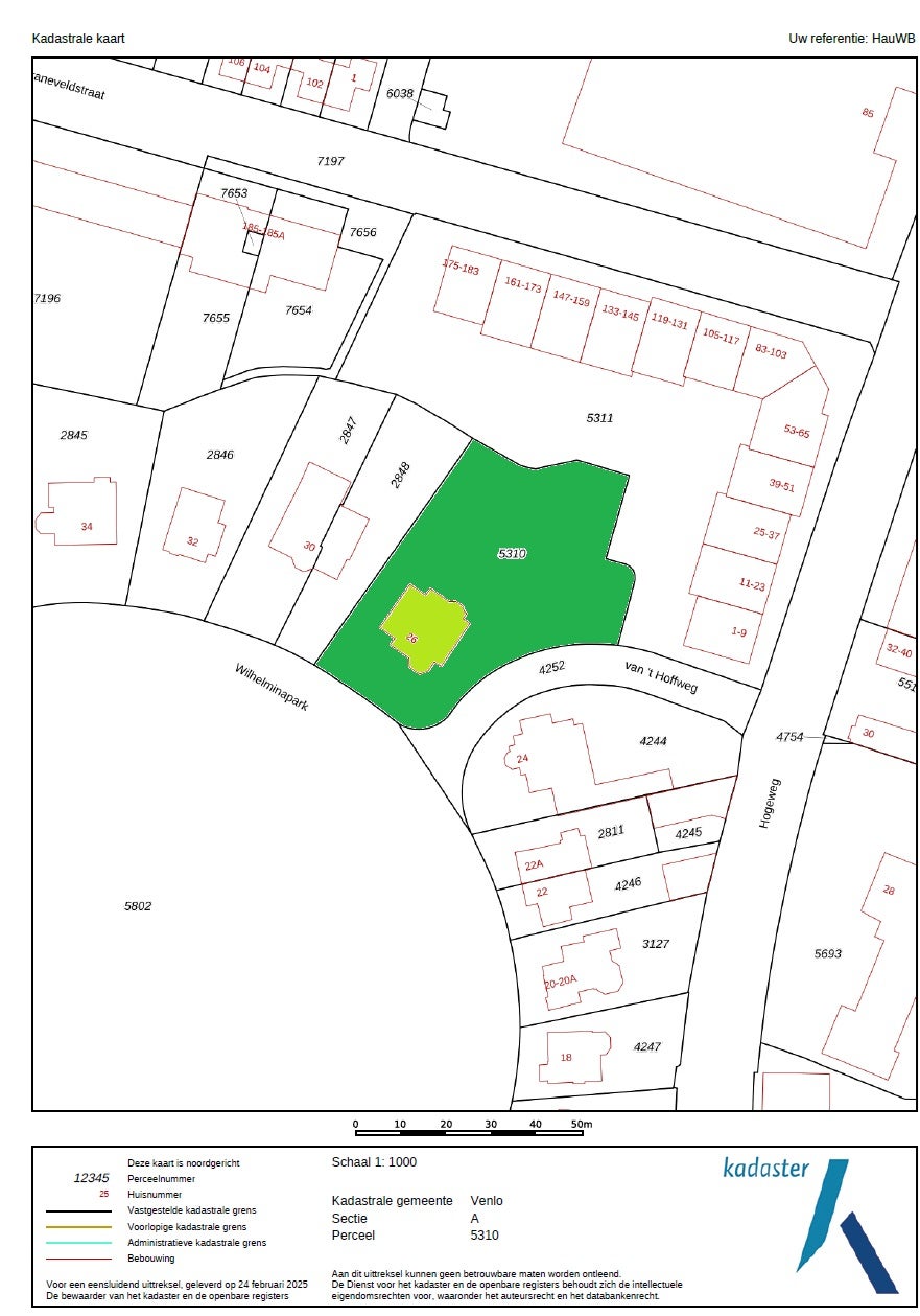
Wilhelminapark 26

Bekijk kaart
5911 EE Venlo (Binnenstad-Noord)
€ 1.950.000 k.k.
  • 708 m²
  • 15 kamers
  • 1901

Samenvatting

  • Deze woning wordt sinds 26 februari 2026 aangeboden door Hauzer & Partners;
  • De tussenwoning heeft een woonoppervlakte van 708 m² en beschikt over 15 kamers, waarvan 4 slaapkamers;
  • De woning is gebouwd In 1901 en ligt in de buurt Binnenstad-Noord in Venlo.

Beschrijving

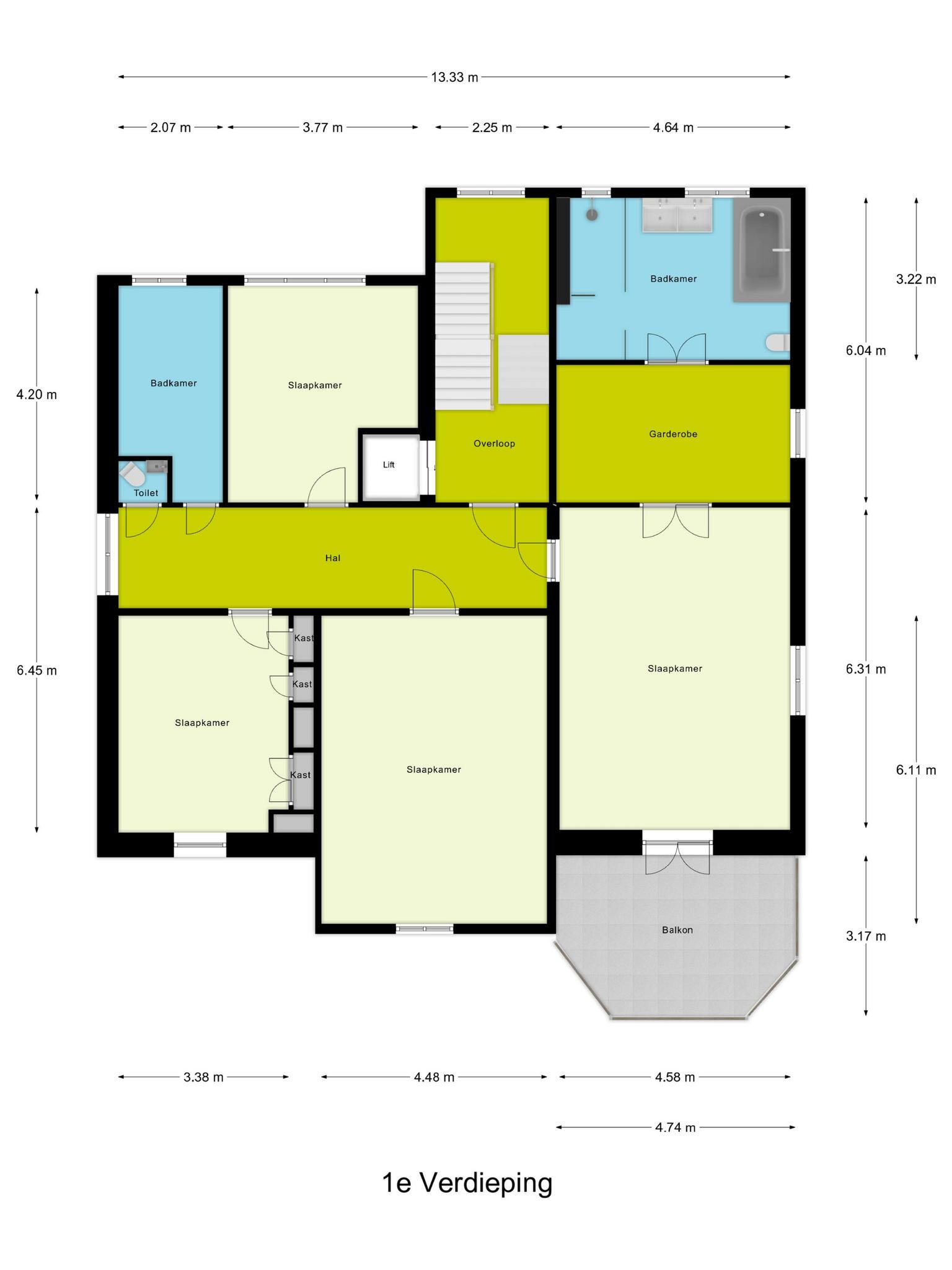
Villa Anna, gelegen in het historische Wilhelminapark in Venlo, biedt een woonoppervlakte van 708 m² en een perceel van 2605 m². Deze villa, gebouwd in 1901, heeft 15 kamers en behield originele details zoals marmeren vloeren, houtsnijwerk en glas-in-loodramen. De tweede verdieping is ingericht voor B&B gebruik met 4 luxe kamers, elk met moderne badkamers. De begane grond beschikt over een ruime living, eetkamer, bibliotheek, en een luxe keuken met vloerverwarming. De eerste verdieping herbergt 4 slaapkamers, waaronder een master met een uitzicht over het park. De villa is omgeven door een groene tuin met zwembad, sauna en meerdere terrassen. Met een bouwjaar van 1901 en een inhoud van 3037 m³, biedt het de perfecte combinatie van wonen en het exploiteren van een B&B.

Overdracht

Vraagprijs
€ 1.950.000 k.k.
Prijs per m²
€ 2.754
Aangeboden sinds
26-02-2026
Status
Beschikbaar
Beschikbaar
Per direct

Oppervlakte en inhoud

Woonoppervlakte
708 m²
Perceeloppervlakte
2 m²

Bouw

Type woning
Huis
Soort woning
Tussenwoning (rijtjeshuis), Eengezinswoning
Soort bouw
Bestaande bouw
Bouwjaar
1901

Indeling

Aantal kamers
15
Aantal slaapkamers
4
Aantal badkamers
2

Buitenruimte

Dakterras
Niet aanwezig

Energie

Energielabel
G
Meld een probleem met deze woning