Contact met de aanbieder

Deze woning is gevonden buiten ons eigen netwerk. Via de knop hieronder ga je direct naar de website van de aanbieder.

Nieuw

Kaldenkerkerweg 27

Bekijk kaart
5913 AB Venlo (Hogekamp)
€ 1.275.000 k.k.
  • 439 m²
  • 13 kamers
  • 1896

Samenvatting

  • Deze woning wordt sinds 26 februari 2026 aangeboden door Hauzer & Partners;
  • De tussenwoning heeft een woonoppervlakte van 439 m² en beschikt over 13 kamers, waarvan 5 slaapkamers;
  • De woning is gebouwd In 1896 en ligt in de buurt Hogekamp in Venlo.

Beschrijving

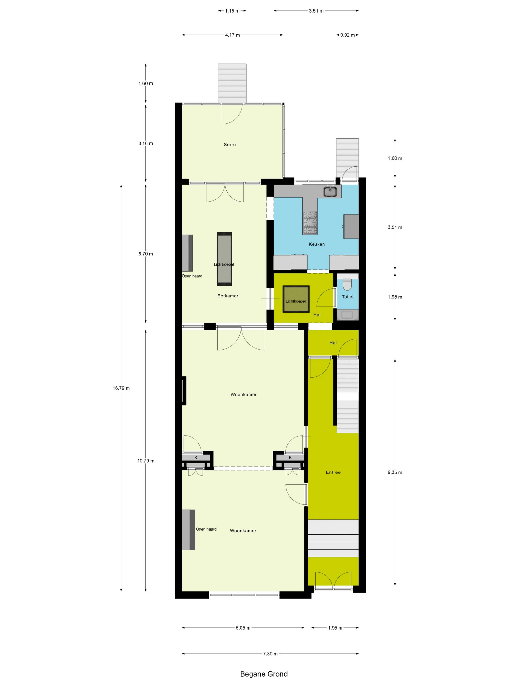
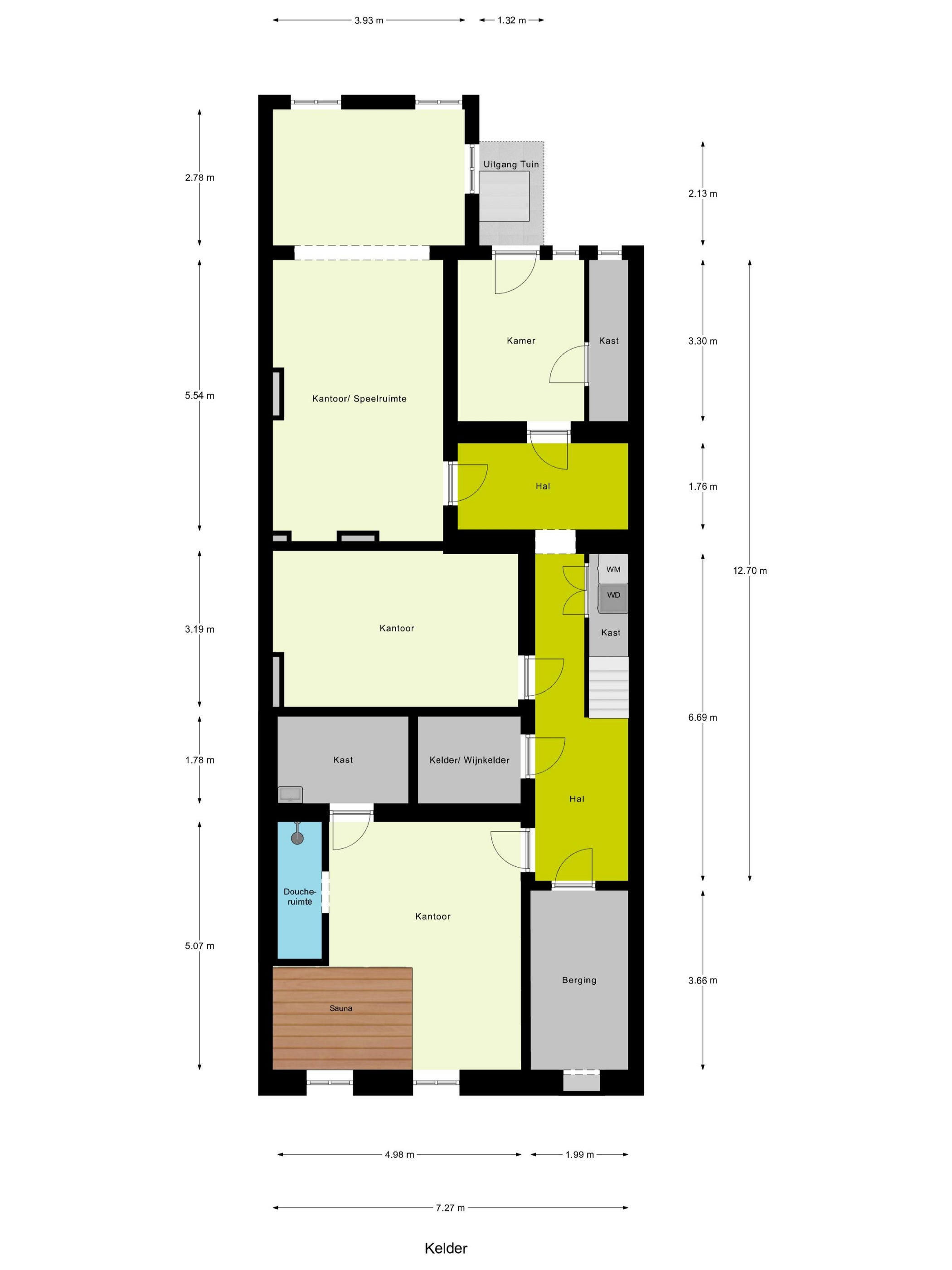
Dit statige herenhuis aan de Kaldenkerkerweg, gebouwd in 1896, biedt een woonoppervlakte van 439 m² en een inhoud van 1.910 m³ op een perceel van 500 m². De indrukwekkende voorgevel combineert Neorenaissance en NeoBarokke elementen en geeft toegang tot een prachtig gerenoveerd huis. Met 13 kamers, waaronder 5 slaapkamers en 2 badkamers, ervaart u een unieke woonbeleving. De woonkamer met openslaande deuren en de lichte eetkamer zijn verbonden met een hoogwaardige keuken. Op de eerste verdieping bevinden zich de riante master bed room en een tweede slaapkamer met badkamer. De onder architectuur aangelegde tuin biedt rust in het hart van Venlo, met een royale bijgebouw van ongeveer 160 m² voor multifunctionele doeleinden.

Overdracht

Vraagprijs
€ 1.275.000 k.k.
Prijs per m²
€ 2.904
Aangeboden sinds
26-02-2026
Status
Beschikbaar
Beschikbaar
Per direct

Oppervlakte en inhoud

Woonoppervlakte
439 m²
Perceeloppervlakte
500 m²

Bouw

Type woning
Huis
Soort woning
Tussenwoning (rijtjeshuis), Eengezinswoning
Soort bouw
Bestaande bouw
Bouwjaar
1896

Indeling

Aantal kamers
13
Aantal slaapkamers
5
Aantal badkamers
2

Buitenruimte

Dakterras
Niet aanwezig
Meld een probleem met deze woning