Contact met de makelaar

Deze woning is gevonden buiten ons eigen netwerk. Met de knop hieronder kom je direct bij de aanbieder terecht.

Nieuw

Zalzerskampweg 72

Bekijk kaart
5926 PL Venlo (Kern Hout-Blerick)
€ 650.000 k.k.
  • 120 m²
  • 4 kamers
  • 2002

Samenvatting

  • Deze woning wordt sinds 27 januari 2026 aangeboden door VeTeBe B.V;
  • De tussenwoning heeft een woonoppervlakte van 120 m² en beschikt over 4 kamers, waarvan 3 slaapkamers;
  • De woning is gebouwd In 2002 en ligt in de buurt Kern Hout-Blerick in Venlo.

Beschrijving

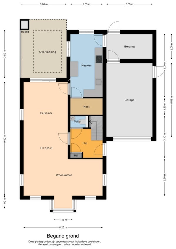
Deze prachtige vrijstaande woning op een perceel van 717 m² biedt veel ruimte en privacy, ideaal voor levensloopbestendig wonen. De diepe groene achtertuin is volledig omheind en biedt rust, met een grote overkapping en lichtkoepel voor optimaal buitenleven. Binnen zijn er een lichte L-vormige woonkamer van ca. 42 m², een moderne keuken van ca. 13 m² en een bijkeuken van ca. 7 m². De woning heeft 3 slaapkamers op de eerste verdieping, waaronder een hoofdslaapkamer van ca. 14,5 m². Er is een ruime badkamer van ca. 8 m² met een ligbad en douche. Daarnaast een inpandige garage van ca. 21 m² die kan worden omgebouwd. De tuin rondom is netjes aangelegd, met elektra en een tuinhuisje van ca. 9,5 m². Er is voldoende parkeergelegenheid voor 4 auto’s.

Overdracht

Vraagprijs
€ 650.000 k.k.
Aangeboden sinds
27-01-2026
Status
Beschikbaar
Beschikbaar
Per direct

Oppervlakte en inhoud

Woonoppervlakte
120 m²
Perceeloppervlakte
717 m²

Bouw

Type woning
Huis
Soort woning
Tussenwoning (rijtjeshuis), Eengezinswoning
Soort bouw
Bestaande bouw
Bouwjaar
2002

Indeling

Aantal kamers
4
Aantal slaapkamers
3
Aantal badkamers
1

Buitenruimte

Dakterras
Niet aanwezig

Energie

Energielabel
A
Meld een probleem met deze woning