- 250 m²
- 8 kamers
- 1935
Samenvatting
- Deze woning wordt sinds 27 januari 2026 aangeboden door VeTeBe B.V;
- De tussenwoning heeft een woonoppervlakte van 250 m² en beschikt over 8 kamers, waarvan 7 slaapkamers;
- De woning is gebouwd In 1935 en ligt in de buurt Rosarium e.o. in Venlo.
Beschrijving
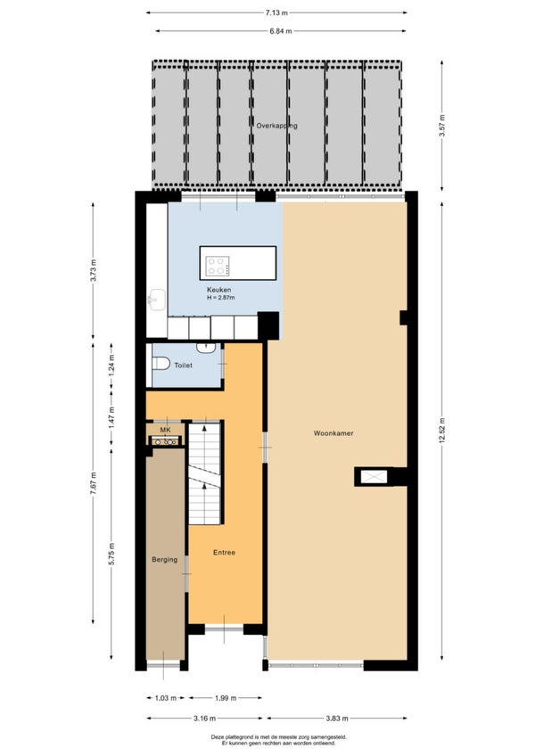
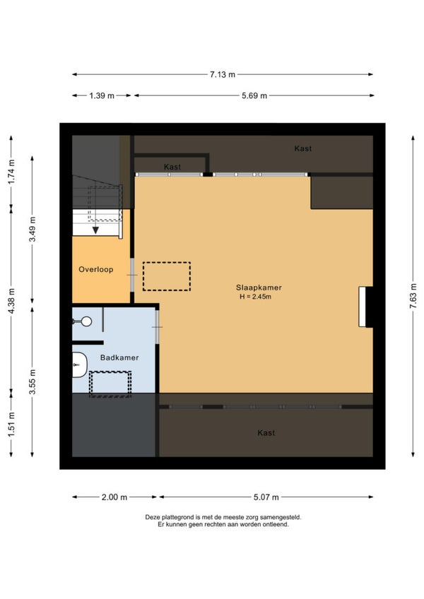
Dit prachtige herenhuis in het geliefde Rosarium heeft vier verdiepingen en biedt met zes slaapkamers en twee badkamers veel ruimte voor een gezin. Bij binnenkomst in de ruime hal is er toegang tot een souterrain met verschillende bergingen en een waskelder. De royale woonkamer van ongeveer 47 m2 heeft veel natuurlijk licht en is voorzien van een gashaard en airco. De open keuken van circa 13 m2 is compleet uitgerust met moderne apparatuur. Op de eerste verdieping bevinden zich twee slaapkamers, waaronder de grootste met openslaande deuren naar het dakterras. De tweede verdieping bevat drie slaapkamers en een zolderkamer. De volledig omheinde stadstuin van 160 m2 ligt op het zuidwesten en is een oase van rust. Dit statige herenhuis combineert leefruimte met een centrale ligging.
Overdracht
- Vraagprijs
- € 799.000 k.k.
- Aangeboden sinds
- 27-01-2026
- Status
- Beschikbaar
- Beschikbaar
- Per direct
Oppervlakte en inhoud
- Woonoppervlakte
- 250 m²
- Perceeloppervlakte
- 243 m²
Bouw
- Type woning
- Huis
- Soort woning
- Tussenwoning (rijtjeshuis), Eengezinswoning
- Soort bouw
- Bestaande bouw
- Bouwjaar
- 1935
Indeling
- Aantal kamers
- 8
- Aantal slaapkamers
- 7
- Aantal badkamers
- 2
Buitenruimte
- Dakterras
- Niet aanwezig
Energie
- Energielabel
- C