- 364 m²
- 12 kamers
- 1926
Samenvatting
- Deze woning wordt sinds 31 oktober 2025 aangeboden door Hauzer & Partners;
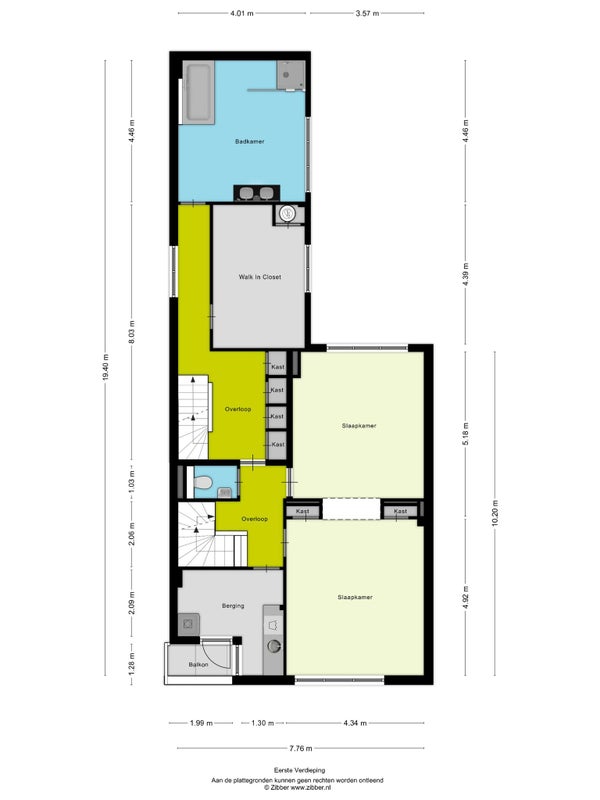
- De tussenwoning heeft een woonoppervlakte van 364 m² en beschikt over 12 kamers, waarvan 8 slaapkamers;
- De woning is gebouwd In 1926 en ligt in de buurt Rosarium e.o. in Venlo.
Beschrijving
Meer woninginformatie bekijken?
Log in of registreer gratis.
Overdracht
- Vraagprijs
- € 695.000 k.k.
- Aangeboden sinds
- 31-10-2025
- Status
- Beschikbaar
- Beschikbaar
- In overleg
Oppervlakte en inhoud
- Woonoppervlakte
- 364 m²
- Perceeloppervlakte
- 259 m²
Bouw
- Type woning
- Huis
- Soort woning
- Tussenwoning (rijtjeshuis), Eengezinswoning
- Soort bouw
- Bestaande bouw
- Bouwjaar
- 1926
Indeling
- Aantal kamers
- 12
- Aantal slaapkamers
- 8
- Aantal badkamers
- 2
Buitenruimte
- Dakterras
- Niet aanwezig
Energie
- Energielabel
- C
 
                 
                 
                 
                 
                 
                 
                 
                 
                 
                 
                 
                 
                 
                 
                 
                 
                 
                 
                 
                 
                 
                 
                 
                 
                 
                 
                 
                 
                 
                 
                 
                 
                 
                 
                 
                 
                 
                 
                 
                 
                 
                 
                 
                 
                 
                 
                