Contact met de makelaar

Deze woning is gevonden buiten ons eigen netwerk. Met de knop hieronder kom je direct bij de aanbieder terecht.

Blauwbleuren

Bekijk kaart
5251 RZ Vlijmen (Vijfhoeven)
€ 569.500 k.k.
  • 125 m²
  • 5 kamers
  • 2022

Samenvatting

  • Deze woning wordt sinds 30 oktober 2025 aangeboden door Van Cappellen Makelaardij;
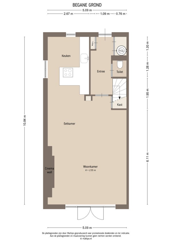
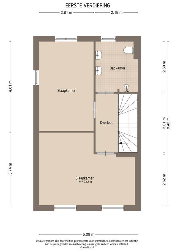
  • De tussenwoning heeft een woonoppervlakte van 125 m² en beschikt over 5 kamers, waarvan 4 slaapkamers;
  • De woning is gebouwd In 2022 en ligt in de buurt Vijfhoeven in Vlijmen.

Beschrijving

Meer woninginformatie bekijken?

Log in of registreer gratis.

Overdracht

Vraagprijs
€ 569.500 k.k.
Aangeboden sinds
30-10-2025
Status
Beschikbaar
Beschikbaar
In overleg

Oppervlakte en inhoud

Woonoppervlakte
125 m²
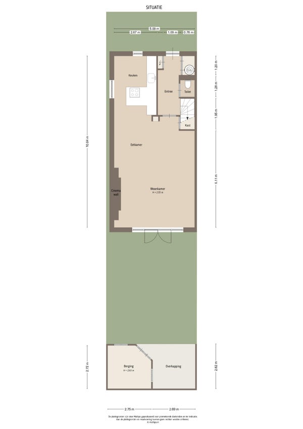
Perceeloppervlakte
130 m²

Bouw

Type woning
Huis
Soort woning
Tussenwoning (rijtjeshuis), Eengezinswoning
Soort bouw
Nieuwbouw
Bouwjaar
2022

Indeling

Aantal kamers
5
Aantal slaapkamers
4
Aantal badkamers
1

Buitenruimte

Dakterras
Niet aanwezig
Meld een probleem met deze woning