Ambachtsweg 46
Bekijk kaart- 145 m²
- 5 kamers
- 1916
Samenvatting
- Deze woning wordt sinds 24 januari 2026 aangeboden door De Huizenbemiddelaar Haaglanden;
- De hoekwoning heeft een woonoppervlakte van 145 m² en beschikt over 5 kamers, waarvan 4 slaapkamers;
- De woning is gebouwd In 1916 en ligt in de buurt Wateringen Noord en Ambachtshof in Wateringen;
- De woning beschikt onder andere over de volgende voorzieningen: Bad, Douche, Schuifdeuren, Toilet.
Beschrijving
Op zoek naar een sfeervolle woning met veel binnen – en buitenruimte? Deze hoekwoning met een gebruiksoppervlakte van 145,7 m2 en externe bergruimte van 23,5 m2 zal je verrassen!
De smaakvol verbouwde woonkamer heeft een aangebouwde overkapping en staat zo in directe verbinding met de riante achtertuin.
Hierdoor voelt het als één grote leefruimte. Achterin de tuin staat een grote houten schuur met veranda, wat het geheel echt afmaakt.
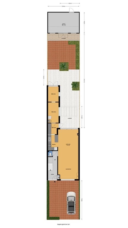
De voortuin is geheel bestraat en biedt voldoende ruimte om 2 auto’s te parkeren.
Deze woning is gelegen op een gunstige locatie dichtbij het centrum van Wateringen met winkels, scholen, parken en openbaar vervoer in de nabije omgeving.
Er is heel veel over deze woning te vertellen. De huidige eigenaar heeft kosten noch moeite bespaard om de woning in perfecte staat te brengen. We vertellen je graag meer tijdens de bezichtiging!
Indeling:
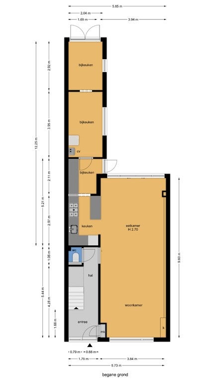
Begane grond
Entree van de woning via voortuin. Hal voorzien van PVC-vloer met meterkast, trapopgang, kastruimte, geheel betegeld toilet en loftdeur naar de woonkamer.
Fraai verbouwde woonkamer met lambrisering rondom, mooie tegelvloer met vloerverwarming, betonlook geverfde muren, shutters en kunststof schuifdeuren naar de gezellig ingerichte aangebouwde overkapping.
Verlengde open keuken in landelijke stijl voorzien van diverse inbouwapparatuur en boerendeur naar de overkapping.
Bijkeuken met opstelplaats Cv-ketel en wasmachine. Tweede bijkeuken, voor meerdere doeleinden te gebruiken (ook voorzien van wateraansluiting en afvoer).
In de zorgvuldig onderhouden zonnige tuin (met zijdeur) staat een vijgenboom en een appelboom.
De houten schuur is multifunctioneel. Door een ingang aan de zijwand te plaatsen is deze zelfs te gebruiken als garage.
1e Verdieping
Overloop met vaste kast en toegang tot 2e toilet, badkamer, studeer/kinderkamer en 2 grote slaapkamers.
Geheel betegelde badkamer met inloopdouche, wastafelmeubel, ligbad en vloerverwarming.
Slaapkamer voorzijde met 3 vaste kasten en dakkapel.
De grote slaapkamer aan de achterzijde is voorzien van een walk-in closet.
2e Verdieping
Slaapkamer met dakkapel en wastafel met warm en koud water. Extra bergruimte achter de knieschotten.
Bijzonderheden:
- Bouwjaar 1916
- Woonoppervlakte 145,7 m2
- Eigen grond
- Parkeerplaats voor 2 auto’s in de voortuin
- Energielabel is aangevraagd
- Dakbedekking vernieuwd
- Zijmuur volledig geïsoleerd, voorgevel gestraald en achtergevel opnieuw gevoegd
- Volledig dubbel glas ( boven triple en begane grond dubbel )
- Woonkamer en badkamer zijn voorzien van vloerverwarming
- Grote houten schuur, eventueel te gebruiken als garage
- Sfeervolle ingerichte overkapping met houten vloer
- Dubbele ruime bijkeuken met opstelling Cv-ketel
- Koper dient de objectinformatie met aanvullende clausules te aanvaarden
- Oplevering in overleg
U kunt een bezichtiging aanvragen door op ****** het contactformulier in te vullen. Er wordt dan contact met u opgenomen om de afspraak te maken.
De vermelde informatie is van algemene aard en is niet meer dan een uitnodiging om de woning te bezichtigen of om in onderhandeling te treden. Hoewel deze tekst en plattegrond met zorg zijn samengesteld zijn wij niet aansprakelijk voor eventuele onjuistheden. De toegepaste Meetinstructie sluit verschillen in meetuitkomsten niet volledig uit, door bijvoorbeeld interpretatieverschillen, afrondingen of beperkingen bij het uitvoeren van de meting. Aan de inhoud van deze informatie kunnen geen rechten worden ontleend.
Overdracht
- Vraagprijs
- € 750.000 k.k.
- Aangeboden sinds
- 24-01-2026
- Status
- Beschikbaar
- Beschikbaar
- In overleg
- Onderhoudsstaat
- Goed
Oppervlakte en inhoud
- Woonoppervlakte
- 145 m²
- Perceeloppervlakte
- 255 m²
- Inhoud
- 473 m³
Bouw
- Type woning
- Huis
- Soort woning
- Hoekwoning, Eengezinswoning
- Soort bouw
- Bestaande bouw
- Bouwjaar
- 1916
- Ligging
-
- Aan een rustige weg
- In een woonwijk
- Nabij het openbaar vervoer
Indeling
- Aantal kamers
- 5
- Aantal slaapkamers
- 4
- Aantal badkamers
- 1
- Aantal woonlagen
- 3
- Voorzieningen
-
- Bad
- Douche
- Schuifdeuren
- Toilet
Buitenruimte
- Balkon
- Niet aanwezig
- Tuin
- Aanwezig (83 m², gelegen op het zuidwesten)
- Tuinbeschrijving
- achtertuin
- Achterom
- Aanwezig
- Dakterras
- Niet aanwezig
Energie
- Isolatie
- Dubbele beglazing, Muurisolatie
- Verwarming
- CV-ketel, Gedeeltelijke vloerverwarming
- Warm water
- CV-ketel
- Cv-ketel
- Remeha CR Avanta (Gas, Eigendom)
Bergruimte
- Schuur/Berging
- Aanwezig
Parkeergelegenheid
- Aanwezig
- Ja
- Soort parkeergelegenheid
- Openbaar