- 174 m²
- 5 kamers
- 1978
Samenvatting
- Deze woning wordt sinds 21 januari 2026 aangeboden door Bas & Ernst makelaars;
- De tussenwoning heeft een woonoppervlakte van 174 m² en beschikt over 5 kamers, waarvan 4 slaapkamers;
- De woning is gebouwd In 1978 en ligt in de buurt Binnenstad in Wijk bij Duurstede.
Beschrijving
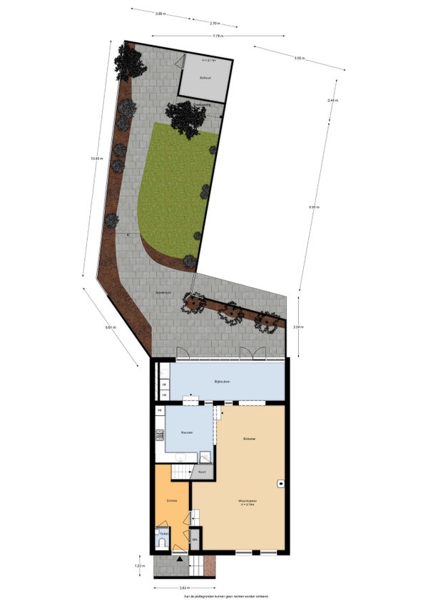
Dit verrassend ruime huis in het hart van Wijk bij Duurstede biedt een sfeervol stadswoonhuis met een royale tuin. Gelegen in de historische binnenstad, vlakbij de molen en aan een rustige doodlopende straat, loop je zo de levendige Peperstraat in. Met een woonoppervlakte van circa 174 m² en een inhoud van circa 604 m³, beschikt de woning over drie slaapkamers en twee badkamers. De begane grond heeft een ruime woonkamer en een halfopen keuken met een serre die binnen en buiten verbindt. Op de eerste verdieping vind je de royale badkamer en op de tweede verdieping een sfeervolle slaapkamer met een eigen badkamer. De zonnige tuin van circa 81 m² ligt op het westen en biedt een achterom. Parkeren is mogelijk met een parkeervergunning.
Overdracht
- Vraagprijs
- € 850.000 k.k.
- Aangeboden sinds
- 21-01-2026
- Status
- Beschikbaar
- Beschikbaar
- In overleg
Oppervlakte en inhoud
- Woonoppervlakte
- 174 m²
- Perceeloppervlakte
- 216 m²
Bouw
- Type woning
- Huis
- Soort woning
- Tussenwoning (rijtjeshuis), Eengezinswoning
- Soort bouw
- Bestaande bouw
- Bouwjaar
- 1978
Indeling
- Aantal kamers
- 5
- Aantal slaapkamers
- 4
- Aantal badkamers
- 2
Buitenruimte
- Dakterras
- Niet aanwezig
Energie
- Energielabel
- C